Prodej rodinného domu 136 m², pozemek 695 m²
Líšťany

3 399 000 za nemovitost
Kontakt:Ivo Čech E-mail:Telefon:730684252
Kliknutím souhlasíte s našimi

Popis

K prodeji nabízíme samostatně stojící rodinný dům v obci Hunčice, které se nachází jen 11 minut jízdy autem od Plzně.

Nemovitost je vhodná pro menší rodinu, která ocení možnost využít stodolu a dílny, které se nacházejí na pozemku a zejména pak zahradu, kde se dá vybudovat altánek, krb, trampolína, bazén...

Nemovitost je zcela jistě před částečnou rekonstukcí, před několika lety byla dělána nová střešní krytina a měněny okna za plastová.

- parkování: na pozemku
- voda: ze studny
- odpad: jímka
- teplá voda: Bojler Dražice OKC 125 z roku 2023
- topení: kotel Atmos C15S z roku 2022
- okna: plastová s dvojskly
- sítě: přípojení T-Mobile
- střecha: nová krytina; pálená taška
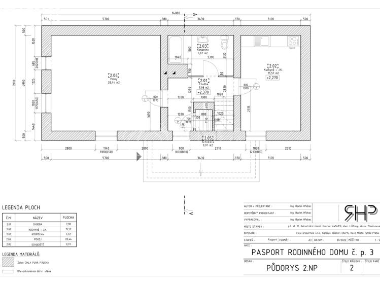
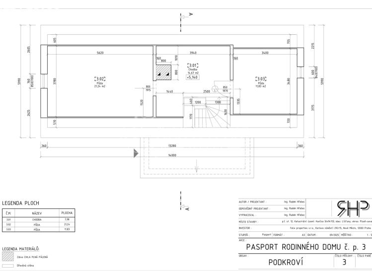
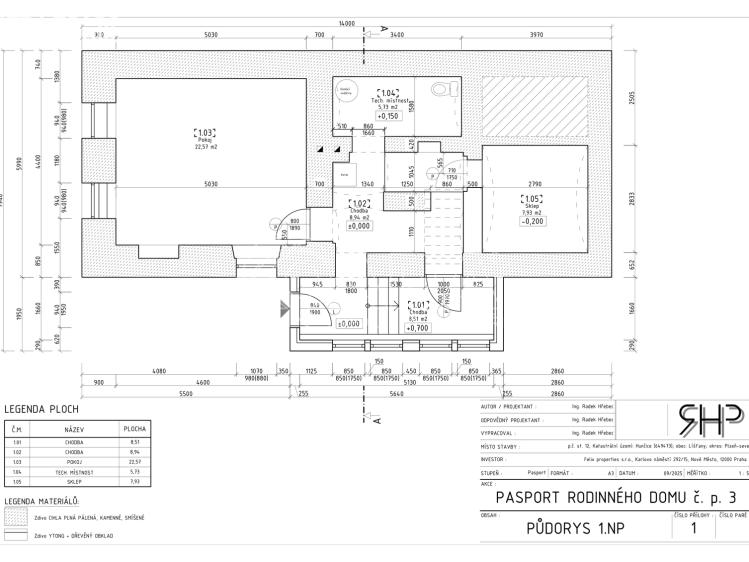
- dispozice: 4+1 (1 pokoj v přízemí, 1 ve 2.NP, 2 v podkroví); všude jsou nížší stropy

Orientační velikost místností o ostatních prostor:
1.NP - přízemí:
Vstupní předsíň: 8,45 m2
Pokoj: 21,98 m2
Chodba: 8,63 m2
Místnost s bojlerem: 5,4 m2
Sklep: 8,29 m2

2NP - 1.patro:
Obývací pokoj: 28,35 m2
Kuchyně: 15,5 m2
Koupelna: 6,65 m2
Chodba: 6,21 m2
Schody 1.NP-2.NP: 2,02 m2
Schody 2.NP-3.NP: 2,46 m2

3.NP - 2.patro:
Ložnice: 17,04 m2
Pokoj: 10,2 m2
Chodba:8,59 m2
--------------------------------
Celkem: 136,08 m2
+ sklep 8,29 m2
+ místnost s bojlerem: 5,4 m2

+ Stodola: 37,17 m2
+ Dílna1: 25,06 m2
+ Dílna2: 34,6 m2
+ Sklad: 7,21 m2
+ Stodola půda: 64,75 m2

Nemovitost je možné financovat hypotečním úvěrem. Na nemovitosti není žádná zástava.

Pro více informací mi neváhejte napsat nebo zavolat.

Další parametry

  • radiátory
  • bojler – elektro
  • optika
  • internet, kabelová televize
  • 3 fáze
  • Ne
  • 1
  • 4
  • septik, jímka
  • 3
  • č. 264/2020 Sb.
  • 230V
  • 14 m2
  • 99 m2
  • 695 m2
  • Dobrý
  • Smíšená
  • G - Mimořádně nehospodárná
Na tomto webu zpracováváme cookies potřebné pro jeho fungování a analytiku.

Upozornění

Používáte nepodporovaný (zastaralý) internetový prohlížeč!

Pro správný běh našeho portalu není možné použít vámi používaný prohlížeč.

Použijte prosím Microsoft Edge nebo některý z jiných prohlížečů, např. Google Chrome, Firefox.