Prodej rodinného domu 180 m², pozemek 266 m²
Teplice, Máchova 1412





















































Popis
- Tento popis je v:
Nabízíme Vám zprostředkování prodeje třípodlažního řadového rodinného domu v obci Teplice, část obce Trnovany. Zkolaudovaný dům z roku 1978 byl průběžně rekonstruován a je postaven na pozemku o celkové výměře 266 m2, zastavěná plocha domu činí 84 m2. Nemovitost se nachází v atraktivní, klidné a současně nezátopové části obce Trnovany, ul. Máchova.
Parkování je možné ve vlastní garáži pod domem nebo na vlastním pozemku přímo před domem, kde se vejdou dvě auta. Zahrada byla dosud využívána pro pěstování zeleniny. Na přilehlou zeď domu lze vybudovat soukromou pergolu nebo venkovní posezení s markýzou. Na zahradě je k dispozici prostorný sklep vhodný pro uskladnění ovoce nebo jako vinný sklípek. Na zahradu je možné jeřábem z ulice instalovat bazén.
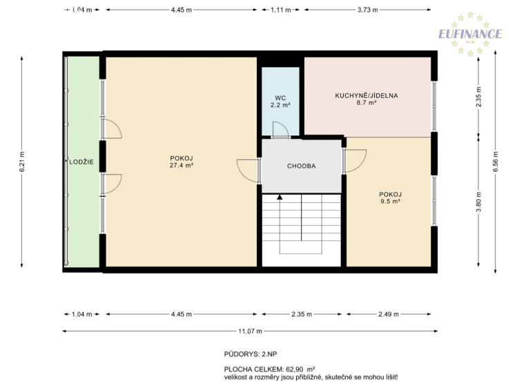
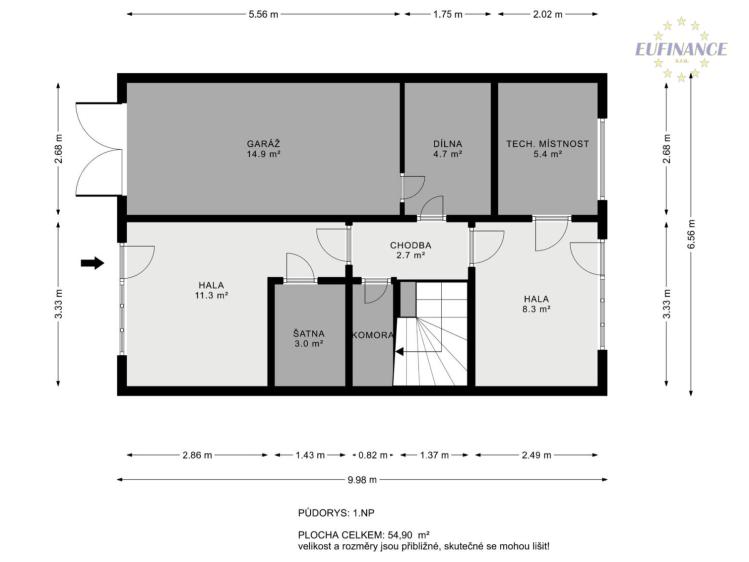
Dle přiložených půdorysů si můžete prohlédnout dispozice všech tří podlaží a současně si v klidu díky virtuální prohlídce projděte celý dům. Vlevo dole je rovněž ikona metru, díky kterému uvidíte přesné výměry jednotlivých místností a také si můžete poměřit různé vzdálenosti kvůli nábytku.
V domě v roce 2000 proběhla větší rekonstrukce: rekonstrukce střechy vč. izolačního nátěru, která je pravidelně servisována a udržována. Dále v tom samém roce byla na podlahy položena nová plovoucí podlaha, plastová okna (dvojskla), nové přední i zadní bezpečnostní dveře. V roce 2007 bylo obvodové zdivo s tloušťkou 30 cm navíc zatepleno 10 cm polystyrenovou izolací. V roce 2017 zde byl instalován nový úsporný plynový kondenzační kotel zn. Junkers vč. nového bojleru a současně do celého domu osazeny nové radiátory vč. termo hlavic, nová revize komína, nové rozvody vody v plastu a elektřiny v mědi.
Do domu jsou napojené veškeré inženýrské sítě: plyn, obecní kanalizace i vodovod, elektřina 230 a 400 V, telefonní linka, internet vzduchem, nicméně v ulici se bude budovat optický kabel.
V okolí domu v docházkové vzdálenosti je k dispozici veškerá občanská vybavenost, supermarket COOP, restaurace, lékaři, lesopark, dětská hřiště, autobusová zastávka za rohem, Aquapark 600m, vlakové nádraží 1,5km.
Dům je kompletně vyklizen a připraven k nastěhování. Právní servis vč. vyřízení hypotéky ZDARMA.
Parkování je možné ve vlastní garáži pod domem nebo na vlastním pozemku přímo před domem, kde se vejdou dvě auta. Zahrada byla dosud využívána pro pěstování zeleniny. Na přilehlou zeď domu lze vybudovat soukromou pergolu nebo venkovní posezení s markýzou. Na zahradě je k dispozici prostorný sklep vhodný pro uskladnění ovoce nebo jako vinný sklípek. Na zahradu je možné jeřábem z ulice instalovat bazén.
Dle přiložených půdorysů si můžete prohlédnout dispozice všech tří podlaží a současně si v klidu díky virtuální prohlídce projděte celý dům. Vlevo dole je rovněž ikona metru, díky kterému uvidíte přesné výměry jednotlivých místností a také si můžete poměřit různé vzdálenosti kvůli nábytku.
V domě v roce 2000 proběhla větší rekonstrukce: rekonstrukce střechy vč. izolačního nátěru, která je pravidelně servisována a udržována. Dále v tom samém roce byla na podlahy položena nová plovoucí podlaha, plastová okna (dvojskla), nové přední i zadní bezpečnostní dveře. V roce 2007 bylo obvodové zdivo s tloušťkou 30 cm navíc zatepleno 10 cm polystyrenovou izolací. V roce 2017 zde byl instalován nový úsporný plynový kondenzační kotel zn. Junkers vč. nového bojleru a současně do celého domu osazeny nové radiátory vč. termo hlavic, nová revize komína, nové rozvody vody v plastu a elektřiny v mědi.
Do domu jsou napojené veškeré inženýrské sítě: plyn, obecní kanalizace i vodovod, elektřina 230 a 400 V, telefonní linka, internet vzduchem, nicméně v ulici se bude budovat optický kabel.
V okolí domu v docházkové vzdálenosti je k dispozici veškerá občanská vybavenost, supermarket COOP, restaurace, lékaři, lesopark, dětská hřiště, autobusová zastávka za rohem, Aquapark 600m, vlakové nádraží 1,5km.
Dům je kompletně vyklizen a připraven k nastěhování. Právní servis vč. vyřízení hypotéky ZDARMA.
Další parametry
- místní zdroj vody
- radiátory
- plynový kondenzační kotel
- plynový kondenzační kotel
- vlak, silnice, mhd, bus
- telefon, internet
- asfaltová
- 2
- 1
- lokální plynové
- plynovod
- veřejná kanalizace
- 182 m2
- 1
- 3
- č. 264/2020 Sb.
- 230V
- 84 m2
- 266 m2
- Velmi dobrý
- Cihla
- G - Mimořádně nehospodárná
- Ano
- Ano
Na tomto webu zpracováváme cookies potřebné pro jeho fungování a analytiku.