Prodej rodinného domu 84 m², pozemek 834 m²
Uhersko
Náš finanční specialista vám připraví několik možností, jak nejlépe financovat nákup tohoto domu.































Popis
Dobrý den, nabízíme k prodeji novostavbu o dispozici 4+kk z roku 2025 v obci Uhersko.
Pro ještě lepší představu vlastního bydlení, se můžete podívat na video prohlídku domu a okolí.
Dispozice:
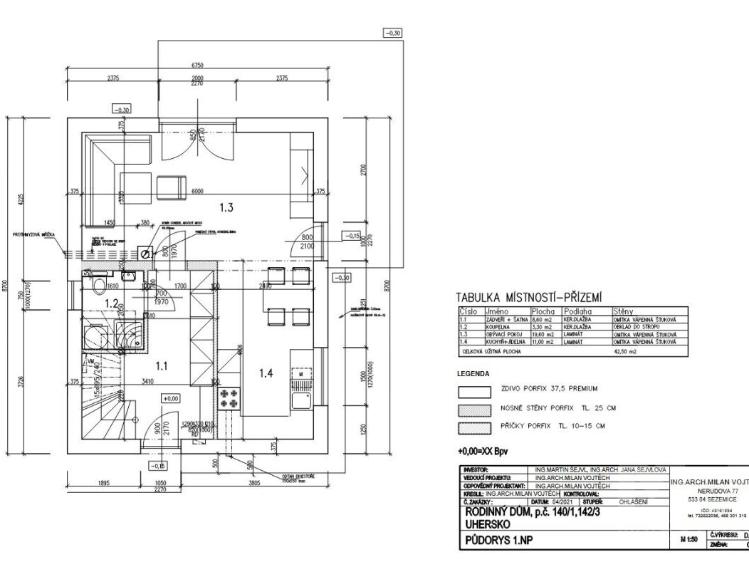
- Přízemí: vstupní hala se schodištěm, obývací pokoj, jídelna, kuchyně, koupelna se sprchovým koutem a WC.
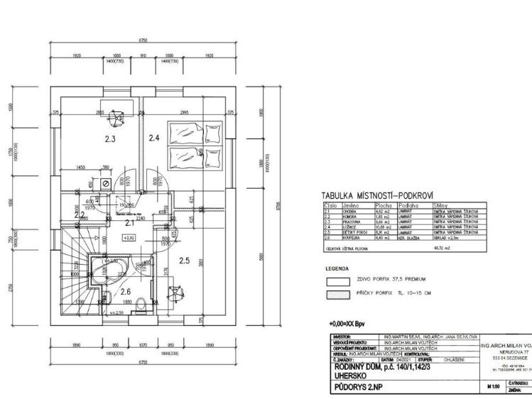
- První patro: 3 pokoje, koupelna s vanou a WC.
Technické specifikace:
- Celková velikost pozemku: 834 m2.
- Zahrada: 715 m2.
- Užitná plocha domu: 84 m2.
- Konstrukce domu: cihla Porfix 40.
- Střecha: betonové tašky + zateplení vatou.
- Okna: trojskla.
- Podlahy: vinyl.
- Vytápění: tepelné čerpadlo vzduch vzduch značky Mitsubishi 3. kategorie. V každém pokoji je klimatizační jednotka (teplo / vzduch).
- Příprava na krbová kamna.
Dům je napojen na obecní vodovod a obecní kanalizaci. O ohřev vody se stará elektrický boiler. Nemovitost energeticky spadá do kategorie B - Velmi úsporná.
Hlavní přednosti domu:
- Kryté stání pro 2 auta.
- Energeticky velmi úsporná nemovitost.
- Krásná a dostatečně velká zahrada.
- Nájezd na dálnici D35 jen 5 minut autem.
Tento dům je ideální pro rodiny hledající klidné a moderní bydlení s výbornou dopravní dostupností.
V těsné blízkosti:
- Nájezd na dálnici D35 jen 5 minut.
- Autobusová zastávka 270 m.
- Vlaková zastávka 850 m.
- Mateřská škola Uhersko 300 m.
- Potraviny 300 m.
- Pošta + obecní úřad 370 m.
- Vysoké Mýto 14 km, Pardubice 21km, Hradec Králové 33 km, Praha - Černý most 120 km.
Nemovitost je bez zatížení.
Neváhejte se na mě obrátit. Rád vás nemovitostí provedu a poskytnu veškeré potřebné informace.
Těším se na viděnou.
Pro ještě lepší představu vlastního bydlení, se můžete podívat na video prohlídku domu a okolí.
Dispozice:
- Přízemí: vstupní hala se schodištěm, obývací pokoj, jídelna, kuchyně, koupelna se sprchovým koutem a WC.
- První patro: 3 pokoje, koupelna s vanou a WC.
Technické specifikace:
- Celková velikost pozemku: 834 m2.
- Zahrada: 715 m2.
- Užitná plocha domu: 84 m2.
- Konstrukce domu: cihla Porfix 40.
- Střecha: betonové tašky + zateplení vatou.
- Okna: trojskla.
- Podlahy: vinyl.
- Vytápění: tepelné čerpadlo vzduch vzduch značky Mitsubishi 3. kategorie. V každém pokoji je klimatizační jednotka (teplo / vzduch).
- Příprava na krbová kamna.
Dům je napojen na obecní vodovod a obecní kanalizaci. O ohřev vody se stará elektrický boiler. Nemovitost energeticky spadá do kategorie B - Velmi úsporná.
Hlavní přednosti domu:
- Kryté stání pro 2 auta.
- Energeticky velmi úsporná nemovitost.
- Krásná a dostatečně velká zahrada.
- Nájezd na dálnici D35 jen 5 minut autem.
Tento dům je ideální pro rodiny hledající klidné a moderní bydlení s výbornou dopravní dostupností.
V těsné blízkosti:
- Nájezd na dálnici D35 jen 5 minut.
- Autobusová zastávka 270 m.
- Vlaková zastávka 850 m.
- Mateřská škola Uhersko 300 m.
- Potraviny 300 m.
- Pošta + obecní úřad 370 m.
- Vysoké Mýto 14 km, Pardubice 21km, Hradec Králové 33 km, Praha - Černý most 120 km.
Nemovitost je bez zatížení.
Neváhejte se na mě obrátit. Rád vás nemovitostí provedu a poskytnu veškeré potřebné informace.
Těším se na viděnou.
Další parametry
- vodovod
- klimatizace
- tepelné čerpadlo
- bojler – elektro
- vlak, dálnice, bus
- asfaltová
- 2
- 4
- veřejná kanalizace
- 715 m2
- 2
- č. 264/2020 Sb.
- 230V
- 60 m2
- 834 m2
- Novostavba
- Cihla
- B - Velmi úsporná
Na tomto webu zpracováváme cookies potřebné pro jeho fungování a analytiku.