Pronájem bytu 1+KK 39 m²
Praha, Choceradská 3362/2
+ 2.700,- poplatky za společné domovní služby, topení, teplou a studenou vodu. Elektřina bude převedena na nájemce.























Popis
- Tento popis je v:
Nový byt s východní orientací, vyhřívanou podlahou v celém bytě a francouzskými okny s výhledem na rybník. Dům je novostavba s výtahem, součástí projektu je kočárkárna a venkovní dětské hřiště.
Dispozice a vybavení:
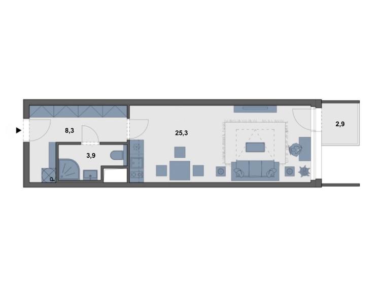
• Předsíň 8,3 m² (místo na vestavnou skříň + pračku)
• Koupelna 3,9 m² se sprchou a WC, otopný žebřík
• Obývací pokoj s kuchyňskou linkou 25,3 m², vstup na balkon 3 m² (pokoj cca 7,63 × 3,25 m)
• Kuchyň: vestavná trouba se sklokeramickou deskou, digestoř, lednice s mrazákem, myčka, mikrovlnná trouba
• Podlahy: laminát, v koupelně a na balkonu dlažba
• Topení: ústřední (společná kotelna v 1. PP), bytový domovní telefon
• Okna plastová s trojskly a s vnitřními žaluziemi.
Lokalita & doprava:
1 min chůze MHD bus (rychlé spojení do centra), metro Roztyly cca 1,5 km. V blízkém okolí kompletní občanská vybavenost (školy, školky, lékař, obchody, parky). Rychlý nájezd na magistrálu, Jižní spojku i dálnice.
Náklady:
• Nájemné: 17 800 Kč/měs.
• Zálohy na služby: 2 700 Kč/měs. (zahrnuje společné domovní služby, topení, teplou a studenou vodu)
• Elektřina: bude převedena na nájemce
• Vratná jistota 2 měsíce: 41 000 Kč (lze ve 2 splátkách)
• Provize RK: 17 800 Kč + DPH
Podmínky:
• Minimální doba nájmu: 12 měsíců
• Byt není vhodný pro domácí mazlíčky
• Nekuřácký byt
Prohlídka / zájemci:
Pro naplánování prohlídky prosím pošli: jaké je Vaše zaměstnání, kolik členů má domácnost, zda kouříte, jestli máte domácí zvířata a od kdy chcete byt pronajmout.
Dispozice a vybavení:
• Předsíň 8,3 m² (místo na vestavnou skříň + pračku)
• Koupelna 3,9 m² se sprchou a WC, otopný žebřík
• Obývací pokoj s kuchyňskou linkou 25,3 m², vstup na balkon 3 m² (pokoj cca 7,63 × 3,25 m)
• Kuchyň: vestavná trouba se sklokeramickou deskou, digestoř, lednice s mrazákem, myčka, mikrovlnná trouba
• Podlahy: laminát, v koupelně a na balkonu dlažba
• Topení: ústřední (společná kotelna v 1. PP), bytový domovní telefon
• Okna plastová s trojskly a s vnitřními žaluziemi.
Lokalita & doprava:
1 min chůze MHD bus (rychlé spojení do centra), metro Roztyly cca 1,5 km. V blízkém okolí kompletní občanská vybavenost (školy, školky, lékař, obchody, parky). Rychlý nájezd na magistrálu, Jižní spojku i dálnice.
Náklady:
• Nájemné: 17 800 Kč/měs.
• Zálohy na služby: 2 700 Kč/měs. (zahrnuje společné domovní služby, topení, teplou a studenou vodu)
• Elektřina: bude převedena na nájemce
• Vratná jistota 2 měsíce: 41 000 Kč (lze ve 2 splátkách)
• Provize RK: 17 800 Kč + DPH
Podmínky:
• Minimální doba nájmu: 12 měsíců
• Byt není vhodný pro domácí mazlíčky
• Nekuřácký byt
Prohlídka / zájemci:
Pro naplánování prohlídky prosím pošli: jaké je Vaše zaměstnání, kolik členů má domácnost, zda kouříte, jestli máte domácí zvířata a od kdy chcete byt pronajmout.
Další parametry
- vodovod
- podlahové vytápění
- centrální dálkové
- vlak, dálnice, silnice, mhd, bus
- telefon, internet
- asfaltová
- 2
- veřejná kanalizace
- 1
- 10
- č. 264/2020 Sb.
- 230V
- 3 m2
- 6
- Novostavba
- Cihla
- B - Velmi úsporná
- osobní
- Zobrazit průkaz energetické náročnosti budovy
Na tomto webu zpracováváme cookies potřebné pro jeho fungování a analytiku.