Prodej bytu 3+1 99 m²
Brandýs nad Labem-Stará Boleslav, Komenského nám. 1414/2
























Popis
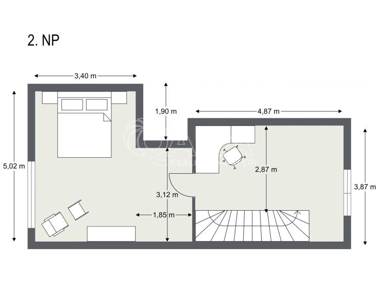
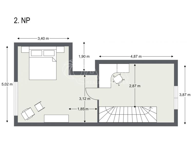
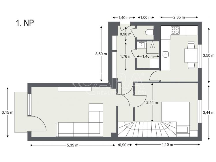
Nabízíme k prodeji mezonetový byt 3 + 1 ve 4. a 5. nadzemním podlaží budovy č.p. 1414, nacházející se v atraktivní lokalitě Brandýsa nad Labem, na ulici Komenského nám. Tento prostorný byt o celkové ploše 113 m² (užitná plocha 99 m²) je ideální volbou pro rodiny s dětmi, které hledají prostorné a příjemné prostředí pro život.
Byt disponuje částečným vybavením a prošel nedávnou renovací, v rámci které byla instalována plastová okna, nová koupelna a WC. Koupelna je vybavena sprchovým koutem, umyvadlovou skříňkou a pračkou. Okna jsou orientována na jiho-západ, což zajišťuje dostatek přirozeného světla a příjemnou atmosféru v celém bytě. V horním podlaží lze zrekonstruovat z prostorné chodby další místnost ( kancelář, pokoj atd).
V blízkosti nemovitosti se nachází vše, co rodiny potřebují. V dosahu jsou školky, základní školy, střední škola a Gymnázium, což usnadňuje každodenní rutinu rodičům s dětmi. Navíc uspokojíte potřeby vašich ratolestí díky blízkosti několika parků a dětských hřišť, kde si mohou hrát a trávit volný čas v bezpečném prostředí.
Součástí domu je i zahrádka, která slouží nejen jako místo pro odpočinek, ale i prostor pro dětské hry. K bytu náleží 2 prostorné sklepy o ploše 6 m2 a 6 m2.
V bytě najdete dostatek prostoru pro vytvoření dětských pokojů, nebo kanceláře, což ocení jak děti, tak i rodiče.
Parkovat lze na dvoře za domem.
Veškeré služby a občanská vybavenost jsou snadno dostupné, díky dobré dopravní infrastruktuře v oblasti. Skvělá dostupnost vlakového a autobusového spojení zaručuje pohodlné cestování do okolních měst či do Prahy.
Dům je ve velmi dobrém stavu a nabízí příjemné bydlení v klidné lokalitě, což je ideální pro rodinný život. Vytápění je zajištěno plynovým kotlem a komfortní ohřev vody rovněž.
V případě zájmu o prohlídku nás neváhejte kontaktovat.
Byt disponuje částečným vybavením a prošel nedávnou renovací, v rámci které byla instalována plastová okna, nová koupelna a WC. Koupelna je vybavena sprchovým koutem, umyvadlovou skříňkou a pračkou. Okna jsou orientována na jiho-západ, což zajišťuje dostatek přirozeného světla a příjemnou atmosféru v celém bytě. V horním podlaží lze zrekonstruovat z prostorné chodby další místnost ( kancelář, pokoj atd).
V blízkosti nemovitosti se nachází vše, co rodiny potřebují. V dosahu jsou školky, základní školy, střední škola a Gymnázium, což usnadňuje každodenní rutinu rodičům s dětmi. Navíc uspokojíte potřeby vašich ratolestí díky blízkosti několika parků a dětských hřišť, kde si mohou hrát a trávit volný čas v bezpečném prostředí.
Součástí domu je i zahrádka, která slouží nejen jako místo pro odpočinek, ale i prostor pro dětské hry. K bytu náleží 2 prostorné sklepy o ploše 6 m2 a 6 m2.
V bytě najdete dostatek prostoru pro vytvoření dětských pokojů, nebo kanceláře, což ocení jak děti, tak i rodiče.
Parkovat lze na dvoře za domem.
Veškeré služby a občanská vybavenost jsou snadno dostupné, díky dobré dopravní infrastruktuře v oblasti. Skvělá dostupnost vlakového a autobusového spojení zaručuje pohodlné cestování do okolních měst či do Prahy.
Dům je ve velmi dobrém stavu a nabízí příjemné bydlení v klidné lokalitě, což je ideální pro rodinný život. Vytápění je zajištěno plynovým kotlem a komfortní ohřev vody rovněž.
V případě zájmu o prohlídku nás neváhejte kontaktovat.
Další parametry
- plynový kotel
- plynový kotel
- 1
- vlak, silnice, bus
- internet
- asfaltová
- 1
- plynovod
- veřejná kanalizace
- 5
- mezonet
- č. 264/2020 Sb.
- 12 m2
- 201 m2
- 2 m2
- 4
- Velmi dobrý
- Smíšená
- F - Velmi nehospodárná
- osobní
- Zobrazit průkaz energetické náročnosti budovy
Na tomto webu zpracováváme cookies potřebné pro jeho fungování a analytiku.