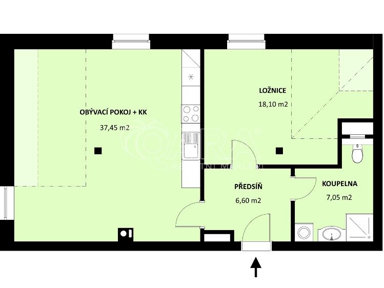
Prodej bytu 2+KK 71 m²
Borová Lada





































Popis
Hledáte zázemí pro pobyt na horách, které vám zároveň může sloužit i jako investice? Nebo zkrátka chcete žít na horách a neradi byste se starali o rodinný dům?
Pak je pro vás zajímavou možností koupě prostorného a kompletně zařízeného bytu 2+kk v obci Borová Lada nedaleko oblíbené Kvildy.
Tento byt se nachází ve 2. patře novostavby z roku 2024 a jistě oceníte celkové kvalitní zpracování jak domu, tak bytu vč. jeho vybavení. Dům je kromě vynikajících konstrukčních vlastností vybaven několika tepelnými čerpadly, což jej řadí k domům s minimální energetickou spotřebou.
Hned u vstupu do domu máte k dispozici sklep a před domem pak výhradní parkovací stání.
Skvělá je zejména lokalita, která poskytuje vyžití nejen fanouškům běžeckého lyžování, cyklistiky a turistiky. V dojezdových vzdálenostech jsou lyžařské areály Zadov (cca 20 min cesty) či rakouský Hochficht (75 min cesty).
I občanská vybavenost nahrává možnosti trvalého bydlení - přímo v obci se nachází mateřská i základní škola, pošta, restaurace, obchod se smíšeným zbožím či kavárna.
Přijeďte se podívat, jak lokalita a dispozice bytu vyhovují právě vašim potřebám.
Pak je pro vás zajímavou možností koupě prostorného a kompletně zařízeného bytu 2+kk v obci Borová Lada nedaleko oblíbené Kvildy.
Tento byt se nachází ve 2. patře novostavby z roku 2024 a jistě oceníte celkové kvalitní zpracování jak domu, tak bytu vč. jeho vybavení. Dům je kromě vynikajících konstrukčních vlastností vybaven několika tepelnými čerpadly, což jej řadí k domům s minimální energetickou spotřebou.
Hned u vstupu do domu máte k dispozici sklep a před domem pak výhradní parkovací stání.
Skvělá je zejména lokalita, která poskytuje vyžití nejen fanouškům běžeckého lyžování, cyklistiky a turistiky. V dojezdových vzdálenostech jsou lyžařské areály Zadov (cca 20 min cesty) či rakouský Hochficht (75 min cesty).
I občanská vybavenost nahrává možnosti trvalého bydlení - přímo v obci se nachází mateřská i základní škola, pošta, restaurace, obchod se smíšeným zbožím či kavárna.
Přijeďte se podívat, jak lokalita a dispozice bytu vyhovují právě vašim potřebám.
Další parametry
- 2
- veřejná kanalizace
- 3
- 85 kWh/m2
- č. 78/2013 Sb.
- 2 m2
- 3
- Novostavba
- Smíšená
- B - Velmi úsporná
- osobní
Na tomto webu zpracováváme cookies potřebné pro jeho fungování a analytiku.