Prodej bytu 3+KK 78 m²
Hostivice, Unhošťská




















Popis
CHYTŘE ŘEŠENÝ BYT S TERASOU, VLASTNÍM PARKOVÁNÍM A MOŽNOSTÍ UŽÍVÁNÍ ZAHRÁDKY
Hledáte byt, kde je každý metr využitý s rozumem, světlo hraje hlavní roli a bydlení dává dlouhodobý smysl? Tento moderně řešený byt v Hostivici nabízí kombinaci pohodlí bytu a benefitů rodinného domu terasu, možnost užívání zahrádky, vlastní parkovací stání a klidné prostředí v jedné z nejžádanějších lokalit západně od Prahy.
Slunné obytné místnosti orientované na jih, promyšlené úložné prostory, dvě toalety, technická místnost, elektrické venkovní rolety i důraz na soukromí to vše vytváří harmonický domov pro páry i pro rodiny.
HLAVNÍ BENEFITY BYTU:
- Prostorný obývací pokoj s kuchyňským koutem o velikosti 30,8 m2 prostorný, vzdušný a přirozeně prosvětlený.
- Jižní orientace hlavních obytných místností dostatek denního světla po celý den.
- Terasa o velikosti 13,8 m2 ideální pro ranní kávu, posezení s přáteli i grilování.
- Možnost užívání zahrádky: k terase navazuje zahrada ve vlastnictví SVJ, kterou můžete využívat, aniž byste za zahradu hradili samostatné poplatky.
- Byt po povrchové rekonstrukci, připravený k okamžitému nastěhování nové podlahy a čerstvá výmalba.
- Elektrické venkovní rolety na všech oknech komfort, stínění, bezpečí i soukromí.
- Samostatná technická místnost (2,7 m2) s přívodem vody a odpadem pro pračku a sušičku.
- Dvě toalety praktické řešení pro rodinu i návštěvy.
- Připravené výklenky na vestavné skříně v ložnici, pokoji i předsíni.
- Vlastní parkovací místo přímo u domu + další parkovací možnosti v ulici nebo na velkém parkovišti přes ulici.
- Odhlučňovací stěna mezi domem a hlavní komunikací klidné bydlení bez ruchu.
- Nadstandardní sanita, kvalitní materiály a koupelna vybavená vířivkou.
TECHNICKÉ INFORMACE:
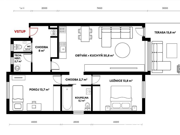
- Dispozice: 3+kk
- Podlahová plocha bytu: cca 78 m2
- Obývací pokoj s kuchyní: 30,8 m2
- Ložnice: 13,8 m2
- Pokoj: 13,7 m2
- Koupelna: 5,1 m2
- WC: 1,5 m2
- Technická místnost: 2,7 m2
- Chodby celkem: 10,7 m2
- Terasa: 13,8 m2
- Parkovací stání: 1 parkovací stání v ceně
- Zahrada: volně k dispozici
- Bezpečnostní čidla v bytě
- Sítě: elektřina, plyn, voda, kanalizace
- Vytápění a ohřev vody: kombinovaný plynový kotel s akumulační nádrží
- Měsíční domovní náklady včetně fondu oprav: 2.715,-Kč
Byt se prodává nezařízený. Součástí prezentace jsou však realistické vizualizace obývacího pokoje, ložnice, dětského pokoje i technické místnosti, které pomohou s představou finálního zařízení.
ŽIVOT V HOSTIVICI:
Hostivice dlouhodobě patří mezi nejoblíbenější města v okolí Prahy a nabízí ideální kombinaci klidu, bezpečí, přírody a kompletní občanské vybavenosti. Ráno si můžete vychutnat kávu na terase, děti mají možnost pobytu venku přímo u domu, a přitom jste během několika minut na Zličíně, v centru Prahy nebo naopak v lese či u Hostivických rybníků. Každodenní život zde přináší dostatek světla, prostoru a soukromí, společné chvíle v obývacím pokoji, klidné večery na terase a víkendové výlety do přírody, která je doslova na dosah. Lokalita zároveň nabízí školy, školky, obchody, restaurace i sportoviště v pěší dostupnosti, výbornou dopravní dostupnost autobusem i vlakem a bezpečné, klidné prostředí s přátelskou komunitou.
Hledáte byt, kde je každý metr využitý s rozumem, světlo hraje hlavní roli a bydlení dává dlouhodobý smysl? Tento moderně řešený byt v Hostivici nabízí kombinaci pohodlí bytu a benefitů rodinného domu terasu, možnost užívání zahrádky, vlastní parkovací stání a klidné prostředí v jedné z nejžádanějších lokalit západně od Prahy.
Slunné obytné místnosti orientované na jih, promyšlené úložné prostory, dvě toalety, technická místnost, elektrické venkovní rolety i důraz na soukromí to vše vytváří harmonický domov pro páry i pro rodiny.
HLAVNÍ BENEFITY BYTU:
- Prostorný obývací pokoj s kuchyňským koutem o velikosti 30,8 m2 prostorný, vzdušný a přirozeně prosvětlený.
- Jižní orientace hlavních obytných místností dostatek denního světla po celý den.
- Terasa o velikosti 13,8 m2 ideální pro ranní kávu, posezení s přáteli i grilování.
- Možnost užívání zahrádky: k terase navazuje zahrada ve vlastnictví SVJ, kterou můžete využívat, aniž byste za zahradu hradili samostatné poplatky.
- Byt po povrchové rekonstrukci, připravený k okamžitému nastěhování nové podlahy a čerstvá výmalba.
- Elektrické venkovní rolety na všech oknech komfort, stínění, bezpečí i soukromí.
- Samostatná technická místnost (2,7 m2) s přívodem vody a odpadem pro pračku a sušičku.
- Dvě toalety praktické řešení pro rodinu i návštěvy.
- Připravené výklenky na vestavné skříně v ložnici, pokoji i předsíni.
- Vlastní parkovací místo přímo u domu + další parkovací možnosti v ulici nebo na velkém parkovišti přes ulici.
- Odhlučňovací stěna mezi domem a hlavní komunikací klidné bydlení bez ruchu.
- Nadstandardní sanita, kvalitní materiály a koupelna vybavená vířivkou.
TECHNICKÉ INFORMACE:
- Dispozice: 3+kk
- Podlahová plocha bytu: cca 78 m2
- Obývací pokoj s kuchyní: 30,8 m2
- Ložnice: 13,8 m2
- Pokoj: 13,7 m2
- Koupelna: 5,1 m2
- WC: 1,5 m2
- Technická místnost: 2,7 m2
- Chodby celkem: 10,7 m2
- Terasa: 13,8 m2
- Parkovací stání: 1 parkovací stání v ceně
- Zahrada: volně k dispozici
- Bezpečnostní čidla v bytě
- Sítě: elektřina, plyn, voda, kanalizace
- Vytápění a ohřev vody: kombinovaný plynový kotel s akumulační nádrží
- Měsíční domovní náklady včetně fondu oprav: 2.715,-Kč
Byt se prodává nezařízený. Součástí prezentace jsou však realistické vizualizace obývacího pokoje, ložnice, dětského pokoje i technické místnosti, které pomohou s představou finálního zařízení.
ŽIVOT V HOSTIVICI:
Hostivice dlouhodobě patří mezi nejoblíbenější města v okolí Prahy a nabízí ideální kombinaci klidu, bezpečí, přírody a kompletní občanské vybavenosti. Ráno si můžete vychutnat kávu na terase, děti mají možnost pobytu venku přímo u domu, a přitom jste během několika minut na Zličíně, v centru Prahy nebo naopak v lese či u Hostivických rybníků. Každodenní život zde přináší dostatek světla, prostoru a soukromí, společné chvíle v obývacím pokoji, klidné večery na terase a víkendové výlety do přírody, která je doslova na dosah. Lokalita zároveň nabízí školy, školky, obchody, restaurace i sportoviště v pěší dostupnosti, výbornou dopravní dostupnost autobusem i vlakem a bezpečné, klidné prostředí s přátelskou komunitou.
Další parametry
- vodovod
- radiátory
- plynový kotel
- plynový kotel
- vlak, dálnice, silnice, mhd, bus
- dlážděná, asfaltová
- ústřední elektrické
- plynovod
- veřejná kanalizace
- 3
- č. 264/2020 Sb.
- 230V
- 1
- Po rekonstrukci
- Cihla
- D - Méně úsporná
- osobní
- Zobrazit průkaz energetické náročnosti budovy
Na tomto webu zpracováváme cookies potřebné pro jeho fungování a analytiku.