Prodej rodinného domu 300 m², pozemek 420 m²
Cetkovice, Kaplice
cena u makléře
- Tento popis je v:
















Popis
Nabízím Vám velmi zajímavou nemovitost, která spojuje možnost vlastního bydlení s
podnikáním pod jednou střechou a je skvělou příležitostí ke koupi, kterou jen tak nenajdete.
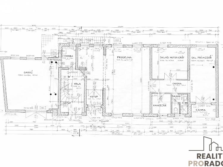
Zděný dům o zastavěné ploše cca 180 m² se nachází na pozemku o výměře 420 m² a
je napojen na veškeré inženýrské sítě – vodu, kanalizaci, plyn i elektřinu.
Přízemí domu bylo původně projektováno jako prodejna, později byl tento prostor upraven
pro hostinský provoz. V přízemí se nachází vstupní část, barový pult a velkorysý prostor pro
posezení hostů, dále oddělené WC pro dámy, pány i personál, samostatná místnost určená pro
kuchyň a skladové zázemí s nakládací rampou. Součástí nemovitosti je také sklep o výměře
cca 20 m², vhodný například pro skladování.
Nový majitel může prostor ponechat ve stávajícím uspořádání a využívat jako restauraci,
kavárnu či hospůdku, případně jej upravit dle vlastních představ – například na obchod,
kanceláře, ubytovnu, menší penzion nebo jej zcela přizpůsobit výhradně pro rodinné bydlení.
Vytápění i ohřev vody zajišťuje plynový kotel, v přízemí jsou plastová okna a dřevěné dveře.
Podkroví nabízí velký a variabilní prostor, který umožňuje vybudování komfortního bydlení
dle vlastních představ, případně jeho využití pro kanceláře nebo ubytovací prostory.
Za domem se nachází menší, velmi příjemná zahrádka, poskytující dostatek soukromí a
klidný výhled do okolní krajiny. Je ideálním místem pro odpočinek a relaxaci po pracovním
dni.
Součástí nemovitosti je také stodola o velikosti cca 22 m², kterou lze využít jako sklad, dílnu,
případně ji přestavět na garáž.
Nemovitost je vhodná jak pro rodinné bydlení, tak pro podnikání, investici či kombinaci
obojího. Díky své variabilitě nabízí široké možnosti využití a představuje výjimečnou
příležitost pro ty, kteří hledají dům s potenciálem.
Obec Cetkovice se nachází v okrese Blansko, v oblasti Malé Hané. Nabízí klidné bydlení s
dobrou občanskou vybaveností – mateřská škola, základní škola (1. stupeň), potraviny i
pošta jsou přímo v obci. Ideální místo pro život i podnikání v příjemném venkovském
prostředí.
podnikáním pod jednou střechou a je skvělou příležitostí ke koupi, kterou jen tak nenajdete.
Zděný dům o zastavěné ploše cca 180 m² se nachází na pozemku o výměře 420 m² a
je napojen na veškeré inženýrské sítě – vodu, kanalizaci, plyn i elektřinu.
Přízemí domu bylo původně projektováno jako prodejna, později byl tento prostor upraven
pro hostinský provoz. V přízemí se nachází vstupní část, barový pult a velkorysý prostor pro
posezení hostů, dále oddělené WC pro dámy, pány i personál, samostatná místnost určená pro
kuchyň a skladové zázemí s nakládací rampou. Součástí nemovitosti je také sklep o výměře
cca 20 m², vhodný například pro skladování.
Nový majitel může prostor ponechat ve stávajícím uspořádání a využívat jako restauraci,
kavárnu či hospůdku, případně jej upravit dle vlastních představ – například na obchod,
kanceláře, ubytovnu, menší penzion nebo jej zcela přizpůsobit výhradně pro rodinné bydlení.
Vytápění i ohřev vody zajišťuje plynový kotel, v přízemí jsou plastová okna a dřevěné dveře.
Podkroví nabízí velký a variabilní prostor, který umožňuje vybudování komfortního bydlení
dle vlastních představ, případně jeho využití pro kanceláře nebo ubytovací prostory.
Za domem se nachází menší, velmi příjemná zahrádka, poskytující dostatek soukromí a
klidný výhled do okolní krajiny. Je ideálním místem pro odpočinek a relaxaci po pracovním
dni.
Součástí nemovitosti je také stodola o velikosti cca 22 m², kterou lze využít jako sklad, dílnu,
případně ji přestavět na garáž.
Nemovitost je vhodná jak pro rodinné bydlení, tak pro podnikání, investici či kombinaci
obojího. Díky své variabilitě nabízí široké možnosti využití a představuje výjimečnou
příležitost pro ty, kteří hledají dům s potenciálem.
Obec Cetkovice se nachází v okrese Blansko, v oblasti Malé Hané. Nabízí klidné bydlení s
dobrou občanskou vybaveností – mateřská škola, základní škola (1. stupeň), potraviny i
pošta jsou přímo v obci. Ideální místo pro život i podnikání v příjemném venkovském
prostředí.
Další parametry
- vodovod
- plynový kotel
- plynový kotel
- vlak, silnice
- asfaltová
- Ne
- 4
- plynovod
- veřejná kanalizace
- 2
- č. 264/2020 Sb.
- 230V
- 180 m2
- 420 m2
- Novostavba
- Cihla
- G - Mimořádně nehospodárná
Na tomto webu zpracováváme cookies potřebné pro jeho fungování a analytiku.