Prodej rodinného domu 187 m², pozemek 245 m²
Dolní Dunajovice, Hlavní 555






























Popis
Nabízíme k prodeji prostorný rodinný dům o dispozici 5+kk v obci Dolní Dunajovice, jedné z nejvyhledávanějších lokalit jižní Moravy. Dům je situován v klidném prostředí s přímým kontaktem s přírodou, vinicemi a cyklostezkami v bezprostřední blízkosti CHKO Pálava.
Nemovitost je vhodná nejen pro komfortní rodinné bydlení, ale také jako plnohodnotný dvougenerační dům díky promyšlenému dispozičnímu řešení se samostatným schodištěm do horního patra již od vstupu.
Rodinný dům má užitnou plochu 187.1 m2 a je dispozičně řešen jako 5+kk. V přízemí se nachází vstupní část se šatníkem, koupelna, ložnice vhodná pro rodiče nebo hosty a prostorný obývací pokoj s kuchyní. Z obytné části je přímý vstup na venkovní terasu.
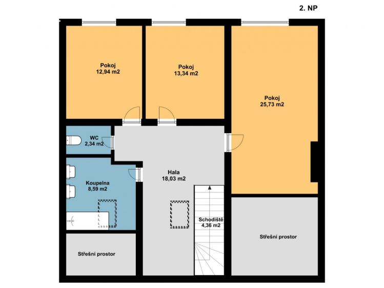
V horním patře jsou situovány tři samostatné pokoje a druhá plnohodnotná koupelna, což zajišťuje komfortní zázemí i pro větší rodinu.
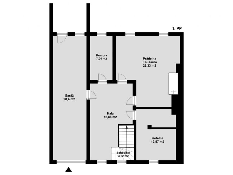
Součástí domu je garáž o velikosti 28.4 m2 s elektrickými garážovými vraty, která umožňuje parkování dvou osobních automobilů. Třetí parkovací místo je k dispozici přímo před garáží na vlastním pozemku. Garáž nabízí také dostatek prostoru pro uskladnění kol a sportovního vybavení.
Velkou výhodou nemovitosti je rozsáhlý sklep o výměře 66.4 m2, řešený jako centrální chodba se třemi samostatnými místnostmi. Součástí sklepa je prádelna, kotelna a další technické a úložné prostory.
Vytápění domu zajišťuje plynový kotel v kombinaci se samostatným velkokapacitním zásobníkem teplé vody značky Quantum, což zajišťuje stabilní dodávku tepla i dostatek teplé vody pro celou domácnost. Technické zázemí je přehledně uspořádáno v samostatné místnosti s praktickým úložným prostorem.
Dům se nachází na pozemku o celkové výměře 245.7 m2, jehož součástí je zadní terasa o velikosti 28.8 m2. Na náklady majitele je možné zde vybudovat travnatou zahradu včetně oplocení, čímž vznikne plnohodnotný venkovní prostor pro relaxaci či rodinné využití o velikosti 78.8 m2.
Obec Dolní Dunajovice patří mezi dlouhodobě vyhledávané lokality jižní Moravy díky své poloze v blízkosti Pálavy, vinic, cyklostezek, Novomlýnských nádrží a bohaté vinařské tradici. Lokalita nabízí celoroční využití a vysoký standard bydlení.
Nemovitost je vhodná pro rodinné bydlení, dvougenerační využití, rekreační účely i jako investiční příležitost.
V případě zájmu o více informací nebo osobní prohlídku mě neváhejte kontaktovat.
Nemovitost je vhodná nejen pro komfortní rodinné bydlení, ale také jako plnohodnotný dvougenerační dům díky promyšlenému dispozičnímu řešení se samostatným schodištěm do horního patra již od vstupu.
Rodinný dům má užitnou plochu 187.1 m2 a je dispozičně řešen jako 5+kk. V přízemí se nachází vstupní část se šatníkem, koupelna, ložnice vhodná pro rodiče nebo hosty a prostorný obývací pokoj s kuchyní. Z obytné části je přímý vstup na venkovní terasu.
V horním patře jsou situovány tři samostatné pokoje a druhá plnohodnotná koupelna, což zajišťuje komfortní zázemí i pro větší rodinu.
Součástí domu je garáž o velikosti 28.4 m2 s elektrickými garážovými vraty, která umožňuje parkování dvou osobních automobilů. Třetí parkovací místo je k dispozici přímo před garáží na vlastním pozemku. Garáž nabízí také dostatek prostoru pro uskladnění kol a sportovního vybavení.
Velkou výhodou nemovitosti je rozsáhlý sklep o výměře 66.4 m2, řešený jako centrální chodba se třemi samostatnými místnostmi. Součástí sklepa je prádelna, kotelna a další technické a úložné prostory.
Vytápění domu zajišťuje plynový kotel v kombinaci se samostatným velkokapacitním zásobníkem teplé vody značky Quantum, což zajišťuje stabilní dodávku tepla i dostatek teplé vody pro celou domácnost. Technické zázemí je přehledně uspořádáno v samostatné místnosti s praktickým úložným prostorem.
Dům se nachází na pozemku o celkové výměře 245.7 m2, jehož součástí je zadní terasa o velikosti 28.8 m2. Na náklady majitele je možné zde vybudovat travnatou zahradu včetně oplocení, čímž vznikne plnohodnotný venkovní prostor pro relaxaci či rodinné využití o velikosti 78.8 m2.
Obec Dolní Dunajovice patří mezi dlouhodobě vyhledávané lokality jižní Moravy díky své poloze v blízkosti Pálavy, vinic, cyklostezek, Novomlýnských nádrží a bohaté vinařské tradici. Lokalita nabízí celoroční využití a vysoký standard bydlení.
Nemovitost je vhodná pro rodinné bydlení, dvougenerační využití, rekreační účely i jako investiční příležitost.
V případě zájmu o více informací nebo osobní prohlídku mě neváhejte kontaktovat.
Další parametry
- vodovod
- radiátory
- plynový kotel
- dálnice, silnice, mhd, bus
- internet
- asfaltová
- 3
- lokální plynové
- plynovod
- veřejná kanalizace
- 78 m2
- 2
- č. 264/2020 Sb.
- 230V
- 66 m2
- 126 m2
- 245 m2
- Velmi dobrý
- Cihla
- G - Mimořádně nehospodárná
Na tomto webu zpracováváme cookies potřebné pro jeho fungování a analytiku.