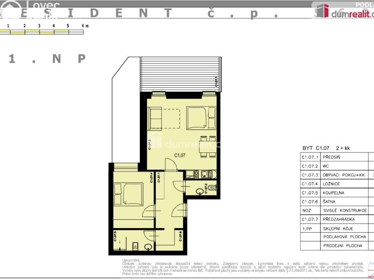
Prodej bytu 2+KK 69 m²
Harrachov
Včetně parkovacího stání, vybavení a zařízení apartmánu.






























Popis
prodej nadstandardního horského apartmánu o dispozici 2+kk a celkové výměře 69m² s vlastní předzahrádkou (12,7 m²) v prestižním a vyhledávaném areálu Resident Harrachov. Apartmán se nachází v klidné části resortu s krásným výhledem na okolní hory. Dispozice a vybavení: Obývací pokoj s moderním kuchyňským koutem včetně vestavěných spotřebičů Koupelna po kompletní modernizaci Podlahové vytápění Sklepní kóje (3 m²) Vlastní parkovací stání v uzavřeném areálu Předzahrádka nabízí ideální prostor k relaxaci po dni stráveném v přírodě. Wellness & služby: Majitelé apartmánu mají přímý vstup do dvoupodlažního Grotta Spa – luxusního wellness centra s bazénem, saunou a relax zónou. Lokalita: Harrachov patří mezi nejatraktivnější horské destinace v ČR – ideální pro letní turistiku, cyklistiku, běžky i zimní sporty. V docházkové vzdálenosti najdete: Ski areál Bobovou dráhu Hilby trail Monkey Park pro děti Přímý přístup na Jizerskou magistrálu Investiční potenciál: Atraktivní možnost krátkodobého pronájmu s vysokou obsazeností. V resortu je k dispozici snídaňový servis v samostatném prostoru v přízemí budovy. Prohlídky možné i o víkendech. Rád vám zajistím nejvýhodnější financování hypotečním úvěrem dle aktuální nabídky na trhu. Pro více informací mě neváhejte kontaktovat kdykoli. Luxusní horské bydlení nebo výhodná investice – to vše v srdci Krkonoš! Ev. číslo: 653327.
Další parametry
- 4
- 12 kWh/m2
- 1
- Velmi dobrý
- Skeletová
- B - Velmi úsporná
- osobní
Na tomto webu zpracováváme cookies potřebné pro jeho fungování a analytiku.