Pronájem bytu 3+KK 95 m²
Praha 9, Ivana Hlinky
+ poplatky 6 500,- + elektřina + kauce + provize RK





































Kontakt:Darina Smetanová - Pracovní doba: PONDĚLÍ - PÁTEK OD 9:00-17.00 HOD E-mail:[email protected]Telefon:722 941 392
Popis
Jedinečná nabídka moderního bytu 3+kk v žádaném rezidenčním projektu Inspirace nad Rokytkou, v ulici Ivana Hlinky, v bezprostřední blízkosti parku Zahrádky, v atraktivní lokalitě Praha 9 – Vysočany.
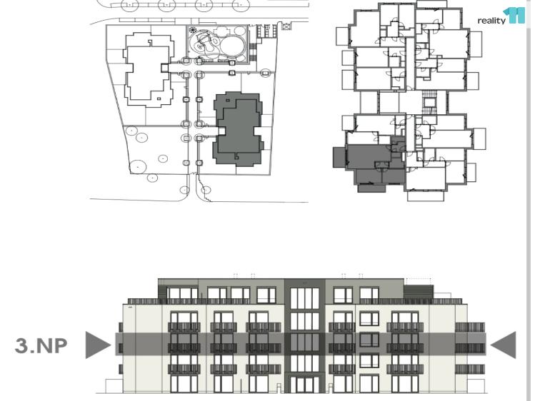
Byt se nachází v novostavbě, jejíž kolaudace a předání proběhly začátkem roku 2023. Je situován ve 3. nadzemním podlaží (2. patro) a jedná se o rohový byt s velmi příjemnou orientací na západ a jih, která zajišťuje dostatek denního světla po celý den.
Podlahová plocha bytu činí 78,7 m², užitná plocha 74 m².
K bytu náleží dva prostorné balkóny o vel. 9 m² z obývacího pokoje orientovaný na západ a 7,3 m² z ložnice orientovaný na jih.
Součástí nabídky je také prostorný sklep, který se nachází v suterénu domu a parkovací stání v domě.
Byt je kompletně vybaven kvalitním nábytkem na míru, s výjimkou jednoho pokoje (dětského/pracovny), který bude možné dovybavit dle přání, případně si jej můžete zařídit podle vlastních potřeb.
V bytě jsou dva samostatné neprůchozí pokoje + obývací pokoj s kuchyní.
Kuchyňská linka zn. Siko vč. spotřebičů zn. Concept (sklokeramická deska, el. trouba, myčka, mikrovlnka, lednice s mrazákem).
Obývací pokoj disponuje velkou sedací soupravou, vestavěnou obývací stěnou, jídelní stůl a židle.
V ložnici je velká osvětlená vestavěná skříň, osvětlená manželská postel s kvalitními matracemi, nočními stolky a televizí na zdi.
V celém bytě je moderní osvětlení + bodová světla.
V chodbě jsou vestavěné osvětlené skříně, botník.
Z chodby je vstup do menší místnosti s regály a pračkou se sušičkou zn. LG.
Ve všech místnostech jsou instalovány kvalitní venkovní elektrické žaluzie.
Byt je volný ihned a je ideální pro pár, rodinu, případně i studenty.
Výborná dopravní dostupnost, blízkost zeleně a kompletní občanská vybavenost v okolí činí tuto nabídku velmi atraktivní.
V případě zájmu o více informací nebo sjednání prohlídky mě neváhejte kontaktovat telefonicky nebo e-mailem. Ev. číslo: 27952.
Byt se nachází v novostavbě, jejíž kolaudace a předání proběhly začátkem roku 2023. Je situován ve 3. nadzemním podlaží (2. patro) a jedná se o rohový byt s velmi příjemnou orientací na západ a jih, která zajišťuje dostatek denního světla po celý den.
Podlahová plocha bytu činí 78,7 m², užitná plocha 74 m².
K bytu náleží dva prostorné balkóny o vel. 9 m² z obývacího pokoje orientovaný na západ a 7,3 m² z ložnice orientovaný na jih.
Součástí nabídky je také prostorný sklep, který se nachází v suterénu domu a parkovací stání v domě.
Byt je kompletně vybaven kvalitním nábytkem na míru, s výjimkou jednoho pokoje (dětského/pracovny), který bude možné dovybavit dle přání, případně si jej můžete zařídit podle vlastních potřeb.
V bytě jsou dva samostatné neprůchozí pokoje + obývací pokoj s kuchyní.
Kuchyňská linka zn. Siko vč. spotřebičů zn. Concept (sklokeramická deska, el. trouba, myčka, mikrovlnka, lednice s mrazákem).
Obývací pokoj disponuje velkou sedací soupravou, vestavěnou obývací stěnou, jídelní stůl a židle.
V ložnici je velká osvětlená vestavěná skříň, osvětlená manželská postel s kvalitními matracemi, nočními stolky a televizí na zdi.
V celém bytě je moderní osvětlení + bodová světla.
V chodbě jsou vestavěné osvětlené skříně, botník.
Z chodby je vstup do menší místnosti s regály a pračkou se sušičkou zn. LG.
Ve všech místnostech jsou instalovány kvalitní venkovní elektrické žaluzie.
Byt je volný ihned a je ideální pro pár, rodinu, případně i studenty.
Výborná dopravní dostupnost, blízkost zeleně a kompletní občanská vybavenost v okolí činí tuto nabídku velmi atraktivní.
V případě zájmu o více informací nebo sjednání prohlídky mě neváhejte kontaktovat telefonicky nebo e-mailem. Ev. číslo: 27952.
Další parametry
- 6
- 2
- Novostavba
- Cihla
- B - Velmi úsporná
- osobní
Na tomto webu zpracováváme cookies potřebné pro jeho fungování a analytiku.