Prodej rodinného domu 143 m², pozemek 186 m²
Neratovice, Kpt. Jaroše 44/5



















Popis
Nabízím k prodeji rodinný dům 4+kk s menší zahrádkou v ulici Kpt. Jaroše – Neratovice. Dům prošel vkusnou renovací a je připraven k nastěhování.
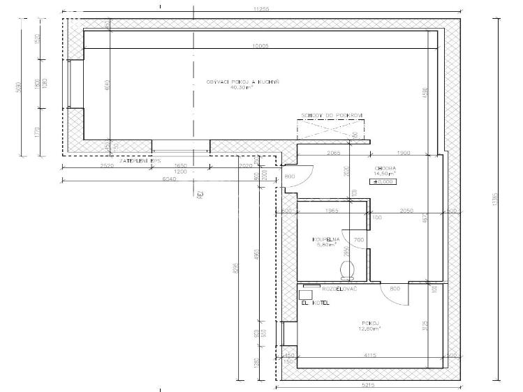
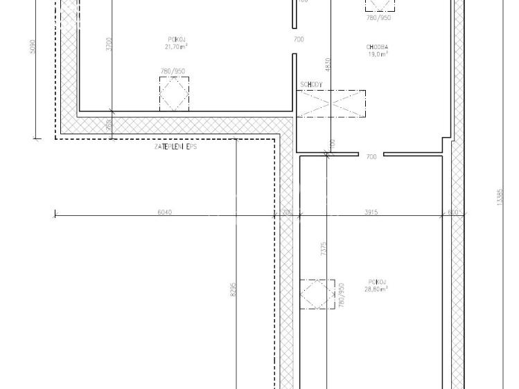
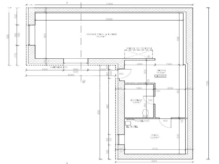
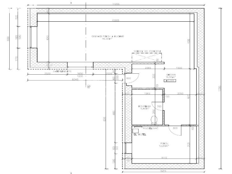
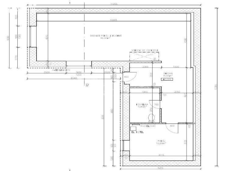
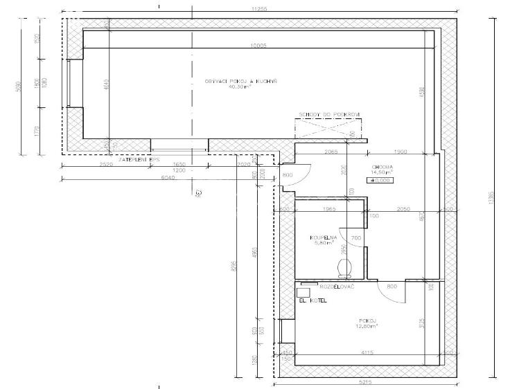
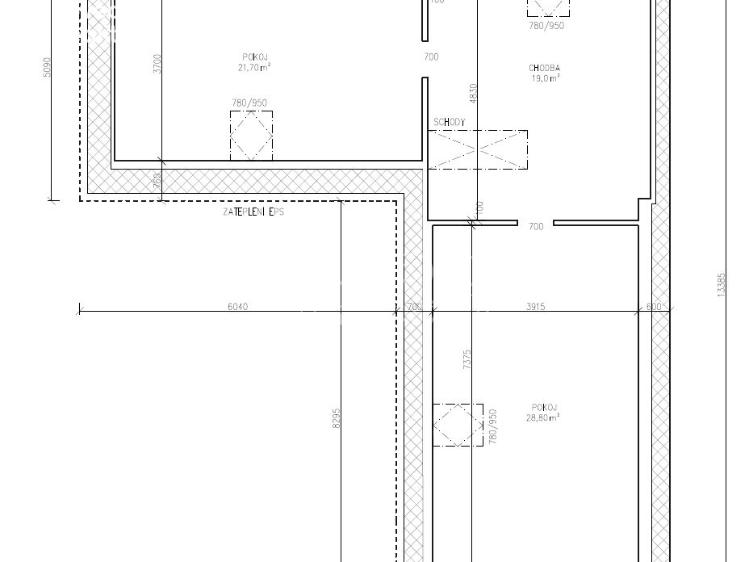
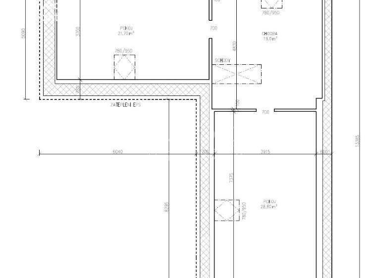
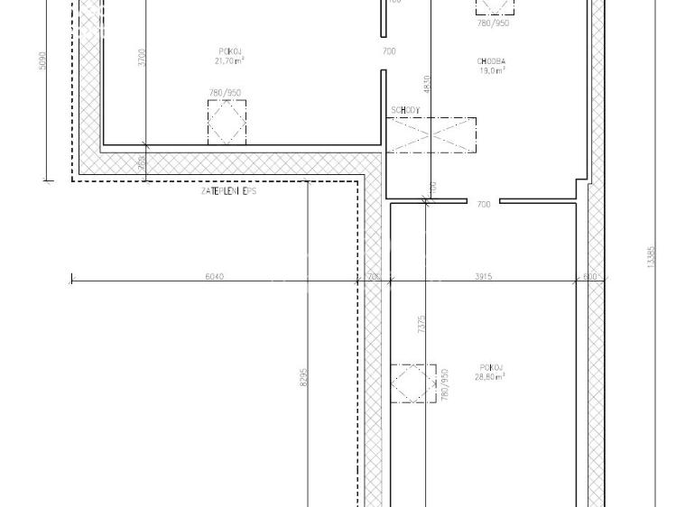
V přízemí vstupní chodba, prostorný obývací pokoj s kuchyňským koutem, koupelna s WC a samostatný pokoj, celková velikost 73,4 m2. V podkroví chodba a dvě samostatné ložnice o celkové velikosti 69,5 m2.
• Stavba byla odkopána a osazena izolace včetně nopové folie.
• Zatepleno Polystyrenem 10-14 cm, vnitřní zeď k sousedovi s předstěnou ze sádrokartonu, zateplena vatou.
• V celém přízemí podlahové topení s napojením na nový elektrokotel + otopný žebřík v koupelně.
• Kompletní nové rozvody elektřiny, odpadu i vody.
• Napojeno na elektřinu, obecní vodovod i kanalizaci, před domem plyn.
• Podlaha – 2x izolovaná + Polystyren 4cm + systémová deska a dlažba.
• Strop – trámy 20 cm, vata 10 cm + sádrokarton. Z vrchu OSB deska 2,5 cm + vinylová podlaha.
• Střecha – mezi krokvemi izolační vata a paropropustná folie.
Nedaleko domu veškerá občanská vybavenost, v blízkosti vlakové nádraží směr Praha. Možnost financování hypotečním úvěrem, se kterým Vám rádi pomůžeme. Více informací na níže uvedeném kontaktu.
V přízemí vstupní chodba, prostorný obývací pokoj s kuchyňským koutem, koupelna s WC a samostatný pokoj, celková velikost 73,4 m2. V podkroví chodba a dvě samostatné ložnice o celkové velikosti 69,5 m2.
• Stavba byla odkopána a osazena izolace včetně nopové folie.
• Zatepleno Polystyrenem 10-14 cm, vnitřní zeď k sousedovi s předstěnou ze sádrokartonu, zateplena vatou.
• V celém přízemí podlahové topení s napojením na nový elektrokotel + otopný žebřík v koupelně.
• Kompletní nové rozvody elektřiny, odpadu i vody.
• Napojeno na elektřinu, obecní vodovod i kanalizaci, před domem plyn.
• Podlaha – 2x izolovaná + Polystyren 4cm + systémová deska a dlažba.
• Strop – trámy 20 cm, vata 10 cm + sádrokarton. Z vrchu OSB deska 2,5 cm + vinylová podlaha.
• Střecha – mezi krokvemi izolační vata a paropropustná folie.
Nedaleko domu veškerá občanská vybavenost, v blízkosti vlakové nádraží směr Praha. Možnost financování hypotečním úvěrem, se kterým Vám rádi pomůžeme. Více informací na níže uvedeném kontaktu.
Další parametry
- vodovod
- podlahové vytápění
- elektrokotel
- bojler – elektro
- vlak, silnice, mhd, bus
- Ne
- 3
- plynovod
- veřejná kanalizace
- 2
- č. 264/2020 Sb.
- 230V
- 97 m2
- 186 m2
- Po rekonstrukci
- Smíšená
- G - Mimořádně nehospodárná
Na tomto webu zpracováváme cookies potřebné pro jeho fungování a analytiku.