Prodej rodinného domu 60 m², pozemek 496 m²
Divišov

2 290 000 za nemovitost
Kontakt:Antonín Čvančara E-mail:Telefon:605 330 330
Kliknutím souhlasíte s našimi

Popis

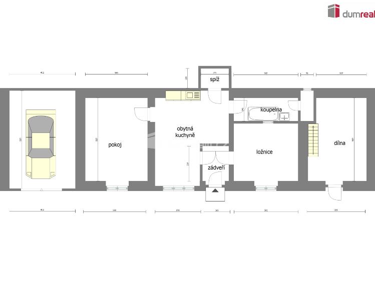
prodej rodinného domu o dispozici 3+kk, v obci Radonice na Benešovsku. Nemovitost má zastavěnou plochu 331m², bytová jednotka užitnou plochu 60m². Dům je určen k rekonstrukci a je možné ho využít na bydlení i k rekreaci. Střecha je ve výborném stavu. Půdní prostor s možností vestavby po celé ploše. Voda z nového vrtu, el. přípojka, pro odpad je třeba vybudovat ČOV. Jedná se o poslední dům ve slepé ulici, přímo u lesa. Po dohodě z obcí lze užívat přiléhající zalesněný pozemek. Krásné místo se soukromím, 5km od sjezdu exit 41 dálnice D1. Koupi nemovitosti je možné financovat hypotékou. Ev. číslo: 653288.

Další parametry

  • 4
  • 1
  • 331 m2
  • 496 m2
  • Před rekonstrukcí
  • Cihla
  • G - Mimořádně nehospodárná
Na tomto webu zpracováváme cookies potřebné pro jeho fungování a analytiku.

Upozornění

Používáte nepodporovaný (zastaralý) internetový prohlížeč!

Pro správný běh našeho portalu není možné použít vámi používaný prohlížeč.

Použijte prosím Microsoft Edge nebo některý z jiných prohlížečů, např. Google Chrome, Firefox.