Pronájem bytu 3+1 76 m²
Praha, Čajkovského 2423/14
+ poplatky 3.500,- (+ elektřina cca 800,-Kč)






Popis
- Tento popis je v:
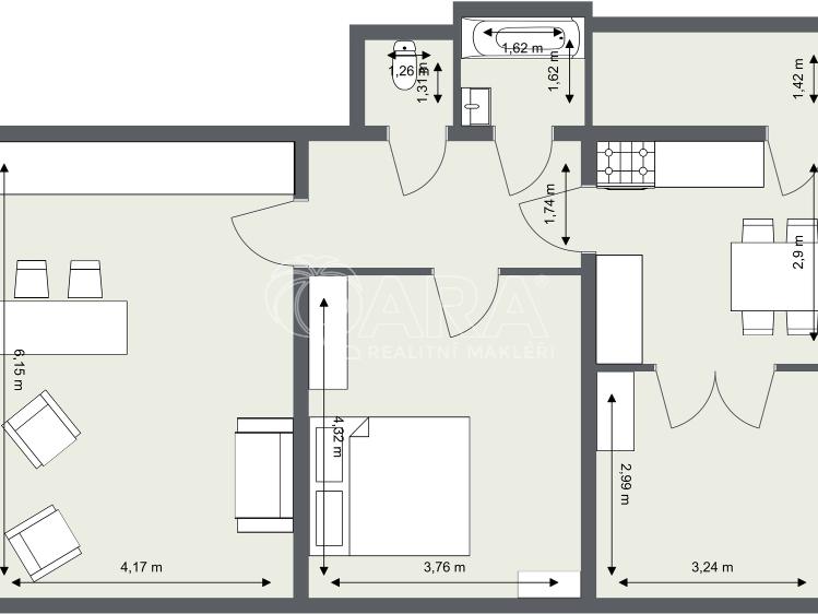
Pokud hledáte klasický Žižkovský byt pro rodinu, nebo skupinu přátel, už dál hledat nemusíte. Byt v Čajkovského o dispozici 3+1 je umístěný ve třetím patře a orientovaný do klidného vnitrobloku. Byt se skládá ze třech neprůchozích pokojů, samostatné kuchyně s jídelním koutem, koupelny s vanou, oddělené toalety a praktické komory s pračkou a ledničkou. K bytu dále náleží sklepní kóje v suterénu domu.
Na podlahách jsou zejména parkety, případně plovoucí podlaha, dlažba.
Byt je částečně vybaven nábytkem, který je součástí pronájmu, prokud máte svůj nábytek, můžeme zařídit odvoz stávajícího.
Koho hledáme?
Slušné nájemníky, klidně s domácími mazlíčky, studenty přijíždějící do Prahy, pracující spolubydlící.
Od kdy a na jak dlouho?
Byt je volný od 1.1.2026 Upřednosťnujeme dlouhodobý pronájem.
Kolik to bude stát?
Na začátku nájmu hradíte vratnou kauci ve výši jednoho nájmu a nájem na první měsíc.
tzn. 30 000 Kč Kauce
a nájem 30 000 Kč + 5 000 Kč poplatky
a bydlíte.
Odměna za zprostředkování ve výši jednoho nájmu.
Okolí bytu skýtá možnosti veškerého občanského vybavení, zahrnující několik supermarketů, restauračních zařízení, a to hlavní Atrium Flora, kam se chůzí dostanete do 10 minut. V blízkosti je také pošta, mateřská škola, základní škola i nemocnice. Pro milovníky přírody je v okolí několik krásných parků, pro trávení volného času. Spojení s centrem je zajištěno buď metrem ze stanic Flora, či náměstí Jiřího z Poděbrad, nebo tramvají ze zastávky Lipanská, na kterou se dostanete za pouhých 5 minut pěší chůze.
Byt i lokalita jsou díky skvělé poloze vhodné jak pro mladé, tak i pro starší, každý si zde přijde na své.
Kromě běžných prohlídek nemovitostí nabízím také videoprohlídky v reálném čase přes WhatsApp, FaceTime, Messenger, Skype atd.
Na podlahách jsou zejména parkety, případně plovoucí podlaha, dlažba.
Byt je částečně vybaven nábytkem, který je součástí pronájmu, prokud máte svůj nábytek, můžeme zařídit odvoz stávajícího.
Koho hledáme?
Slušné nájemníky, klidně s domácími mazlíčky, studenty přijíždějící do Prahy, pracující spolubydlící.
Od kdy a na jak dlouho?
Byt je volný od 1.1.2026 Upřednosťnujeme dlouhodobý pronájem.
Kolik to bude stát?
Na začátku nájmu hradíte vratnou kauci ve výši jednoho nájmu a nájem na první měsíc.
tzn. 30 000 Kč Kauce
a nájem 30 000 Kč + 5 000 Kč poplatky
a bydlíte.
Odměna za zprostředkování ve výši jednoho nájmu.
Okolí bytu skýtá možnosti veškerého občanského vybavení, zahrnující několik supermarketů, restauračních zařízení, a to hlavní Atrium Flora, kam se chůzí dostanete do 10 minut. V blízkosti je také pošta, mateřská škola, základní škola i nemocnice. Pro milovníky přírody je v okolí několik krásných parků, pro trávení volného času. Spojení s centrem je zajištěno buď metrem ze stanic Flora, či náměstí Jiřího z Poděbrad, nebo tramvají ze zastávky Lipanská, na kterou se dostanete za pouhých 5 minut pěší chůze.
Byt i lokalita jsou díky skvělé poloze vhodné jak pro mladé, tak i pro starší, každý si zde přijde na své.
Kromě běžných prohlídek nemovitostí nabízím také videoprohlídky v reálném čase přes WhatsApp, FaceTime, Messenger, Skype atd.
Další parametry
- vodovod
- vlak, dálnice, silnice, mhd, bus
- internet
- asfaltová
- plynovod
- veřejná kanalizace
- 5
- č. 264/2020 Sb.
- 230V
- 4 m2
- 4
- Dobrý
- Cihla
- osobní
Na tomto webu zpracováváme cookies potřebné pro jeho fungování a analytiku.