Prodej na klíč 121 m², pozemek 662 m²
Zlín, Pampelišková
Cena včetně pozemku, projektu, stavebního povolení, výstavby domu na klíč, kolaudace a celkového DPH









Popis
Zprostředkujeme Vám nízkoenergetické bydlení 4+kk ve Zlíně v ulici Pampelišková na klíč.
Chcete žít moderně, komfortně a s minimálními provozními náklady?
Představujeme Vám jedinečnou příležitost vlastnit nový, patrový rodinný dům 4+kk v žádané lokalitě Zlína, ulice Pampelišková.
Tento projekt je navržen tak, aby splňoval aktuální požadavky na úsporné a komfortní bydlení 21. století.
Zapomeňte na drahé účty za energie. Tento ekonomický dům má optimální půdorys, který minimalizuje plochu obvodových stěn. To šetří náklady jak při samotné výstavbě, tak především při dlouhodobém vytápění.
Investice Místo Nákladů: Prostředky, které ušetříte na provozu, můžete efektivně použít například na splácení hypotéky nebo investovat do rodiny.
Kvalita a detaily: zdravý základ dlouhé životnosti
Stavíme na pevných základech a prověřených materiálech. Zděná Stavba: Jedná se o kvalitní zděnou stavbu z materiálu Porfix 300, která zaručuje vynikající tepelně-izolační vlastnosti a dlouhou životnost.
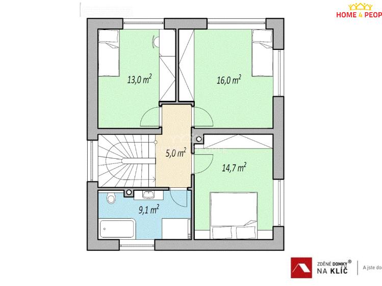
Parametry: Zastavěná plocha 81 m², velkorysá užitná plocha 121 m².
Vytápění a TUV: Ekologické a úsporné teplovodní podlahové topení je kombinováno s moderním tepelným čerpadlem, včetně 180L zásobníku na teplou vodu.
Vše zahrnuto: Uvedená cena je konečná a obsahuje kompletní stavbu na klíč, základovou desku, projekt a DPH.
Kompletní provedení na Klíč – stačí se nastěhovat.
Dům Vám předáme hotový k okamžitému užívání, včetně zajištění kolaudace.
Cena zahrnuje:
Interiér, finální povrchové úpravy, elektroinstalace, sanitární vybavení s bateriemi a interiérové dveře včetně obložek. Exteriér: Finální úpravy fasády.
Poznámka: Cena neobsahuje kuchyňskou linku a světla – ty Vám však dokážeme zajistit za zvýhodněných podmínek přes naše dodavatele.
Pozemek: Svažitý pozemek o výměře 662 m² je ideální pro rodinné bydlení.
Sítě: Inženýrské sítě jsou přivedeny přímo na pozemek.
Umístění: Poloha je situována v klidné zástavbě rodinných domů, v územním plánu určená pro rodinné bydlení.
Možnosti Přizpůsobení a Nadstandard. Neomezujte se! Máte možnost úpravy dispozice nebo tvaru domu.
Dále nabízíme: Změna vytápění: Možnost změnit systém vytápění nebo vystavět komín pro krbová kamna/vložku.
Příplatkové Opce: Kryté garážové stání nebo terasa.
Chytrá Domácnost: Pro náročné klienty máme nabídku nadstandardního vybavení – klimatizace, rekuperace, externí žaluzie/rolety, nebo instalace fotovoltaiky.
Délka výstavby od vydání stavebního povolení je pouze 12-13 měsíců.
Váš sen o bydlení čeká. Nenechte si ujít tuto doporučenou nabídku!
Pro více informací, sjednání prohlídky pozemku a možnost projít si naše hotové domy, kontaktujte makléře ještě dnes. Ev. číslo: 32039.
Chcete žít moderně, komfortně a s minimálními provozními náklady?
Představujeme Vám jedinečnou příležitost vlastnit nový, patrový rodinný dům 4+kk v žádané lokalitě Zlína, ulice Pampelišková.
Tento projekt je navržen tak, aby splňoval aktuální požadavky na úsporné a komfortní bydlení 21. století.
Zapomeňte na drahé účty za energie. Tento ekonomický dům má optimální půdorys, který minimalizuje plochu obvodových stěn. To šetří náklady jak při samotné výstavbě, tak především při dlouhodobém vytápění.
Investice Místo Nákladů: Prostředky, které ušetříte na provozu, můžete efektivně použít například na splácení hypotéky nebo investovat do rodiny.
Kvalita a detaily: zdravý základ dlouhé životnosti
Stavíme na pevných základech a prověřených materiálech. Zděná Stavba: Jedná se o kvalitní zděnou stavbu z materiálu Porfix 300, která zaručuje vynikající tepelně-izolační vlastnosti a dlouhou životnost.
Parametry: Zastavěná plocha 81 m², velkorysá užitná plocha 121 m².
Vytápění a TUV: Ekologické a úsporné teplovodní podlahové topení je kombinováno s moderním tepelným čerpadlem, včetně 180L zásobníku na teplou vodu.
Vše zahrnuto: Uvedená cena je konečná a obsahuje kompletní stavbu na klíč, základovou desku, projekt a DPH.
Kompletní provedení na Klíč – stačí se nastěhovat.
Dům Vám předáme hotový k okamžitému užívání, včetně zajištění kolaudace.
Cena zahrnuje:
Interiér, finální povrchové úpravy, elektroinstalace, sanitární vybavení s bateriemi a interiérové dveře včetně obložek. Exteriér: Finální úpravy fasády.
Poznámka: Cena neobsahuje kuchyňskou linku a světla – ty Vám však dokážeme zajistit za zvýhodněných podmínek přes naše dodavatele.
Pozemek: Svažitý pozemek o výměře 662 m² je ideální pro rodinné bydlení.
Sítě: Inženýrské sítě jsou přivedeny přímo na pozemek.
Umístění: Poloha je situována v klidné zástavbě rodinných domů, v územním plánu určená pro rodinné bydlení.
Možnosti Přizpůsobení a Nadstandard. Neomezujte se! Máte možnost úpravy dispozice nebo tvaru domu.
Dále nabízíme: Změna vytápění: Možnost změnit systém vytápění nebo vystavět komín pro krbová kamna/vložku.
Příplatkové Opce: Kryté garážové stání nebo terasa.
Chytrá Domácnost: Pro náročné klienty máme nabídku nadstandardního vybavení – klimatizace, rekuperace, externí žaluzie/rolety, nebo instalace fotovoltaiky.
Délka výstavby od vydání stavebního povolení je pouze 12-13 měsíců.
Váš sen o bydlení čeká. Nenechte si ujít tuto doporučenou nabídku!
Pro více informací, sjednání prohlídky pozemku a možnost projít si naše hotové domy, kontaktujte makléře ještě dnes. Ev. číslo: 32039.
Další parametry
- 4
- 2
- 49 kWh/m2
- 81 m2
- 662 m2
- Ve výstavbě
- Cihla
- A - Mimořádně úsporná
Na tomto webu zpracováváme cookies potřebné pro jeho fungování a analytiku.