Prodej bytu 2+KK 44 m²
Praha 5, U Komína 369/4
vč. garážového stání, sklepa a kompletních služeb RK







Popis
Ať hledáte startovací byt nebo chytrou investiční příležitost, pak tato nabídka Vás jistě osloví. Dispozice 2+KK téměř u metra je pro oba účely tou nejvhodnější.
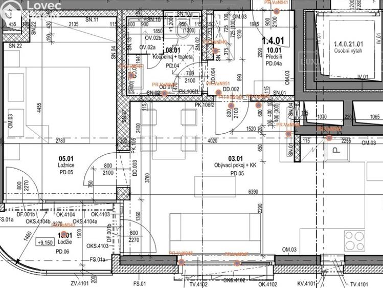
Nabízíme k prodeji dispozičně velmi praktický byt 2+KK v právě finišujícím úspěšném projektu Semerinka od uznávaného developera Crestyl. Právě probíhá kolaudační proces a ve velmi krátké době budou byty předávány novým majitelům. Můžete tedy zkrátit čekání na výstavbu Vašeho nového bytu v developerském projektu a pořídit si takový byt těsně před nastěhováním. K tomuto navíc již dostáváte v ceně také parkovací stání pro Vaše vozidlo a praktický sklep pro uložení sezónních věcí - obojí chytře pro praktičnost vedle sebe, což je obrovská přidaná hodnota v novostavbě. Velmi chytře řešenou pozici můžete vidět na přiloženém půdorysu.
Severozápadní orientace oken a velkoformátová okna v kombinaci s 4.NP, ve kterém se byt nachází, zaručují dostatek denního světla a stále ještě pěkné nerušené výhledy na Prahu nejen z lodžie, ale ze všech oken Vašeho bytu.
Byt zhotoven ve vysokém standardu projektu Semerinka, tedy v základu již dostáváte:
- úspornou novostavbu s PENB "B"
- kvalitní izolační velkoformátová okna
- podlahové vytápění ve všech obytných místnostech
- dřevěné plovoucí podlahy v obývací části a ložnici
- decentní a moderní obklady a dlažby
- inteligentní systémy řízení a rekuperaci vzduchu
- bezpečnostní vstupní dveře (T3)
- kamerový systém v domě a vlastní recepci
A navíc také velmi kvalitní zpracování a použití moderních a prémiových materiálů uznávaného developera.
Byt se prodává bez kuchyňské linky a vybavení nábytkem (můžete si zařídit přesně podle sebe). Pro ilustraci a inspiraci jsme Vám do fotografií připravili řadu vizualizací. Reálné fotografie v horší kvalitě (bez úprav) posíláme pouze přímým zájemcům.
V bezprostřední blízkosti domu naleznete veškerou občanskou vybavenost sportoviště a pro snadnou dopravu je stanice metra B Radlická pár minut od domu (popřípadě autobusové zastávky i vlakové spojení Na Knížecí/Smíchov nedaleko). Tato vyhledávaná a velmi rychle se rozvíjejí lokalita ovšem nabízí i velké množství zeleně, parků a míst pro relaxaci.
Tento byt představuje skvělou příležitost jak pro vlastní bydlení, tak i pro investici. Na prohlídku se objednávejte pomocí formuláře níže nebo mi zavolejte či napište.
Doporučuji osobní prohlídku! Budu se těšit na viděnou.
Nabízíme k prodeji dispozičně velmi praktický byt 2+KK v právě finišujícím úspěšném projektu Semerinka od uznávaného developera Crestyl. Právě probíhá kolaudační proces a ve velmi krátké době budou byty předávány novým majitelům. Můžete tedy zkrátit čekání na výstavbu Vašeho nového bytu v developerském projektu a pořídit si takový byt těsně před nastěhováním. K tomuto navíc již dostáváte v ceně také parkovací stání pro Vaše vozidlo a praktický sklep pro uložení sezónních věcí - obojí chytře pro praktičnost vedle sebe, což je obrovská přidaná hodnota v novostavbě. Velmi chytře řešenou pozici můžete vidět na přiloženém půdorysu.
Severozápadní orientace oken a velkoformátová okna v kombinaci s 4.NP, ve kterém se byt nachází, zaručují dostatek denního světla a stále ještě pěkné nerušené výhledy na Prahu nejen z lodžie, ale ze všech oken Vašeho bytu.
Byt zhotoven ve vysokém standardu projektu Semerinka, tedy v základu již dostáváte:
- úspornou novostavbu s PENB "B"
- kvalitní izolační velkoformátová okna
- podlahové vytápění ve všech obytných místnostech
- dřevěné plovoucí podlahy v obývací části a ložnici
- decentní a moderní obklady a dlažby
- inteligentní systémy řízení a rekuperaci vzduchu
- bezpečnostní vstupní dveře (T3)
- kamerový systém v domě a vlastní recepci
A navíc také velmi kvalitní zpracování a použití moderních a prémiových materiálů uznávaného developera.
Byt se prodává bez kuchyňské linky a vybavení nábytkem (můžete si zařídit přesně podle sebe). Pro ilustraci a inspiraci jsme Vám do fotografií připravili řadu vizualizací. Reálné fotografie v horší kvalitě (bez úprav) posíláme pouze přímým zájemcům.
V bezprostřední blízkosti domu naleznete veškerou občanskou vybavenost sportoviště a pro snadnou dopravu je stanice metra B Radlická pár minut od domu (popřípadě autobusové zastávky i vlakové spojení Na Knížecí/Smíchov nedaleko). Tato vyhledávaná a velmi rychle se rozvíjejí lokalita ovšem nabízí i velké množství zeleně, parků a míst pro relaxaci.
Tento byt představuje skvělou příležitost jak pro vlastní bydlení, tak i pro investici. Na prohlídku se objednávejte pomocí formuláře níže nebo mi zavolejte či napište.
Doporučuji osobní prohlídku! Budu se těšit na viděnou.
Další parametry
- vodovod
- podlahové vytápění
- ústřední dálkové
- 2
- vlak, dálnice, mhd
- internet
- asfaltová
- 2
- 4 m2
- plynovod
- veřejná kanalizace
- 1
- 9
- č. 264/2020 Sb.
- 2 m2
- 1015 m2
- 4
- Velmi dobrý
- Cihla
- B - Velmi úsporná
- osobní
- Zobrazit průkaz energetické náročnosti budovy
Na tomto webu zpracováváme cookies potřebné pro jeho fungování a analytiku.