Prodej obchodního prostoru 133 m²
Kralupy nad Vltavou, Přemyslova 375





































Popis
- Tento popis je v:
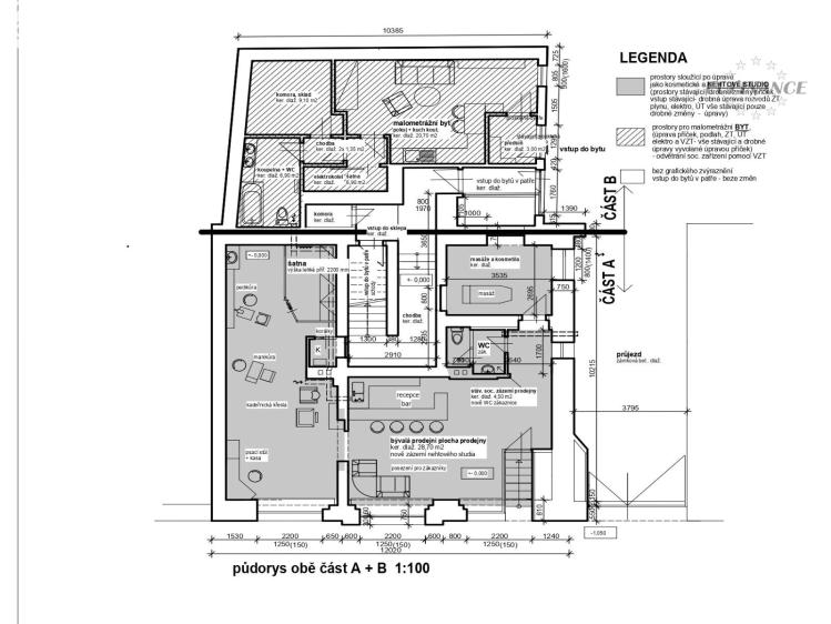
Nabízíme Vám zprostředkování prodeje nebytového prostoru (prodejny) vč. bytu o dispozici 1+kk o celkové výměře 132,6 m2. Oba prostory se nachází ve stejném 1. NP v bytovém domě v obci Kralupy nad Vltavou, ulice Přemyslova. K prodejně i bytu dále náleží společné sklepní prostory a dvě velké nevyužité místnosti, které lze pronajmout samostatně nebo připojit k bytu či k prodejně. Veškeré dispozice bytu, prodejny a úložných prostorů naleznete v přiloženém půdoryse. Parkování je možné zdarma před domem.
Prodejna i bytová jednotka jsou dlouhodobě pronajaté s čistým měsíčním nájmem 19 600,- slušným, dlouhodobým a platícím nájemcům, tak lze pouze převzít sjednané nájemní smlouvy, popř. obě nájemní smlouvy (prodejna i byt) lze vypovědět s tříměsíční výpovědní lhůtou. Nemovitost je vhodná pro investora, který nemovitost jen převezme nájemní smlouvy.
Celá nemovitost má platné Prohlášení vlastníka a je řádně zkolaudována, na vyžádání pošleme emailem. Na prodejnu je dále Stavebním úřadem schválena změna užívání na kosmetické a nehtové studio, nicméně nadále může zůstat stávající využití prodejny.
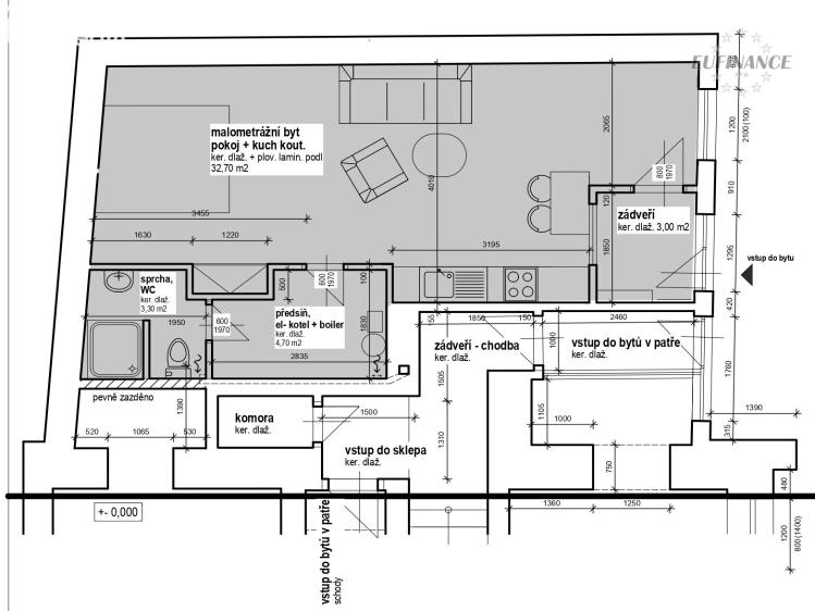
Bytová jednotka se nachází v zadní části v 1. NP cihlového domu, tudíž nemá okna do ulice (byt bez oken). Byt má zděné jádro, nové rozvody topení a vody v plastu a elektřiny v mědi. V bytě jsou k dispozici veškeré inženýrské sítě, kabelová televize vč. rychlostního internetu. Byt je vytápěn elektro kotlem do radiátorů. Na podlahách je položena dlažba a plovoucí podlaha.
Prodejna má rovněž zděné jádro a veškeré nové rozvody elektřiny, topení i vody, vytápění je plynovým kotlem do radiátorů.
Ve městě Kralupy n.Vlt. je kompletní občanská vybavenost (10 min pěšky): mateřské i základní školy, supermarkety, zdravotní středisko, nemocnice, pošta, banky. Přímo naproti domu se nachází autobusová zastávka, odkud lze dojet na vlakové nádraží nebo PID do Prahy na metro. 12 min pěšky je vzdálené autobusové a vlakové nádraží s přímým spojem 25 min do centra Prahy na Masarykovo či Hlavní nádraží (3 vlaky za hodinu). Právní servis vč. vyřízení úvěru zdarma.
Prodejna i bytová jednotka jsou dlouhodobě pronajaté s čistým měsíčním nájmem 19 600,- slušným, dlouhodobým a platícím nájemcům, tak lze pouze převzít sjednané nájemní smlouvy, popř. obě nájemní smlouvy (prodejna i byt) lze vypovědět s tříměsíční výpovědní lhůtou. Nemovitost je vhodná pro investora, který nemovitost jen převezme nájemní smlouvy.
Celá nemovitost má platné Prohlášení vlastníka a je řádně zkolaudována, na vyžádání pošleme emailem. Na prodejnu je dále Stavebním úřadem schválena změna užívání na kosmetické a nehtové studio, nicméně nadále může zůstat stávající využití prodejny.
Bytová jednotka se nachází v zadní části v 1. NP cihlového domu, tudíž nemá okna do ulice (byt bez oken). Byt má zděné jádro, nové rozvody topení a vody v plastu a elektřiny v mědi. V bytě jsou k dispozici veškeré inženýrské sítě, kabelová televize vč. rychlostního internetu. Byt je vytápěn elektro kotlem do radiátorů. Na podlahách je položena dlažba a plovoucí podlaha.
Prodejna má rovněž zděné jádro a veškeré nové rozvody elektřiny, topení i vody, vytápění je plynovým kotlem do radiátorů.
Ve městě Kralupy n.Vlt. je kompletní občanská vybavenost (10 min pěšky): mateřské i základní školy, supermarkety, zdravotní středisko, nemocnice, pošta, banky. Přímo naproti domu se nachází autobusová zastávka, odkud lze dojet na vlakové nádraží nebo PID do Prahy na metro. 12 min pěšky je vzdálené autobusové a vlakové nádraží s přímým spojem 25 min do centra Prahy na Masarykovo či Hlavní nádraží (3 vlaky za hodinu). Právní servis vč. vyřízení úvěru zdarma.
Další parametry
- místní zdroj vody
- radiátory
- plynový kotel, elektrokotel
- plynový kotel, elektrokotel
- vlak, dálnice, silnice, mhd, bus
- telefon, internet, satellite, kabelová televize, kabelové rozvody
- asfaltová
- 5
- lokální plynové, lokální elektrické
- plynovod
- veřejná kanalizace
- 1
- č. 264/2020 Sb.
- 230V
- Velmi dobrý
- Cihla
- G - Mimořádně nehospodárná
Na tomto webu zpracováváme cookies potřebné pro jeho fungování a analytiku.