Prodej stavebního pozemku 220 m², pozemek 2041 m²
Vladislav







Popis
Hledáte klid, prostor a nadstandardní bydlení? Nabízíme jedinečnou příležitost pro náročné zájemce, kteří hledají moderní, prostorné a energeticky úsporné bydlení v krásné venkovské lokalitě. Součástí nabídky je stavební pozemek ve Střížově u Vladislavi a nadstandardně velká dřevostavba 6+kk s užitnou plochou 220 m².
Rodinný dům je navržen jako nízkoenergetická dřevostavba z prefabrikovaných rámových stěnových panelů. Jedná se o hrubou stavbu, u které lze individuálně domluvit její dokončení. Dispozice i vzhled domu může stavební firma upravit podle přání klienta. Realizace hrubé stavby je do 4 měsíců
Pozemek se nachází v klidné lokalitě 10 km od Třebíče. Ze Střížova jezdí autobus do Vladislavi i Třebíče, ve Vladislavi (3 km) je vlakové spojení do Třebíče, Brna i Náměště nad Oslavou a kompletní občanská vybavenost: škola, školka, lékař, pošta, knihovna i sportovní zázemí.
Na pozemku je vodovodní a kanalizační přípojka, elektřinu je nutné vyřídit. Přístup na pozemek je z obou stran - z obecní komunikace i z polní cesty.
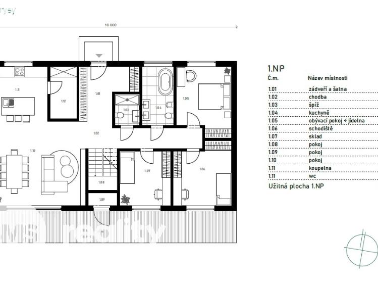
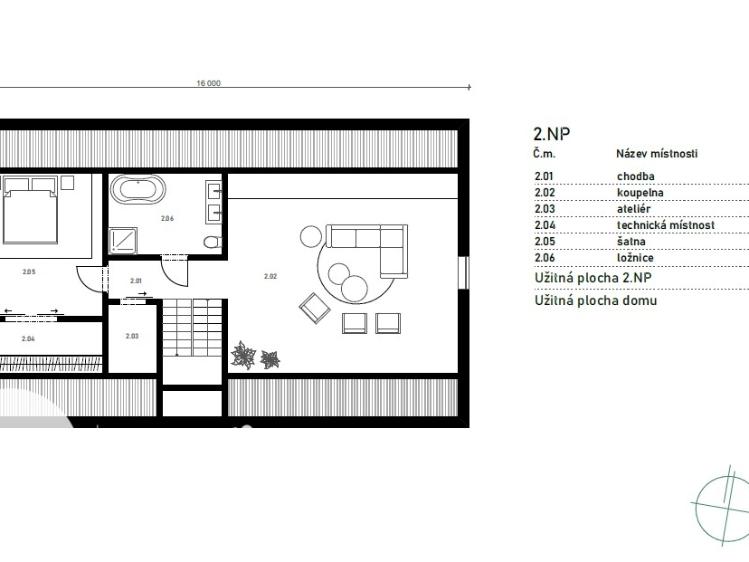
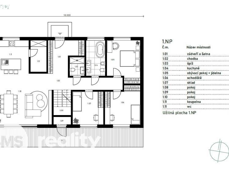
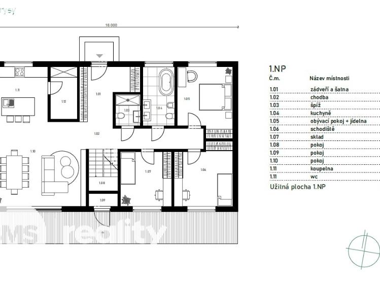
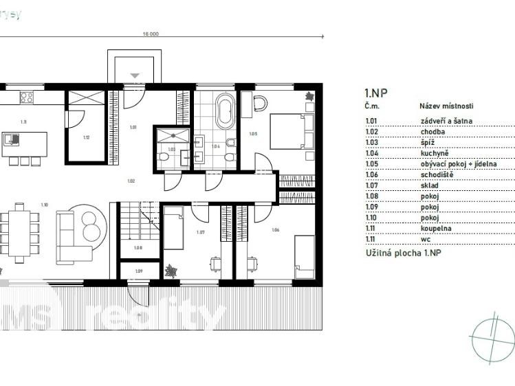
Pro lepší představu přikládám vizualizaci domu, umístění na pozemku a půdorysy obou podlaží.
Pro více informací mne neváhejte kontaktovat.
Rodinný dům je navržen jako nízkoenergetická dřevostavba z prefabrikovaných rámových stěnových panelů. Jedná se o hrubou stavbu, u které lze individuálně domluvit její dokončení. Dispozice i vzhled domu může stavební firma upravit podle přání klienta. Realizace hrubé stavby je do 4 měsíců
Pozemek se nachází v klidné lokalitě 10 km od Třebíče. Ze Střížova jezdí autobus do Vladislavi i Třebíče, ve Vladislavi (3 km) je vlakové spojení do Třebíče, Brna i Náměště nad Oslavou a kompletní občanská vybavenost: škola, školka, lékař, pošta, knihovna i sportovní zázemí.
Na pozemku je vodovodní a kanalizační přípojka, elektřinu je nutné vyřídit. Přístup na pozemek je z obou stran - z obecní komunikace i z polní cesty.
Pro lepší představu přikládám vizualizaci domu, umístění na pozemku a půdorysy obou podlaží.
Pro více informací mne neváhejte kontaktovat.
Další parametry
- Ne
- 4
- 4
- č. 264/2020 Sb.
- 2041 m2
- Novostavba
- Dřevostavba
Na tomto webu zpracováváme cookies potřebné pro jeho fungování a analytiku.