Prodej rodinného domu 218 m², pozemek 1003 m²
Radějovice, Svatojanská 60
Cena domu je uvedena vč. DPH a provize RK.







































Popis
Vítejte v Oleškách, kde vznikla dvojice domů, které si na nic nehrají. Čistý design. Promyšlený prostor.
Klid. Technologie, které slouží – neobtěžují. Domy, které dýchají – stejně jako vy.
✔️ 218 m² promyšleného prostoru pro život, tvoření i odpočinek.
✔️ 1 003 m² půdy – země, která vám dá kořeny i svobodu.
Domy jsou navrženy v energetickém standardu (PENB A) – úsporné, zdravé a dlouhodobě udržitelné.
Každý detail zde podporuje principy minimalismu, zdraví a ekologie:
✔️ Rekuperace Zehnder pro čerstvý vzduch a zdravý spánek
✔️ Fotovoltaika Solax s bateriemi a wallboxem pro vlastní energii
✔️ Vytápění a ohřev vody Tepelné čerpadlo Stiebel Eltron
✔️ Chlazení tepelným čerpadlem Stiebel Eltron
✔️ Předokenní žaluzie pro komfort i úsporu
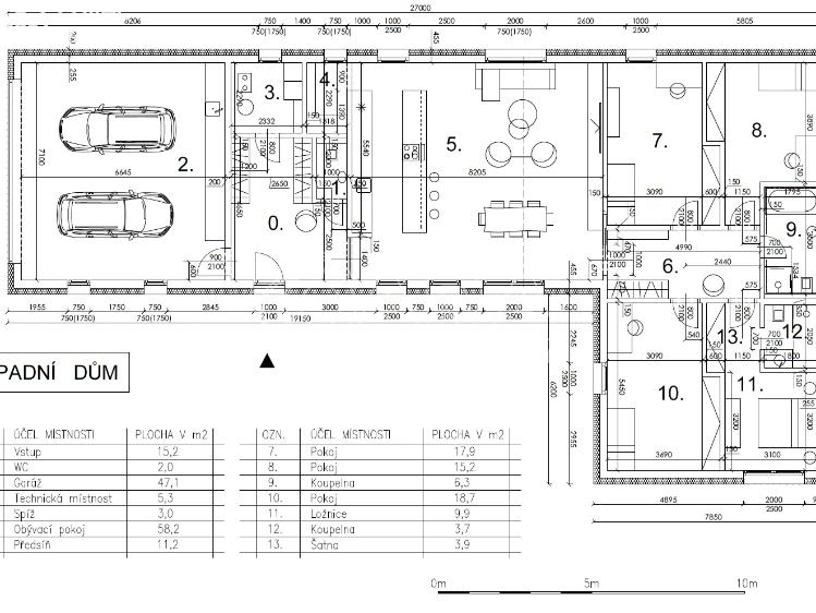
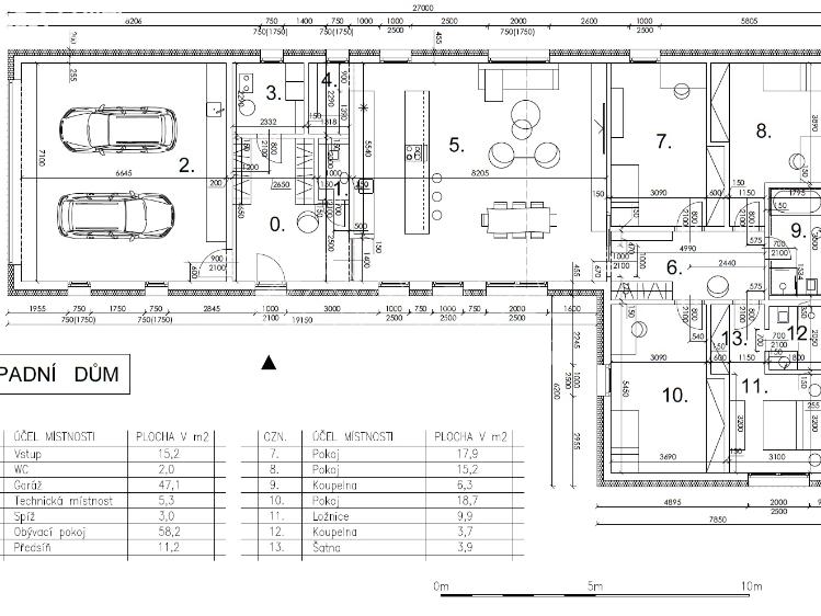
Dispozice, která nabízí prostor pro vaši kreativitu
A také praktická jistota, že vše potřebné máte k dispozici:
✔️ Vodovod i vlastní vrtaná studna – voda, která proudí i patří vám
✔️ Veřejná kanalizace – čistota a jednoduchost bez starostí
✔️ Plyn v pilíři – energie pro další možnosti
✔️ Optický internet – spojení se světem, i když žijete v klidu
Tohle není jen dům.
Je to prostor v rovnováze – technologie a ticho, čistota a teplo domova.
Cena domu je uvedena vč. DPH.
Poslední dům v nabídce.
Těšíme se na prohlídku
Jaroslav Beránek
Klid. Technologie, které slouží – neobtěžují. Domy, které dýchají – stejně jako vy.
✔️ 218 m² promyšleného prostoru pro život, tvoření i odpočinek.
✔️ 1 003 m² půdy – země, která vám dá kořeny i svobodu.
Domy jsou navrženy v energetickém standardu (PENB A) – úsporné, zdravé a dlouhodobě udržitelné.
Každý detail zde podporuje principy minimalismu, zdraví a ekologie:
✔️ Rekuperace Zehnder pro čerstvý vzduch a zdravý spánek
✔️ Fotovoltaika Solax s bateriemi a wallboxem pro vlastní energii
✔️ Vytápění a ohřev vody Tepelné čerpadlo Stiebel Eltron
✔️ Chlazení tepelným čerpadlem Stiebel Eltron
✔️ Předokenní žaluzie pro komfort i úsporu
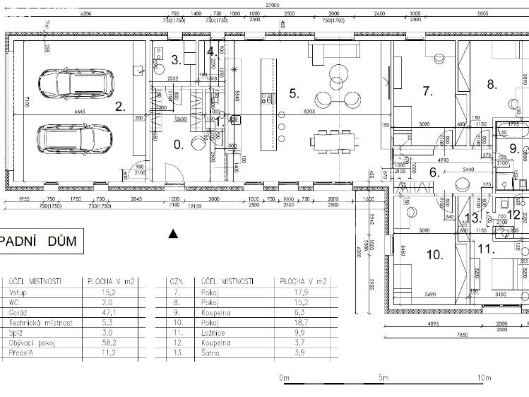
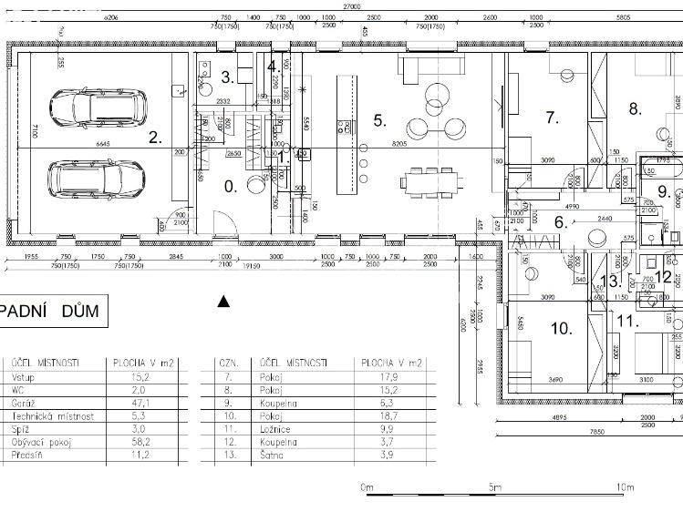
Dispozice, která nabízí prostor pro vaši kreativitu
A také praktická jistota, že vše potřebné máte k dispozici:
✔️ Vodovod i vlastní vrtaná studna – voda, která proudí i patří vám
✔️ Veřejná kanalizace – čistota a jednoduchost bez starostí
✔️ Plyn v pilíři – energie pro další možnosti
✔️ Optický internet – spojení se světem, i když žijete v klidu
Tohle není jen dům.
Je to prostor v rovnováze – technologie a ticho, čistota a teplo domova.
Cena domu je uvedena vč. DPH.
Poslední dům v nabídce.
Těšíme se na prohlídku
Jaroslav Beránek
Další parametry
- vodovod
- podlahové vytápění
- tepelné čerpadlo
- tepelné čerpadlo
- optika
- Vrtaná studna
- dálnice, silnice, bus
- internet, kabelové rozvody
- asfaltová
- Ne
- 2
- 4
- plynovod
- veřejná kanalizace
- 735 m2
- 2
- 1
- č. 264/2020 Sb.
- 230V
- 268 m2
- 1003 m2
- Velmi dobrý
- Cihla
- A - Mimořádně úsporná
- Ano
Na tomto webu zpracováváme cookies potřebné pro jeho fungování a analytiku.