Prodej bytu 3+1 103 m²
Františkovy Lázně, Francouzská 73/5





















Popis
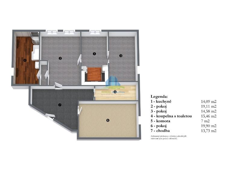
Realitní kancelář Rebellion nabízí velmi pěkný byt 3+1(cca103,9m²) ve zděné zástavbě ve Francouzské ulici ve Františkových Lázních. Jedná se o podkrovní byt ve III.NP zděného domu. Byt je prázdný, bez kuchyňské linky. Je zde koupelna s vanou, WC a umyvadlem. Okna jsou dřevěná vč. střešních(2016). Na podlaze je položený zátěžový koberec, dlažba. Topení je zajištěno plynovým kotlem.
V docházkové vzdálenosti od nemovitosti je veškerá občanská vybavenost.
V případě zájmu o prohlídku nás neváhejte kontaktovat.
Rádi Vám zajistíme financování nemovitostí s komplexními službami a nejvýhodnější úrokovou sazbou! PENB G
https://www.youtube.com/watch?v=nMvZ_b-JEJA
V docházkové vzdálenosti od nemovitosti je veškerá občanská vybavenost.
V případě zájmu o prohlídku nás neváhejte kontaktovat.
Rádi Vám zajistíme financování nemovitostí s komplexními službami a nejvýhodnější úrokovou sazbou! PENB G
https://www.youtube.com/watch?v=nMvZ_b-JEJA
Další parametry
- vodovod
- radiátory
- plynový kotel
- vlak, silnice, bus
- asfaltová
- 1
- ústřední elektrické
- plynovod
- veřejná kanalizace
- č. 264/2020 Sb.
- 230V
- 3
- Dobrý
- Cihla
- G - Mimořádně nehospodárná
- osobní
Na tomto webu zpracováváme cookies potřebné pro jeho fungování a analytiku.