Pronájem bytu 2+KK 43 m²
Praha, Anny Drabíkové 534/3
22.000,-- Kč měsíční nájemné + 5.000,-- Kč služby včetně elektrické energie. Vratná kauce 22.000,-- Kč, odměna zprostředkovatele 22.000,-- Kč.


















Popis
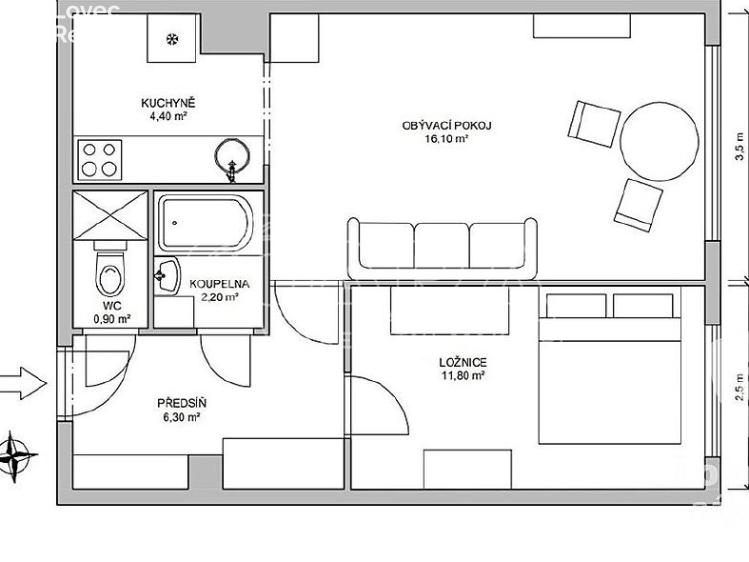
Nabízím k pronájmu pěkný nekuřácký byt po rekonstrukci v Praze Hájích dispozičně řešený jako 2+kk s užitnou plochou 43 m2.
Byt se nachází v 9. patře s výtahem v pěkném, celkově revitalizovaném panelovém domě. Nově je zde vybudován bezbariérový přístup do domu.
Byt prošel celkovou rekonstrukcí, zděné bytové jádro - koupelna s vanou a toaletou. Nová kuchyňská linka s plynovým sporákem a troubou, nová lednice s mrazákem. Nové plovoucí podlahy. Byt se pronajímá částečně zařízený.
Z prostorné předsíně se vchází do všech místností v bytě. Koupelna je spojena s toaletou, vybavená je vanou a umyvadlem, zrcadlovou skříňkou, pračka k dispozici. Ložnice (12 m2) je vybavena postelí 160 x 200 cm a nočním stolkem.
Dominantou je prostorný obývací pokoj (16 m2) propojený s útulným kuchyňským koutem. K dispozici je rozkládací sofa, TV, regály sloužící jako úložné prostory, jídelní stůl se židlemi. Kuchyňská linka je nová, disponuje velkým dřezem, novou lednicí s mrazákem, plynovým sporákem s troubou a digestoří.
Pronájem činí 22.000,-- Kč měsíčně, veškeré služby včetně elektrické energie jsou 5.000,-- Kč/měsíčně. Vratná kauce pronajímateli činí 22.000,-- Kč, odměna zprostředkovatele je 22.000,-- Kč. Byt je volný ihned.
V případě zájmu o termín prohlídky mne kontaktujte telefonicky.
Další parametry
- vodovod
- radiátory
- centrální dálkové
- silnice, mhd, bus
- asfaltová
- 5
- plynovod
- veřejná kanalizace
- 13
- č. 264/2020 Sb.
- 230V
- 2156 m2
- 9
- Velmi dobrý
- Panel
- G - Mimořádně nehospodárná
- osobní