Pronájem rodinného domu 168 m², pozemek 460 m²
Brandýs nad Labem-Stará Boleslav, Dříská 1883
+ zálohy na služby





















Popis
K pronájmu nabízím rodinný dům o užitné ploše 168 m² na pozemku o velikosti 460 m² se zahradou, garáží a dalším parkovacím místem vedle garáže. Dům se nachází v klidné rezidenční ulici Dříská, Stará Boleslav (Brandýs nad Labem–Stará Boleslav). je nový a pečlivě udržovaný, s příjemnou zahradou a dostatkem prostoru.
Dům je ideální pro rodinu, která hledá klid, prostor a výborné zázemí.
Dispozice
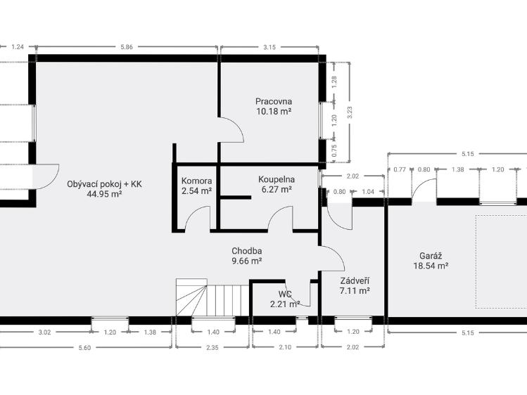
Přízemí:
• Obývací pokoj s plně vybaveným kuchyňským koutem a vstupem na terasu
• Koupelna se sprchovým koutem
• Pracovna / pokoj
• Samostatné WC
• Vstupní chodba
• Spíž
2. nadzemní podlaží:
• Tři samostatné ložnice
• Koupelna s vanou a WC
Náklady a podmínky
• Nájemné: 35 000 Kč / měsíc
• Zálohy na služby: 7 000 Kč / měsíc (vodné/stočné, elektřina – vytápění i provoz, odvoz odpadu)
• Vratná kauce: 45 000 Kč
• Provize RK: 40 000 Kč vč. DPH
Parkování
1 vůz v garáži, další 1 vůz na parkovacím místě vedle garáže za posuvnou bránou.
Dopravní dostupnost do Prahy:
Autobus (PID, linka 379): přímé spojení na Praha – Černý Most (metro B). Nejbližší zastávka je cca 700 m od domu. Jízdní doba cca 15 minut (podle dopravní situace).
Autem: rychlý nájezd na D10 (sjezd Brandýs/Stará Boleslav, cca 1,5 km). Cesta do Prahy trvá zhruba 35 minut mimo špičku, 45–60 minut ve špičce dle provozu.
Občanská vybavenost:
V pěší vzdálenosti: MŠ/ZŠ, menší potraviny, dětská hřiště, sportoviště, procházkové trasy podél Labe a lesopark Houšťka.
Do 5–10 minut: kompletní městská infrastruktura Brandýsa n. L.–Staré Boleslavi – Retail Park Traxial (≈1 km: BILLA, JYSK, Teta drogerie, BENU lékárna, Super Zoo, Zásilkovna, Alza box, PPL box), další supermarkety (Lidl, Kaufland), pošta, kavárny, restaurace, poliklinika a lékárny.
Chcete-li získat více informací nebo si domluvit prohlídku, odpovězte na tento inzerát nebo mě kontaktujte e-mailem.
Další parametry
- vodovod
- radiátory
- elektrokotel
- elektrokotel
- dálnice, silnice, bus
- dlážděná, asfaltová
- Ne
- 2
- 2
- veřejná kanalizace
- 260 m2
- 1
- 2
- 125 kWh/m2
- č. 78/2013 Sb.
- 129 m2
- 460 m2
- Velmi dobrý
- Cihla
- B - Velmi úsporná