Prodej bytu 2+KK 39 m²
Praha, Patočkova 1405/43
vč. provize a právního servisu


















Popis
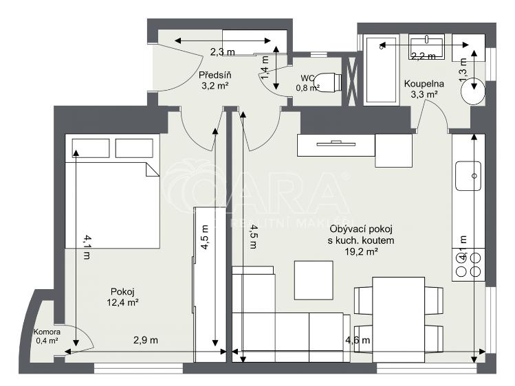
Nabízíme k prodeji 2+kk o velikosti 39,3 m², který se nachází v 6. (předposledním) nadzemním podlaží cihlového domu s výtahem v oblíbené části Prahy 6 – Břevnov v ulici Patočkova.
Jednotka prošla částečnou modernizací a je plně vybavena tak, abyste se mohli okamžitě nastěhovat nebo ji bez problémů nabídnout k pronájmu.
Součástí bytu je kuchyňská linka včetně spotřebičů (plynový sporák s troubou, digestoř, lednice s mrazákem), rohová rozkládací sedačka, jídelní stůl se židlemi, LCD televize. V ložnici pak postel a prostorná šatní skříň. Koupelna je s menší vanou, k dispozici budete mít i pračku. WC je oddělené.
Podlahy tvoří dřevěné parkety v obývacím pokoji, plovoucí podlaha v ložnici. V koupelně je dlažba. Okna plastová. Vytápění plynovými WAW ohřev vody zabezpečuje elektrický bojler.
Lokalita nabízí výbornou občanskou vybavenost vč. dostupnosti MHD. Autobusová zastávka s rychlým spojením (10 min.) na metro Dejvická je 2 min. chůzí od domu. V těsné blízkosti jsou také parky Kajetánka nebo Ladronka. Pohodlné parkování na zónách v zadní části domu.
Tato nemovitost představuje skvělou příležitost pro vlastní bydlení i investici s okamžitou návratností. Volné ihned.
V případě zájmu o osobní prohlídku, mne neváhejte kontaktovat.
Další parametry
- vodovod
- WAW
- WAW
- bojler – elektro
- mhd
- internet
- asfaltová
- plynovod
- veřejná kanalizace
- 7
- č. 264/2020 Sb.
- 230V
- 2 m2
- 6
- Velmi dobrý
- Cihla
- E - Nehospodárná
- osobní
- Zobrazit průkaz energetické náročnosti budovy