Pronájem bytu 2+KK 35 m²
Chrášťany
poplatky 5.000,-Kč (voda, elektřina, popelnice) pro dvě osoby + provize RK













Popis
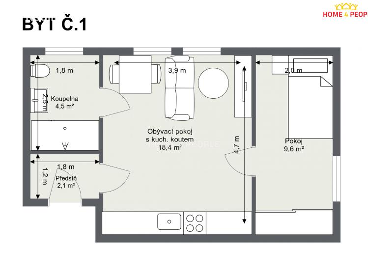
ve výhradním zastoupení majitele pronájem bytu 2+kk, 35m² s malou zahrádkou v přízemí domu, která bude společná pro všechny bytové jednotky v obci Bylany u Českého Brodu. Bytová jednotka momentálně prošla kompletní rekonstrukcí. Úplně nová kuchyňská linka včetně myčky. Jinak je byt bez vybavení. V koupelně najdete sprchový kout, umyvadlo a wc. Hledáte klid v dojezdové vzdálenosti do Prahy, Českého Brodu či Kolína? Neváhejte mě kontaktovat pro více informací nebo prohlídku. Byt je volný od 15.10.2025 nebo dle dohody. Pronajímatel si vyhrazuje právo vybrat zájemce na základě jím zvolených kritérií. Ev. číslo: 31942.
Další parametry
- 2
- 1 kWh/m2
- 2
- Velmi dobrý
- Cihla
- F - Velmi nehospodárná
- osobní