Prodej rodinného domu 70 m², pozemek 147 m²
Kamenný Most
Cena je včetně provize RK a právních služeb.

















Popis
Ve výhradním zastoupení majitele Vám nabízíme možnost koupě rodinného domu v obci Kamenný Most, v okrese Kladno. Tento přízemní dům o zastavěné ploše 106 m² a užitné ploše 70 m² se nachází na pozemku o velikosti 147 m² a nabízí možnost bydlení v klidné lokalitě.
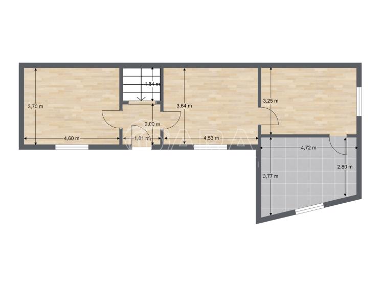
Dům disponuje čtyřmi pokoji, které nabízí dostatek prostoru pro pohodlné bydlení. Objekt je v původním stavu a je určen ke kompletní rekonstrukci. Součástí domu je sklep o ploše 4 m².
V domě je zavedena elektřina. Přípojky plynu a obecního vodovodu jsou zavedeny do domu ale je nutné je znova aktivovat. Kanalizace vede v ulici před domem.
Obec Kamenný Most se nachází zhruba 12 km od Slaného, 27 km od Prahy a cca 5 km od Velvar. V Kamenném Mostě je obecní úřad, autobusová i vlaková zastávka, obchod s potravinami (COOP), dětské hřiště. Nejbližší škola je ve Zvoleněvsi a ve Slatině. Veškerá občanská vybavenost je ve Slaném a Velvarech.
Doporučuji prohlídku.
Další parametry
- vodovod
- WAW
- WAW
- vlak, silnice, bus
- dlážděná
- Ne
- 1
- 1
- plynovod
- 41 m2
- 1
- č. 264/2020 Sb.
- 230V
- 4 m2
- 106 m2
- 147 m2
- Velmi dobrý
- Smíšená
- G - Mimořádně nehospodárná