Pronájem rodinného domu 106 m², pozemek 56 m²
Buštěhrad, Ořešín 956



















Popis
Pokud hledáte k pronájmu klidný a moderní dům se zahradou v dosahu veškerého komfortu velkoměsta, pak jste tu správně.
Jedná se o řadový dům 3 + kk postavený v klidné nové čtvrti Buštěhrad – Ořešín. K domu patří dvě bezplatná parkovací stání.
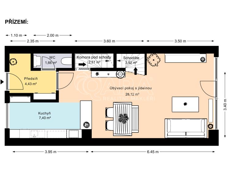
Přes zádveří se vstupuje do obývacího pokoje s výhledem do zahrady. Tento prostor je neskutečným bonusem celého domu, zahrada poskytuje Vašemu životu velký komfort. Pokračováním obývacího pokoje a neoficiální čtvrtou místností domu je vyhřívaná terasa, kde můžete trávit spoustu krásných večerů i v chladnějších měsících. Výhodou celého pozemku je i jeho propojení s okolím. Ze zahrady máte totiž přístup zadní brankou ven přímo do parku s nedalekým dětským hřištěm.
Součástí přízemí je plně vybavený kuchyňský kout, samostatná toaleta a úložný prostor. Z obývacího pokoje v přízemí se po schodišti dostanete do podkroví, kde se nachází dva samostatné pokoje, koupelna se sprchovým koutem, vanou i WC a šikovně vyřešený pracovní kout na galerii nad schodištěm.
Dům je vytápěný kondenzačním kotlem Protherm, v domě je klimatizace, voda je upravována změkčovačem vody a internetové spojení je zajišťováno místní firmou.
Dům se pronajímá částečně zařízený – kuchyňská linka s vybavením, jídelní stůl se židlemi, gauč, postel, komody, vestavěné skříně, televizní stěna včetně velké TV. Vše moderní a funkční. Celý dům je nesmírně kompaktní s chytrým využitím úložných prostor a splňuje veškeré požadavky na moderní bydlení. Pro majitele hledám spolehlivého dlouhodobého nájemce.
Odběr elektřiny a plynu přihlásím přímo na vás, abyste měli kontrolu nad vlastní spotřebou, vodné a stočné zůstává převedeno na majitele.
Poplatky za vodné a stočné jsou 1.830 Kč měsíčně, za odvoz odpadu 1.100 Kč ročně. Poplatky za elektřinu 4 300 Kč a za plyn 1 500 Kč při provozu rodiny s dětmi a při práci z domova.
Celková vstupní platba se skládá z nájemného na první měsíc ve výši 40 000 Kč + 2 vratné měsíční kauce ve výši 80 000 Kč + provize makléře ve výši 20 000 Kč.
Pokud potřebujete více informací o lokalitě, nebo chcete dům navštívit, abyste zjistili, jak se vám v něm bude žít, ráda se s vámi setkám na prohlídce.
Jedná se o řadový dům 3 + kk postavený v klidné nové čtvrti Buštěhrad – Ořešín. K domu patří dvě bezplatná parkovací stání.
Přes zádveří se vstupuje do obývacího pokoje s výhledem do zahrady. Tento prostor je neskutečným bonusem celého domu, zahrada poskytuje Vašemu životu velký komfort. Pokračováním obývacího pokoje a neoficiální čtvrtou místností domu je vyhřívaná terasa, kde můžete trávit spoustu krásných večerů i v chladnějších měsících. Výhodou celého pozemku je i jeho propojení s okolím. Ze zahrady máte totiž přístup zadní brankou ven přímo do parku s nedalekým dětským hřištěm.
Součástí přízemí je plně vybavený kuchyňský kout, samostatná toaleta a úložný prostor. Z obývacího pokoje v přízemí se po schodišti dostanete do podkroví, kde se nachází dva samostatné pokoje, koupelna se sprchovým koutem, vanou i WC a šikovně vyřešený pracovní kout na galerii nad schodištěm.
Dům je vytápěný kondenzačním kotlem Protherm, v domě je klimatizace, voda je upravována změkčovačem vody a internetové spojení je zajišťováno místní firmou.
Dům se pronajímá částečně zařízený – kuchyňská linka s vybavením, jídelní stůl se židlemi, gauč, postel, komody, vestavěné skříně, televizní stěna včetně velké TV. Vše moderní a funkční. Celý dům je nesmírně kompaktní s chytrým využitím úložných prostor a splňuje veškeré požadavky na moderní bydlení. Pro majitele hledám spolehlivého dlouhodobého nájemce.
Odběr elektřiny a plynu přihlásím přímo na vás, abyste měli kontrolu nad vlastní spotřebou, vodné a stočné zůstává převedeno na majitele.
Poplatky za vodné a stočné jsou 1.830 Kč měsíčně, za odvoz odpadu 1.100 Kč ročně. Poplatky za elektřinu 4 300 Kč a za plyn 1 500 Kč při provozu rodiny s dětmi a při práci z domova.
Celková vstupní platba se skládá z nájemného na první měsíc ve výši 40 000 Kč + 2 vratné měsíční kauce ve výši 80 000 Kč + provize makléře ve výši 20 000 Kč.
Pokud potřebujete více informací o lokalitě, nebo chcete dům navštívit, abyste zjistili, jak se vám v něm bude žít, ráda se s vámi setkám na prohlídce.
Další parametry
- vodovod
- radiátory
- plynový kondenzační kotel
- plynový kondenzační kotel
- vlak, dálnice, silnice, bus
- internet
- asfaltová
- Ne
- 2
- 1
- plynovod
- veřejná kanalizace
- 71 m2
- 1
- č. 264/2020 Sb.
- 230V
- 56 m2
- 56 m2
- Velmi dobrý
- Cihla
- G - Mimořádně nehospodárná
Na tomto webu zpracováváme cookies potřebné pro jeho fungování a analytiku.