Prodej bytu 3+1 120 m²
Jevany, Bohumil




























Popis
Nabízíme k prodeji atraktivní mezonetový byt 3 + 1 v obci Bohumil okres Praha-východ s velmi dobrou dostupností. Nachází se mezi malebnou obcí Jevany a městem Kostelec nad Černými lesy, které disponuje výbornou občanskou vybaveností jako je škola, školka, supermarkety, sportoviště, lékaři a další služby. Do Prahy na metro Háje se autem dostanete za 35 minut. Tento prostorný byt o užitné ploše 120 m² poskytuje ideální zázemí pro rodiny s dětmi, které hledají blízko Prahy bezpečné a přívětivé prostředí pro život.
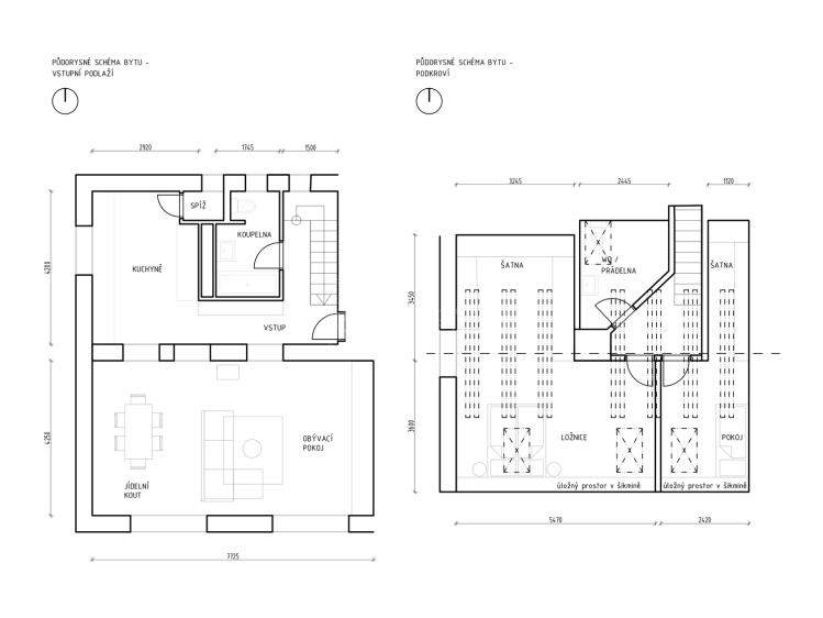
Dům je umístěn v zatepleném dvoupodlažním objektu s novými plastovými okny. Rodiny ocení mezonetové uspořádání bytu, které nabízí dostatek prostoru pro pohodlné bydlení. V přízemí se nachází světlý obývací pokoj s krbovými kamny, které vytvoří příjemnou atmosféru v chladných měsících, dále plně vybavená kuchyň, prostorný jídelní kout i koupelna s wc. V patře bytu se nachází dva samostatné pokoje, které jsou využívány jako dětský pokoj a ložnice. Dále je na patře prostorné wc, které je zároveň používané jako prádelna.
Bezpečnost dětí je jedním z hlavních prvků, které dělají tuto nemovitost atraktivní. Obec je má klidnou atmosféru, což zajišťuje příjemné rodinné prostředí. Před domem je možné parkovat. Dostatek úložného prostoru je zajištěn díky nadstandartnímu sklepu a sklepní kóji o celkové výměře 10,38 m².
Tato nemovitost nabízí nejen skvělé zázemí pro rodinu, ale i množství příležitostí k aktivnímu trávení volného času v malebné přírodě. Nedaleké Voděradské bučiny vybízí k projížďkám na kole či pěší turistice, v létě oceníte možnost koupání na koupališti Vyžlovka.
V případě zájmu o prohlídku nás neváhejte kontaktovat.
Další parametry
- vodovod
- radiátory, krb
- elektrokotel, krbová kamna
- elektrokotel
- silnice, bus
- asfaltová
- 2
- individuální
- veřejná kanalizace
- 2
- mezonet
- č. 264/2020 Sb.
- 230V
- 10 m2
- 2
- Velmi dobrý
- Smíšená
- G - Mimořádně nehospodárná
- osobní