Prodej rodinného domu 121 m², pozemek 895 m²
Luhačovice, Mlýnská
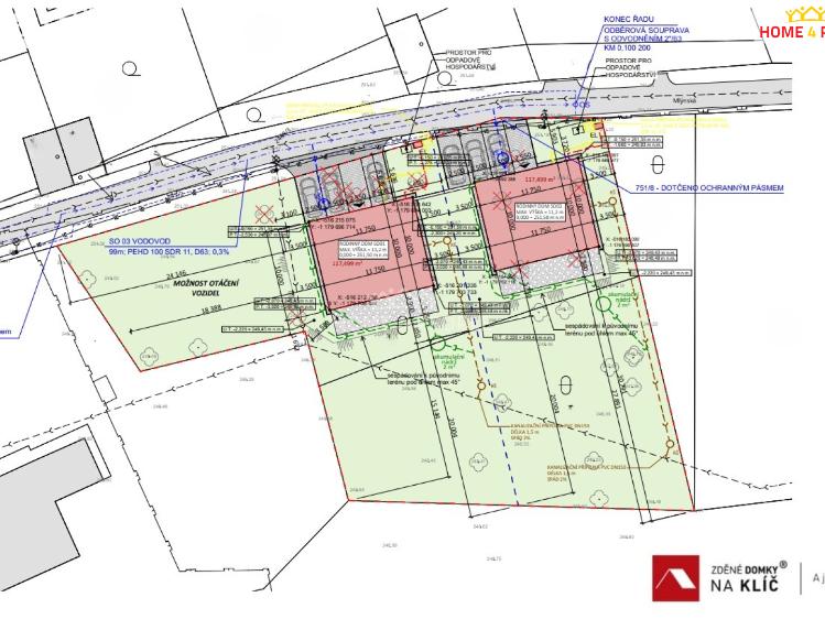
Cena včetně výstavby domu, kolaudace, pozemku, terasy, parkování a zahrady. Dům č.1

















Popis
Zprostředkujeme Vám výstavbu novostavby rodinného domu 4+kk o celkové podlahové výměře 121 m² s terasou, zahradou a parkovacím místem přímo v srdci Luhačovic.
Představujeme vám jedinečnou příležitost vlastnit moderní a flexibilní dvoupodlažní rodinný dům na klíč, situovaný v samém centru prestižních Luhačovic.
Tato luxusní novostavba splňuje ty nejvyšší nároky na komfortní bydlení a zároveň otevírá neomezené možnosti pro investici a podnikání.
Bydlení, kde se potkává luxus s flexibilitou.
Bydlete v pěší dostupnosti centra města, lázeňské kolonády a veškeré občanské vybavenosti. Život v centru Luhačovic nikdy nebyl pohodlnější.
Dům o dispozici 5+kk s promyšleným dvoupodlažním uspořádáním poskytuje dostatek soukromí a prostoru pro velkou rodinu.
Každé podlaží je navrženo pro maximální pohodlí, včetně samostatné koupelny s WC.
Vychutnejte si ranní kávu nebo večerní posezení na prostorné terase s výhledem do privátní zahrady, která tvoří klidnou oázu uprostřed města.
Zajištěno je parkovací stání pro 2 automobily přímo u domu.
Nenechte si ujít tuto exkluzivní šanci vlastnit luxusní rodinnou vilu v jedné z nejvyhledávanějších lázeňských lokalit v Česku.
Ať už hledáte ideální rodinné sídlo, nebo chytrou investiční příležitost, tento dům je připraven splnit vaše sny.
Projekt domu nakreslený a schválený. Stavební povolení vydané, můžeme zahájit stavbu do 14 dnů od podpisu smlouvy.
Pro kompletní specifikace, vizualizace a sjednání osobní schůzky nás neváhejte kontaktovat. Ev. číslo: 32009.
Představujeme vám jedinečnou příležitost vlastnit moderní a flexibilní dvoupodlažní rodinný dům na klíč, situovaný v samém centru prestižních Luhačovic.
Tato luxusní novostavba splňuje ty nejvyšší nároky na komfortní bydlení a zároveň otevírá neomezené možnosti pro investici a podnikání.
Bydlení, kde se potkává luxus s flexibilitou.
Bydlete v pěší dostupnosti centra města, lázeňské kolonády a veškeré občanské vybavenosti. Život v centru Luhačovic nikdy nebyl pohodlnější.
Dům o dispozici 5+kk s promyšleným dvoupodlažním uspořádáním poskytuje dostatek soukromí a prostoru pro velkou rodinu.
Každé podlaží je navrženo pro maximální pohodlí, včetně samostatné koupelny s WC.
Vychutnejte si ranní kávu nebo večerní posezení na prostorné terase s výhledem do privátní zahrady, která tvoří klidnou oázu uprostřed města.
Zajištěno je parkovací stání pro 2 automobily přímo u domu.
Nenechte si ujít tuto exkluzivní šanci vlastnit luxusní rodinnou vilu v jedné z nejvyhledávanějších lázeňských lokalit v Česku.
Ať už hledáte ideální rodinné sídlo, nebo chytrou investiční příležitost, tento dům je připraven splnit vaše sny.
Projekt domu nakreslený a schválený. Stavební povolení vydané, můžeme zahájit stavbu do 14 dnů od podpisu smlouvy.
Pro kompletní specifikace, vizualizace a sjednání osobní schůzky nás neváhejte kontaktovat. Ev. číslo: 32009.
Další parametry
- 1
- 4
- 2
- 49 kWh/m2
- 81 m2
- 895 m2
- Ve výstavbě
- Cihla
- A - Mimořádně úsporná
Na tomto webu zpracováváme cookies potřebné pro jeho fungování a analytiku.