Prodej bytu 5+KK 144 m²
Praha 2, Americká
















































Popis
exkluzivní prodej mezonetové bytové jednotky 5+kk s terasou a výhledem na Prahu - Ulice Americká, Praha 2 – Vinohrady.
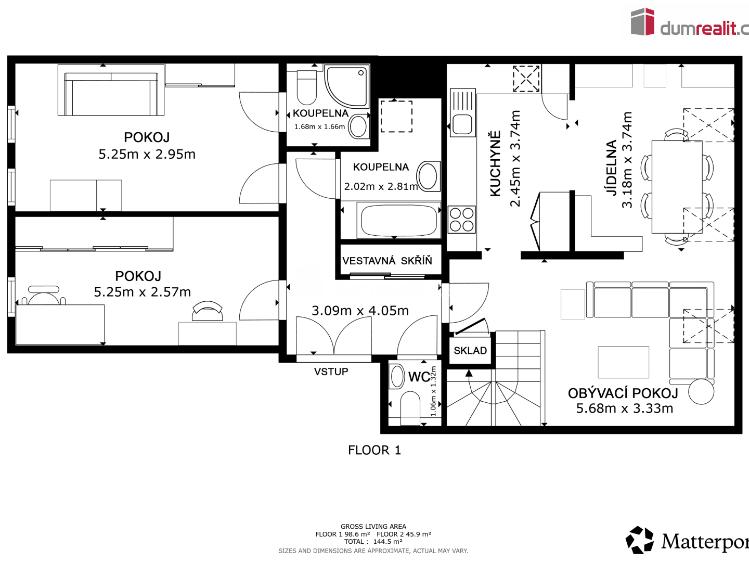
V srdci vyhledávaných Vinohrad, v jedné z nejstylovějších ulic, nabízíme k prodeji prostorný mezonetový byt 5+kk s terasou, který spojuje eleganci, funkčnost a neopakovatelnou atmosféru pražských střech. Byt se nachází v udržovaném cihlovém domě s výtahem a zaujme nejen svou velkorysou dispozicí, ale i dokonalým propojením světla, prostoru a soukromí. Vytápění je zajištěno plynovým kotlem, přičemž teplo lze dodatečně regulovat také prostřednictvím klimatizace s funkcí tepelného čerpadla. Po vstupu do bytu vás přivítá vstupní chodba, která v levé části vede do dvou samostatných pokojů a dvou koupelen – jedna je vybavena vanou, druhá sprchovým koutem a toaletou. Na pravé straně se otevírá světlý obývací prostor s moderní kuchyní a jídelní částí. Kuchyňská linka nabízí dostatek pracovního i úložného místa a přirozeně navazuje na obývací pokoj, který je ideálním místem pro společná setkání či odpočinek. Dominantou obývací části je stylové schodiště vedoucí do druhého podlaží mezonetu. Pod schodištěm je chytře řešený úložný prostor, který nenarušuje estetiku interiéru. Na chodbě je k dispozici samostatná toaleta s umyvadlem. V horní úrovni se nachází komfortní ložnice s vlastní koupelnou (sprchový kout, toaleta) a samostatnou šatnou. Z ložnice je přímý vstup na terasu s panoramatickým výhledem na Prahu – místo, které si zamilujete pro ranní kávu i večerní pohodu. Byt působí mimořádně vzdušně a díky své poloze v podkroví nabízí naprostý klid a soukromí, přesto zůstává jen pár kroků od oblíbených kaváren, restaurací a parků (Havlíčkovy a Riegrovy sady). Byt je v současné době pronajat spolehlivému nájemníkovi, který řádně hradí nájemné, což z nemovitosti činí atraktivní investiční příležitost. Nabízí tak možnost okamžitého výnosu z nájmu, nebo vlastního bydlení v jedné z nejžádanějších pražských lokalit. Nízký fond oprav výhodou. Více informací na dotaz u makléře nabídky. Ev. číslo: 652920.
V srdci vyhledávaných Vinohrad, v jedné z nejstylovějších ulic, nabízíme k prodeji prostorný mezonetový byt 5+kk s terasou, který spojuje eleganci, funkčnost a neopakovatelnou atmosféru pražských střech. Byt se nachází v udržovaném cihlovém domě s výtahem a zaujme nejen svou velkorysou dispozicí, ale i dokonalým propojením světla, prostoru a soukromí. Vytápění je zajištěno plynovým kotlem, přičemž teplo lze dodatečně regulovat také prostřednictvím klimatizace s funkcí tepelného čerpadla. Po vstupu do bytu vás přivítá vstupní chodba, která v levé části vede do dvou samostatných pokojů a dvou koupelen – jedna je vybavena vanou, druhá sprchovým koutem a toaletou. Na pravé straně se otevírá světlý obývací prostor s moderní kuchyní a jídelní částí. Kuchyňská linka nabízí dostatek pracovního i úložného místa a přirozeně navazuje na obývací pokoj, který je ideálním místem pro společná setkání či odpočinek. Dominantou obývací části je stylové schodiště vedoucí do druhého podlaží mezonetu. Pod schodištěm je chytře řešený úložný prostor, který nenarušuje estetiku interiéru. Na chodbě je k dispozici samostatná toaleta s umyvadlem. V horní úrovni se nachází komfortní ložnice s vlastní koupelnou (sprchový kout, toaleta) a samostatnou šatnou. Z ložnice je přímý vstup na terasu s panoramatickým výhledem na Prahu – místo, které si zamilujete pro ranní kávu i večerní pohodu. Byt působí mimořádně vzdušně a díky své poloze v podkroví nabízí naprostý klid a soukromí, přesto zůstává jen pár kroků od oblíbených kaváren, restaurací a parků (Havlíčkovy a Riegrovy sady). Byt je v současné době pronajat spolehlivému nájemníkovi, který řádně hradí nájemné, což z nemovitosti činí atraktivní investiční příležitost. Nabízí tak možnost okamžitého výnosu z nájmu, nebo vlastního bydlení v jedné z nejžádanějších pražských lokalit. Nízký fond oprav výhodou. Více informací na dotaz u makléře nabídky. Ev. číslo: 652920.
Další parametry
- 5
- 5
- Velmi dobrý
- Cihla
- G - Mimořádně nehospodárná
- osobní
Na tomto webu zpracováváme cookies potřebné pro jeho fungování a analytiku.