Pronájem bytu 3+KK 86 m²
Praha, Nademlejnská

















Popis
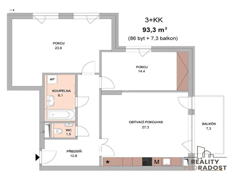
Nabízíme k pronájmu krásný byt o dispozici 3 + kk, který se nachází v 1. patře panelového domu situovaného v klidné části Prahy – v Hloubětíně. Tento byt o celkové ploše 93,3 m² (užitná plocha 86 m²) je ideálním místem pro rodiny s dětmi, které hledají pohodlné a bezpečné bydlení.
Byt je ve velmi dobrým stavu, je vybaven moderním nábytkem, včetně kožené sedací soupravy, obývací stěny, vestavěných skříní a jídelního stolu a pračky, kuchyňský kout je plně vybaven el. spotřebiči (varná deska, el. trouba, myčka, lednice, digestoř, mikrovlnná trouba).
Součástí bytu je prostorný balkón o rozloze 7,3 m², který poskytuje ideální prostor pro relaxaci s rodinou na čerstvém vzduchu. Pro pohodlné parkování je k dispozici podzemní parkovací stání.
Rezidence Kejřův park, kde se byt nachází, se může pochlubit množstvím vybavení pro děti i dospělé. Nachází se zde 2x dětské hřiště, nové multifunkční hřiště a workout zóna. Milovníci sportu ocení beach volejbalový kurt, a pro filmové nadšence je k dispozici kino.
Další nespornou výhodou této lokality je blízkost škol, parků a dalších atrakcí pro děti, což dává rodičům pocit klidu, když vědí, že jejich děti mají přístup ke kvalitnímu vzdělání a možnostem pro volnočasové aktivity.
Byt je k dispozici k nastěhování od 15. ledna 2026. Nájem činí 39 000 Kč měsíčně, poplatky 7.500,- Kč + zálohy na el. energii a vratná kauce je stanovena na 78 000 Kč.
V případě zájmu o prohlídku nás neváhejte kontaktovat.
Další parametry
- vodovod
- centrální dálkové
- 2
- veřejná kanalizace
- 6
- č. 264/2020 Sb.
- 230V
- 1650 m2
- 7 m2
- 2
- Velmi dobrý
- Smíšená
- C - Úsporná
- osobní
- Zobrazit průkaz energetické náročnosti budovy