Prodej bytu 3+KK 62 m²
Nehvizdy, Gabčíkova





















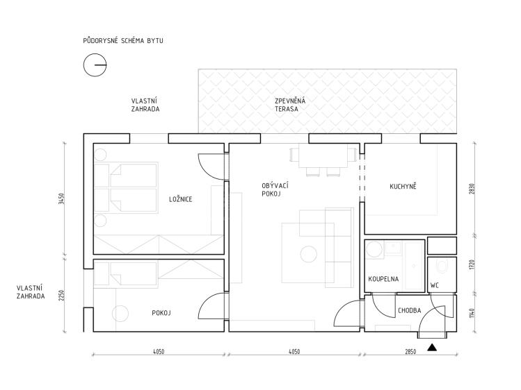
Popis
Nabízíme k prodeji krásný byt o dispozici 3+kk v obci Nehvizdy, na ulici Gabčíkova, který je ideálním místem pro rodiny s dětmi. Tento byt s vlastní zahradou o výměře 269m2 poskytuje ideální zázemí pro venkovní vyžití.
Celková plocha bytu 62 m² poskytuje dostatek prostoru pro každodenní život. Byt je situován v prvním patře třípatrového objektu, což zajišťuje snadný přístup pro rodiny s malými dětmi a kočárky. Vlastní zahrada s nadzemním bazénem a zpevněnou terasou nabízí benefity domu a vybízí k trávení volného času na čerstvém vzduchu. Dětem nabízí vyžití, zatímco vy se můžete věnovat přípravě oběda či třeba zahradničení. Místo je umístěno v klidné části obce, v těsné blízkosti sportovišť, cyklostezky a dětského hřiště.
Dispozice bytu je 3+kk. Ze vstupní chodby je vstup do samostatného wc a koupelny. Prostorný obývací pokoj je propojen s kuchyní, která je situována v opticky odděleném prostoru. Z hlavní obytné místnosti je vstup na zpevněnou terasu, která je součástí Vaší vlastní zahrady. Terasa vybízí ke grilování, rodinným sešlostem a dalším aktivitám, které dostatek prostoru nabízí. V bytě jsou dva neprůchozí pokoje, které slouží jako hlavní ložnice a dětský pokoj.
K bytu náleží vlastní parkovací stání před domem.
Tento byt má vynikající umístění v klidné a přátelské lokalitě, což je ideální pro život s rodinou. Je to místo, kde se děti mohou bezpečně hrát a růst, zatímco rodiče si mohou užívat klid a pohodlí domova.
V případě zájmu o prohlídku nás neváhejte kontaktovat.
Další parametry
- místní zdroj vody
- radiátory
- dlážděná
- 2
- plynovod
- veřejná kanalizace
- 269 m2
- 3
- č. 264/2020 Sb.
- 230V
- 1
- Velmi dobrý
- Panel
- G - Mimořádně nehospodárná
- osobní