Pronájem bytu 3+KK 91 m²
Praha, Spojovací 205/24
Cena je včetně odměny RK, právního servisu a všech administrativních poplatků.























Popis
- Tento popis je v:
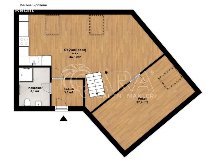
V zastoupení majitele nabízíme k dlouhodobému pronájmu světlý mezonetový byt o dispozici 3+kk a podlahové ploše 91,4m², který se nachází v 5. a 6. patře bytového domu v ulici Spojovací, Praha 9 – Vysočany.
V 5. patře se nachází prostorný obývací pokoj s vybaveným kuchyňským koutem (lednice s mrazákem, elektrická trouba, indukční varná deska, myčka nádobí, digestoř, dřez), ložnice a koupelna se sprchovým koutem, umyvadlem a toaletou. V 6. patře je samostatný pokoj vhodný jako ložnice, pracovna nebo pokoj pro hosty. Byt je vybavený klimatizací, nezařízený, připravený k okamžitému nastěhování.
Výborná dopravní dostupnost – zastávka MHD v pěší vzdálenosti, v okolí veškerá občanská vybavenost: obchody, školy, parky i sportovní vyžití.
Průkaz energetické náročnosti budovy vydaný podle zákona č. 406/200Sb., o hospodaření energii, a vyhlášky č.78/2013Sb. má klasifikační hodnotu C - úsporná.
Měsíční nájemné činí 29.500,- Kč + 3.000,- Kč měsíční záloha na služby (vodné a stočné, teplo, teplá voda, úklid, odvoz odpadu, elektřina společných prostor, výtah).
Při podpisu nájemní smlouvy je zapotřebí složit kauci majiteli ve výši dvou měsíčních nájmů 59.000,- Kč a první nájemné 29.500,-Kč + 3.000,-Kč služby. Celkem tedy 91.500,-Kč. Elektřina bude převedena na nájemce.
Byt je volný ihned. Provizi realitní kanceláři nájemce neplatí.
Smlouva bude uzavřena na 1 rok s možností prodloužení po vzájemné dohodě.
V 5. patře se nachází prostorný obývací pokoj s vybaveným kuchyňským koutem (lednice s mrazákem, elektrická trouba, indukční varná deska, myčka nádobí, digestoř, dřez), ložnice a koupelna se sprchovým koutem, umyvadlem a toaletou. V 6. patře je samostatný pokoj vhodný jako ložnice, pracovna nebo pokoj pro hosty. Byt je vybavený klimatizací, nezařízený, připravený k okamžitému nastěhování.
Výborná dopravní dostupnost – zastávka MHD v pěší vzdálenosti, v okolí veškerá občanská vybavenost: obchody, školy, parky i sportovní vyžití.
Průkaz energetické náročnosti budovy vydaný podle zákona č. 406/200Sb., o hospodaření energii, a vyhlášky č.78/2013Sb. má klasifikační hodnotu C - úsporná.
Měsíční nájemné činí 29.500,- Kč + 3.000,- Kč měsíční záloha na služby (vodné a stočné, teplo, teplá voda, úklid, odvoz odpadu, elektřina společných prostor, výtah).
Při podpisu nájemní smlouvy je zapotřebí složit kauci majiteli ve výši dvou měsíčních nájmů 59.000,- Kč a první nájemné 29.500,-Kč + 3.000,-Kč služby. Celkem tedy 91.500,-Kč. Elektřina bude převedena na nájemce.
Byt je volný ihned. Provizi realitní kanceláři nájemce neplatí.
Smlouva bude uzavřena na 1 rok s možností prodloužení po vzájemné dohodě.
Další parametry
- vodovod
- ústřední dálkové
- vlak, silnice, mhd, bus
- dlážděná, asfaltová
- plynovod
- veřejná kanalizace
- 5
- mezonet
- č. 78/2013 Sb.
- 230V
- 5
- Velmi dobrý
- Smíšená
- C - Úsporná
- osobní
- Zobrazit průkaz energetické náročnosti budovy
Na tomto webu zpracováváme cookies potřebné pro jeho fungování a analytiku.