Prodej výrobní haly 177 m²
Bzová
cena včetně provize a právních služeb



































Popis
Hledáte prostor, kde můžete spojit podnikání s vlastním bydlením nebo investicí? V obci Bzová, jen 9 km od Hořovic a 10 minut od nájezdu na dálnici D5, na vás čeká jedinečný areál se třemi stavbami na jednom pozemku o celkové výměře 942 m².
1. KOMERČNÍ PROSTORY:
Dílna (užitná plocha 114 m²)
– postavená v roce 1994, zkolaudovaná pro autoservis/pneuservis.
Výška stropu 5,6 metrů, montážní jáma, příruční sklad, kancelář a sociální zázemí umístěné v patře.
Připraveno na instalaci jeřábu o nosnosti až 7 tun. Vlastní elektroměr, napojení na vodovod a kanalizaci.
Mansardová střecha, krytina živičný šindel.
Na podlahách keramická dlažba a cementový potěr.
Rozvody tlakového vzduchu.
Vytápění - původní kotel na tuhá paliva, ohřev vody elektrický boiler.
Přístup z obecní komunikace, výborné parkování na vlastním pozemku
Garáž (užitná plocha 63 m²)
– z roku 1992, rovněž kolaudovaná pro opravárenskou činnost.
Betonová podlaha, kovová vrata, velmi dobrý technický stav.
Povrch podlahy z betonové mazaniny.
2. RODINNÝ DŮM:
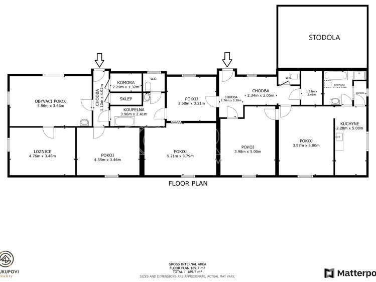
Původní dům z roku 1919 o užitné ploše přes 230 m² + půda vhodná pro vestavbu (přes 100 m2).
Dva samostatné vchody – dříve užíván jako dvě bytové jednotky.
Určený ke kompletní rekonstrukci – ideální pro vlastní bydlení, zaměstnanecké zázemí nebo další komerční využití.
Stodola, umístěná mezi domem a komerčním prostorem, má nový krov a plechovou krytinu.
K dispozici je kamenný sklep.
Dům je napojen na vodovod a kanalizaci, má vlastní elektroměr.
AREÁL JE IDEÁLNÍ PRO:
Autoservis, pneuservis, sklad, lehkou výrobu, kombinaci podnikání a bydlení nebo jako investice s výnosovým potenciálem.
O lokalitě:
Bzová je klidná obec v podhůří Křivoklátska, obklopená přírodou a zároveň s výbornou dostupností. Leží mezi historickými hrady Točník a Žebrák, s dobrou občanskou vybaveností – obecní úřad, pošta, knihovna, kulturní dům, sportoviště, potraviny i restaurace. Ostatní služby jsou v blízkém Žebráku nebo Hořovicích.
Díky napojení na dálnici D5 je Praha dosažitelná do 40 minut.
1. KOMERČNÍ PROSTORY:
Dílna (užitná plocha 114 m²)
– postavená v roce 1994, zkolaudovaná pro autoservis/pneuservis.
Výška stropu 5,6 metrů, montážní jáma, příruční sklad, kancelář a sociální zázemí umístěné v patře.
Připraveno na instalaci jeřábu o nosnosti až 7 tun. Vlastní elektroměr, napojení na vodovod a kanalizaci.
Mansardová střecha, krytina živičný šindel.
Na podlahách keramická dlažba a cementový potěr.
Rozvody tlakového vzduchu.
Vytápění - původní kotel na tuhá paliva, ohřev vody elektrický boiler.
Přístup z obecní komunikace, výborné parkování na vlastním pozemku
Garáž (užitná plocha 63 m²)
– z roku 1992, rovněž kolaudovaná pro opravárenskou činnost.
Betonová podlaha, kovová vrata, velmi dobrý technický stav.
Povrch podlahy z betonové mazaniny.
2. RODINNÝ DŮM:
Původní dům z roku 1919 o užitné ploše přes 230 m² + půda vhodná pro vestavbu (přes 100 m2).
Dva samostatné vchody – dříve užíván jako dvě bytové jednotky.
Určený ke kompletní rekonstrukci – ideální pro vlastní bydlení, zaměstnanecké zázemí nebo další komerční využití.
Stodola, umístěná mezi domem a komerčním prostorem, má nový krov a plechovou krytinu.
K dispozici je kamenný sklep.
Dům je napojen na vodovod a kanalizaci, má vlastní elektroměr.
AREÁL JE IDEÁLNÍ PRO:
Autoservis, pneuservis, sklad, lehkou výrobu, kombinaci podnikání a bydlení nebo jako investice s výnosovým potenciálem.
O lokalitě:
Bzová je klidná obec v podhůří Křivoklátska, obklopená přírodou a zároveň s výbornou dostupností. Leží mezi historickými hrady Točník a Žebrák, s dobrou občanskou vybaveností – obecní úřad, pošta, knihovna, kulturní dům, sportoviště, potraviny i restaurace. Ostatní služby jsou v blízkém Žebráku nebo Hořovicích.
Díky napojení na dálnici D5 je Praha dosažitelná do 40 minut.
Další parametry
- vodovod
- radiátory
- bojler – elektro
- silnice, bus
- 3 fáze
- asfaltová
- Ne
- 177 m2
- 1
- veřejná kanalizace
- 2
- 2
- č. 264/2020 Sb.
- 230V
- Velmi dobrý
- Cihla
- G - Mimořádně nehospodárná
Na tomto webu zpracováváme cookies potřebné pro jeho fungování a analytiku.