Prodej rodinného domu 104 m², pozemek 208 m²

Hrádek 4 990 000 za nemovitost
47 981 Kč/m²
ID inzerátu: LR-76068
SklepEnergie A
Reklama

Tady může být vaše reklama - kontaktujte nás

Popis

Nabízíme na prodej podsklepenou původní šumavskou chalupu/dům (5+kk; podl. pl: 104 m2) v započaté zevrubné rekonstrukci (k dokončení pouze pohledové prvky) se zahradou 272 m2, stojící na klidném okraji (poslední dům) přímo pod lesem s výhledem v malebné šumavské vesničce Odolenov, ležící v nad-inverzní výšce 680 m.n.m., na západní straně hory Svatobor (845 m.n.m.) s rozhlednou a restaurací, nedaleko města Sušice 5 km.
Započatá zevrubná rekonstrukce, přičemž je dokončený „obal“ a „střeva“ domu, jmenovitě: nová moderní dispozice 5+kk, střecha vč. klempířských prvků a částečně výměna krovů, vyvložkovaný nový komín, plastová okna 3-skla, strop vč. přiznaných pohledových trámů, podlahové topení v 1.NP a radiátory v podkroví vč. rozvodů v mědi, elektroinstalace vč. jističů, rozvody vody a odpadu v plastu, srovnané stěny vč. omítek, štuku a bílé výmalby, francouzské okno na budoucí terasu, srovnaná fasáda; k dokončení jsou pohledové prvky (podlahové krytiny; podhledy vč. izolace, která je v domě; příčky v podkroví, vnitřní dveře, sanita v koupelnách, osvětlení, kuch. linka...), schodiště, zdroj topení, jímka a terénní úpravy.
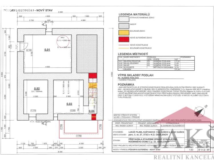
Popis: suterén (37,24 m2): 2x sklep přístupný zvenčí a sklep zevnitř; přízemí (52,5 m2): zádveří, chodba (prostup do sklepa a do podkroví); koupelna a oddělené WC, obývací pokoj a obytná kuchyně s jídelnou; podkroví (51,8 m2): otevřený prostor (v projektu 3x ložnice a koupelna s WC).
Celková plocha vč. sklepa: 141,54 m2;
Podlahová plocha: 104,3 m2;
Pozemek celkem: 480 m2;
Zastavěná plocha a nádvoří: 208 m2;
Zahrada: 272 m2; Mírně svažitá zahrada s plodícími stromy (jabloně, švestka, ořech...) a keři, které zajišťují dostatek soukromí.
Voda: vlastní vrtaná studna (čerpadlo);
Odpad: nutno řešit jímkou na vyvážení anebo vl. ČOV.
Vytápění: podlahové v 1.NP, radiátory v podkroví (v projektu řešeno primárně TČ a krbovými kamny s akumulační nádrží; lze změnit či doplnit o např. FVE).
El.: 220/380 V;
Skvělá příležitost koupě šumavské chalupy v rekonstrukci, kde si finální podobu interiéru a zařizovacích předmětu utvoříte podle vlastních představ a potřeb v této exkluzivní lokalitě, kde se téměř „neprodává“, v šumavské osadě Odolenov, kde končí udržovaná cesta a „lišky dávají dobrou noc“. Absolutně tichá osada bez rušivých elementů ležící na mystické (bývalé keltské hradiště) hoře Svatobor.
Nutno vidět exkluzivní lokalitu a stav dokončení domu.

Další parametry

  • podlahové vytápění, radiátory
  • 1
  • 3 fáze
  • asfaltová
  • Ne
  • 4
  • 4
  • jímka

Třída energetické náročnosti

A
B
C
D
E
F
G
Třída energetické náročnosti A · 23 kWh/m²·rok
Reklama

Tady může být vaše reklama - kontaktujte nás