Pronájem bytu 3+KK 66 m²
Beroun, Na Parkáně 1493
Kč 5 500,- zálohy za služby + Kč 900,- elektřina a plyn se převádí na nájemce



















Popis
K PRONÁJMU - PROSTORNÝ BYT 3+KK V SRDCI HISTORICKÉHO CENTRA BEROUNA | 66 m² |KLIDNÁ LOKALITA U HUSOVA NÁMĚSTÍ
Hledáte příjemné a pohodlné bydlení v samotném centru Berouna, ale zároveň v klidné ulici? Tento prostorný byt 3+kk o velikosti 66 m² se nachází pár kroků od Husova náměstí a nabízí ideální kombinaci skvělé polohy, velkého prostoru a maximálního pohodlí.
✅ LOKALITA, KTEROU SI ZAMILUJETE
Byt leží v historické části města, jen pár metrů od Pražské brány. V okolí najdete vše, co ke kvalitnímu životu potřebujete — obchody, kavárny, restaurace, školy, lékárny, poštu, kulturní centrum, tzn. kompletní občanskou vybavenost.
Pro volnočasové aktivity je ideální okolí řeky Berounky, parky a cyklostezky, vše v docházkové vzdálenosti.
Skvělé dopravní spojení: vlak, autobus i rychlý nájezd na D5.
✅ DISPOZICE A VYBAVENÍ
Byt se nachází ve 2. podlaží bytového domu a je částečně zařízený.
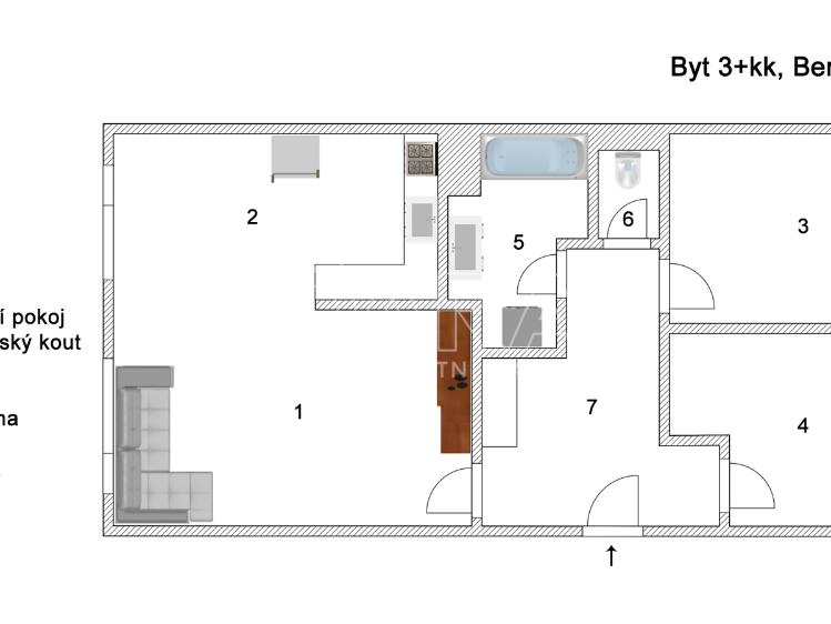
Dominantou je prostorný, slunný obývací pokoj s kuchyňským koutem, orientovaný na západ do klidného parku. Moderní kuchyň je plně vybavena vestavěnými spotřebiči (myčka, el. trouba s plyn. sporákem, mikrovlnná trouba, digestoř, lednice s mrazákem).
Obě ložnice jsou orientované na východ – ideální pro klidný spánek i svěží začátek dne.
Dále je k dispozici prostorná vstupní chodba s vestavěnými skříněmi, moderní koupelna s vanou a samostatné WC.
V bytě se nachází také dvě samostatné šatní skříně.
Dle domluvy je možné vyžívat také komoru (na chodbě) a sklepní kóji v přízemí domu, kde se nachází i společná kolárna.
✅ NÁKLADY NA BYDLENÍ
•. Nájemné: 18 500 Kč / měsíc
•. Poplatky: 5 500 Kč / měsíc
•. Elektřina a plyn (cca 900 Kč) se převádí na nájemce
•. Kauce: 37 000 Kč
•. Bez provize RK!
✅ Volný k nastěhování od 1/12
Neváhejte mě kontaktovat a domluvte si termín prohlídky (od 18/11) – tento krásný byt může být vaším novým domovem!
Pronajímatel si vyhrazuje právo vybrat nájemce dle svých preferencí.
Zájemcům o pronájem bude na přání majitelky zaslán stručný dotazník k vyplnění základních informací.
Další parametry
- radiátory
- ústřední dálkové
- 1
- vlak, dálnice, silnice, mhd, bus
- internet
- asfaltová
- 1
- plynovod
- veřejná kanalizace
- 4
- č. 264/2020 Sb.
- 2 m2
- 227 m2
- 2
- Po rekonstrukci
- Panel
- G - Mimořádně nehospodárná
- osobní
- Ano