Prodej na klíč 143 m², pozemek 509 m²
Tršice
včetně právního servisu, provize RK, cena v RK
- Tento popis je v:


























Popis
Nabízíme vám novostavbu rodinného domu v obci Tršice (katastrální území Přestavlky) o dispozici 5+kk se zahradou a celkovou výměrou pozemku 509 m².
Dvoupodlažní dům s užitnou plochou 143,26 m² je situován na rovinatém pozemku v klidné lokalitě s výbornou dostupností do Olomouce.
Dům je prodáván ve stavu „na klíč“.
Součástí výstavby je tepelné čerpadlo, které zajišťuje nízké provozní náklady, okna s trojskly a použití vysoce kvalitních materiálů pro dlouhou životnost a nadčasový design.
Vnitřní uspořádání domu bylo navrženo tak, aby poskytovalo maximální komfort, dostatek prostoru a světla pro moderní rodinné bydlení.
Dispozice:
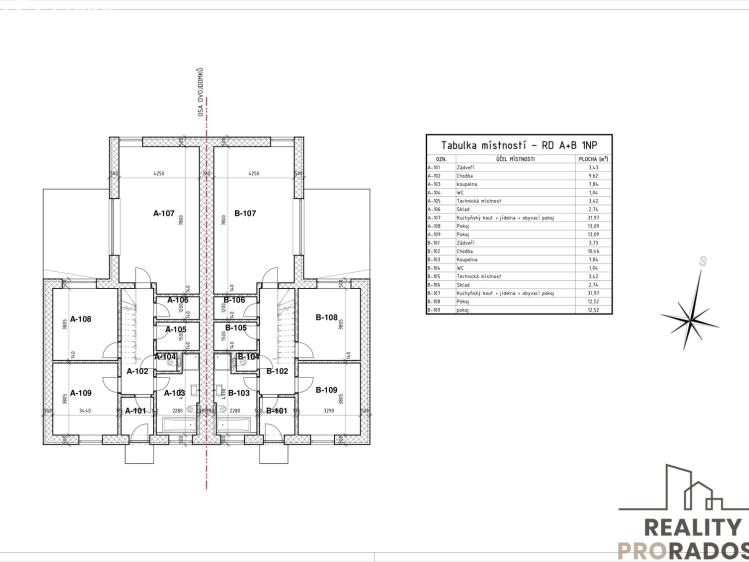
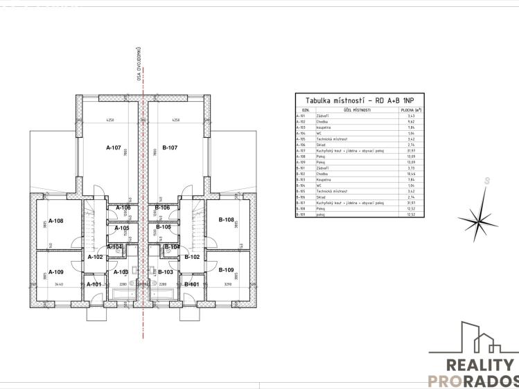
1. NP:
-vstupní chodba,
-dvě ložnice,
-prostorný obývací pokoj s kuchyní a jídelním koutem se vstupem na terasu,
-koupelna s toaletou,
-samostatná toaleta,
-technická místnost a spíž.
2. NP:
-dvě ložnice se šatnami,
-koupelna s toaletou.
Další informace:
-plánované předání nemovitosti: květen 2026,
-klidná lokalita s příjemnou atmosférou venkova a dobrou dostupností do města,
-možnost úprav standardů dle přání klienta.
Pro více informací o standardech výstavby nebo pro sjednání osobní prohlídky kontaktujte makléřku nabídky.
Těšíme se na vás!
Dvoupodlažní dům s užitnou plochou 143,26 m² je situován na rovinatém pozemku v klidné lokalitě s výbornou dostupností do Olomouce.
Dům je prodáván ve stavu „na klíč“.
Součástí výstavby je tepelné čerpadlo, které zajišťuje nízké provozní náklady, okna s trojskly a použití vysoce kvalitních materiálů pro dlouhou životnost a nadčasový design.
Vnitřní uspořádání domu bylo navrženo tak, aby poskytovalo maximální komfort, dostatek prostoru a světla pro moderní rodinné bydlení.
Dispozice:
1. NP:
-vstupní chodba,
-dvě ložnice,
-prostorný obývací pokoj s kuchyní a jídelním koutem se vstupem na terasu,
-koupelna s toaletou,
-samostatná toaleta,
-technická místnost a spíž.
2. NP:
-dvě ložnice se šatnami,
-koupelna s toaletou.
Další informace:
-plánované předání nemovitosti: květen 2026,
-klidná lokalita s příjemnou atmosférou venkova a dobrou dostupností do města,
-možnost úprav standardů dle přání klienta.
Pro více informací o standardech výstavby nebo pro sjednání osobní prohlídky kontaktujte makléřku nabídky.
Těšíme se na vás!
Další parametry
- vodovod
- podlahové vytápění
- tepelné čerpadlo
- tepelné čerpadlo
- vzduchem
- silnice, mhd
- asfaltová, zpevněná, štěrková
- Ne
- 2
- 1
- jímka
- 2
- č. 264/2020 Sb.
- 230V
- 509 m2
- Novostavba
- Cihla
- G - Mimořádně nehospodárná
Na tomto webu zpracováváme cookies potřebné pro jeho fungování a analytiku.