Prodej rodinného domu 213 m², pozemek 792 m²
Chvalovice
















Popis
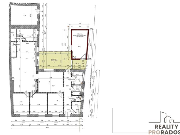
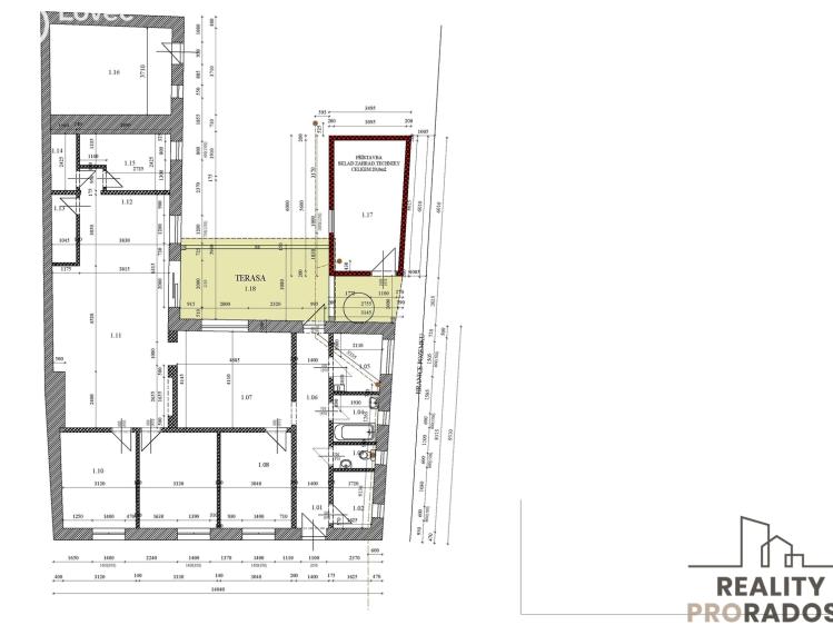
V zastoupení majitele Vám nabízím RD těsně před dokončením výstavby. Jedná se o prostorný rodinný dům, kde si každý účastník rodiny najde to své. Na nemovitosti chybí dokončovací práce jako jsou, kompletace elektřiny, podlahová krytina, obložky a dveře. Dům v této fází výstavby umožní novému majiteli aby si zvolil interiér dle vlastních představ, tak aby splňoval jeho požadavky na útulný domov. Nemovitost je vytápěna tepelným čerpadlem do podlahy. Na zahradě je příprava na letní kuchyni nebo dílnu, ale dominantou je vyhřívaný bazén se slanou vodou. Samozřejmostí jsou další přístavba na sklad a příslušenství k bazénu. Zahrada je rovinatá o dostatečné rozloze k jakýmkoliv účelům. Před domem je plocha na parkovací stání pro dvě auta. Upozorňujeme, že byly doplněny fotografie o vizualizaci. Energetická třída „G“ je uvedena dočasně, vzhledem k novele zákona č.406/2000Sb.o hospodaření s energií, po dodání podkladů bude uvedena skutečná energetická třída této nemovitosti. V případě zájmu mne neváhejte kontaktovat, rádi zajistíme i financování této nemovitosti.
Další parametry
- Ne
- 1
- 1
- 450 m2
- č. 264/2020 Sb.
- 792 m2
- Ve výstavbě
- Cihla
- G - Mimořádně nehospodárná
Na tomto webu zpracováváme cookies potřebné pro jeho fungování a analytiku.