Pronájem restaurace 92 m², pozemek 625 m²
Brandýs nad Labem-Stará Boleslav, Masarykovo náměstí 98/4
















Popis
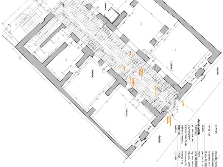
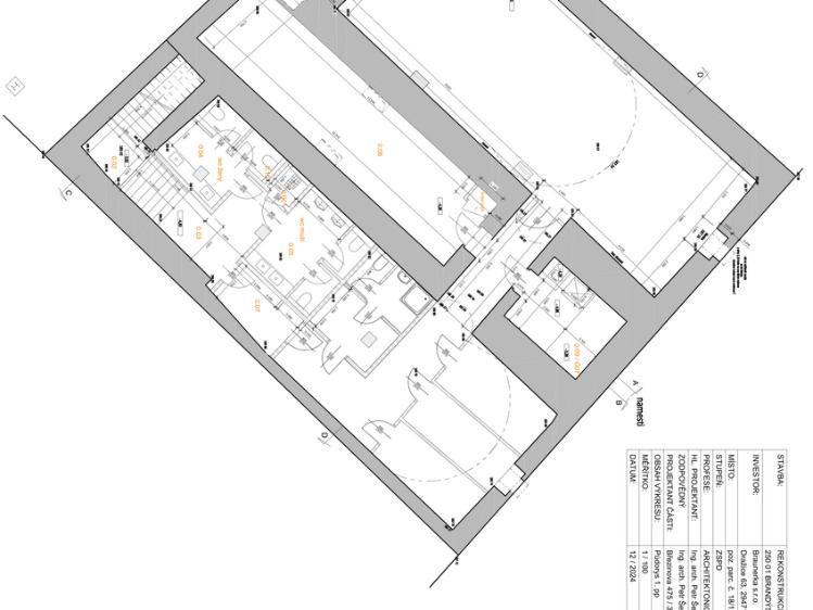
V přímém zastoupení majitele nabízím částečně zařízený gastro prostor vhodný pro menší restauraci, bistro nebo kavárnu, který je součástí nového gastro konceptu Průjezd, navrženého jako zázemí pro tři samostatné gastro provozy.
Technické vybavení a základní technologie prostoru:
- digestoře, funkční vzduchotechnika, přípojky vody, plynu a elektroinstalace
- úsporný provoz – dům využívá řízené nucené větrání s rekuperací tepla
- centrální vytápění: moderní tepelné čerpadlo + plynový kotel jako bivalentní zdroj
- teplovodní podlahové vytápění v provozu i v suterénu
- vlastní úklidové zázemí, toaleta pro personál, malá kancelář
- samostatný sklad s elektřinou v suterénu
- zásobování z náměstí i ze dvora, parkování k dispozici
- možnost posezení hostů v průjezdu a na dvoře pod lípou
Sdílené prostory a zázemí všech gastro provozů: průjezd, dvůr, chodby v suterénu a klientské toalety.
Sdílené technologie: lapák tuků (lapol), nákladní výtah a další prvky gastro provozu.
Úklid společných prostor bude řešen dle dohody nájemníků nebo prostřednictvím pronajímatele.
Vážnému zájemci majitel zajistí podporu při dokončení prostoru.
Náklady: 38 000 Kč – měsíční nájemné
Náklady na provoz budou hrazeny za vodné a stočné (teplou i studenou vodu), spotřebu elektřiny a plynu a náklady na vytápění. Tyto položky se budou měsíčně přefakturovávat dle skutečné spotřeby. Součástí provozních nákladů nebudou poplatky za internet, svoz odpadů ani úklid v domě. Více informací Vám ráda poskytnu během osobní schůzky.
Těším se na setkání se zájemcem, který má chuť přeměnit svou vizi v realitu.
Technické vybavení a základní technologie prostoru:
- digestoře, funkční vzduchotechnika, přípojky vody, plynu a elektroinstalace
- úsporný provoz – dům využívá řízené nucené větrání s rekuperací tepla
- centrální vytápění: moderní tepelné čerpadlo + plynový kotel jako bivalentní zdroj
- teplovodní podlahové vytápění v provozu i v suterénu
- vlastní úklidové zázemí, toaleta pro personál, malá kancelář
- samostatný sklad s elektřinou v suterénu
- zásobování z náměstí i ze dvora, parkování k dispozici
- možnost posezení hostů v průjezdu a na dvoře pod lípou
Sdílené prostory a zázemí všech gastro provozů: průjezd, dvůr, chodby v suterénu a klientské toalety.
Sdílené technologie: lapák tuků (lapol), nákladní výtah a další prvky gastro provozu.
Úklid společných prostor bude řešen dle dohody nájemníků nebo prostřednictvím pronajímatele.
Vážnému zájemci majitel zajistí podporu při dokončení prostoru.
Náklady: 38 000 Kč – měsíční nájemné
Náklady na provoz budou hrazeny za vodné a stočné (teplou i studenou vodu), spotřebu elektřiny a plynu a náklady na vytápění. Tyto položky se budou měsíčně přefakturovávat dle skutečné spotřeby. Součástí provozních nákladů nebudou poplatky za internet, svoz odpadů ani úklid v domě. Více informací Vám ráda poskytnu během osobní schůzky.
Těším se na setkání se zájemcem, který má chuť přeměnit svou vizi v realitu.
Další parametry
- vodovod
- podlahové vytápění
- plynový kondenzační kotel, tepelné čerpadlo
- plynový kondenzační kotel, tepelné čerpadlo
- vlak, dálnice, silnice, mhd, bus
- kabelové rozvody
- 3 fáze
- dlážděná, asfaltová
- Ne
- plynovod
- veřejná kanalizace
- 221 m2
- 5
- 80 kWh/m2
- č. 264/2020 Sb.
- 404 m2
- 625 m2
- Po rekonstrukci
- Smíšená
- B - Velmi úsporná
- Ano
Na tomto webu zpracováváme cookies potřebné pro jeho fungování a analytiku.