Prodej rodinného domu 377 m², pozemek 577 m²
Radnice, Pivovarská 64
cena včetně provize a právních služeb











































Popis
V historickém jádru města Radnice, přímo na náměstí Kašpara Šternberka, nabízíme výjimečný měšťanský dům s kombinací komerčního a rezidenčního potenciálu.
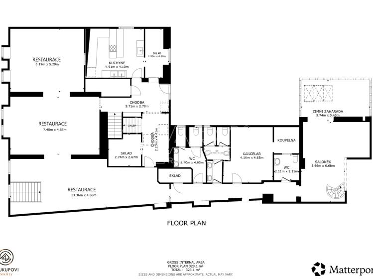
Celková užitná plocha: cca 377 m²
1.NP 290 m² + podkrovní byt 87 m² a další půdní prostor
K dispozici je dále sklep, garáž a zahrádka.
Objekt není památkově chráněn – umožňuje flexibilní úpravy dle investičního záměru.
Možné budoucí využití nemovitosti:
- Úprava na jiný typ komerčního provozu – kanceláře, ateliér, showroom, obchod.
- Rodinné bydlení či investice až se třemi samostatnými bytovými jednotkami v rodinném domě
- Více jednotek v bytovém domě
- Kombinace podnikání a soukromého bydlení
- Pokračování v provozu stylové restaurace s kavárnou
Proč je tato nemovitost zajímavá pro investora?
Kombinace komerční a rezidenční funkce
Možnost rozdělení na více jednotek
Historická budova bez památkové ochrany
Atraktivní poloha na náměstí
Hotové technické zázemí
Nízká konkurence podobných objektů v lokalitě
Co objekt nabízí v současné podobě?
- Přízemí - celková užitná plocha 1.NP se zázemím a zimní zahradou: 290 m²
- Podkroví - prostorná bytová jednotka 3+kk k finálnímu dokončení (užitná plocha 87 m²)
- Stylovou restauraci s kavárenským prostorem a salonkem
- Kapacitu až 80 míst, plně vybavenou kuchyni, technické zázemí
- Kompletní rekonstrukce objektu pro účely restaurace byla kolaudována v roce 2010.
- Členitý a prostorný sklep
- Součástí je také garáž a zahrádka
Nemovitost je bez nájemců a bez právního zatížení, což umožňuje okamžité zahájení úprav či změny využití dle investičního záměru.
Dům č. 64 je usazený v historickém jádru města, původ domu sahá do 1.poloviny 19.století – a každý jeho kout dýchá atmosférou literárních večerů, koncertů i výtvarných výstav. Z exteriéru se otevírá krásný výhled na náměstí, který láká k posezení nebo ranní kávě.
Parkování je možné přímo před objektem, na prostorném veřejném parkovišti a dále ve vlastní garáži a před ní.
V roce 2012 získal projekt rekonstrukce restaurace La Boema Mimořádnou cenu veřejnosti v soutěži "Stavba roku Plzeňského kraje". Majitel při rekonstrukci nešetřil a použil nejkvalitnější materiály a zakomponoval nádherné prvky jako např. vitráž nad vstupem, kamenné schody do objektu, krásná kachlová kamna, repliky špaletových oken a další.
Vytápění přízemí zajišťuje plynový kondenzační kotel a dominantní kachlová kamna, v salonku je navíc podlahové vytápění. V patře je druhý plynový kotel.
Dům je napojen na elektřinu, plyn, vodovod a obecní kanalizaci.
Lokalita:
Radnice jsou klidné město v Plzeňském kraji s přibližně 1 800 obyvateli a výbornou dostupností do Rokycan, Plzně i Prahy (dálnice D5). Veškerá občanská vybavenost je v místě. V Plzni jste za pouhých 25 minut.
Proč právě tento krásný měšťanský dům?
Protože je to prostor s příběhem, duší a výjimečnou atmosférou. Investice, která nabízí silný investiční potenciál do budoucna.
Zavolejte si o bližší informace nebo rovnou domluvte prohlídku.
Těším se na vás právě tady, v Radnicích.
Celková užitná plocha: cca 377 m²
1.NP 290 m² + podkrovní byt 87 m² a další půdní prostor
K dispozici je dále sklep, garáž a zahrádka.
Objekt není památkově chráněn – umožňuje flexibilní úpravy dle investičního záměru.
Možné budoucí využití nemovitosti:
- Úprava na jiný typ komerčního provozu – kanceláře, ateliér, showroom, obchod.
- Rodinné bydlení či investice až se třemi samostatnými bytovými jednotkami v rodinném domě
- Více jednotek v bytovém domě
- Kombinace podnikání a soukromého bydlení
- Pokračování v provozu stylové restaurace s kavárnou
Proč je tato nemovitost zajímavá pro investora?
Kombinace komerční a rezidenční funkce
Možnost rozdělení na více jednotek
Historická budova bez památkové ochrany
Atraktivní poloha na náměstí
Hotové technické zázemí
Nízká konkurence podobných objektů v lokalitě
Co objekt nabízí v současné podobě?
- Přízemí - celková užitná plocha 1.NP se zázemím a zimní zahradou: 290 m²
- Podkroví - prostorná bytová jednotka 3+kk k finálnímu dokončení (užitná plocha 87 m²)
- Stylovou restauraci s kavárenským prostorem a salonkem
- Kapacitu až 80 míst, plně vybavenou kuchyni, technické zázemí
- Kompletní rekonstrukce objektu pro účely restaurace byla kolaudována v roce 2010.
- Členitý a prostorný sklep
- Součástí je také garáž a zahrádka
Nemovitost je bez nájemců a bez právního zatížení, což umožňuje okamžité zahájení úprav či změny využití dle investičního záměru.
Dům č. 64 je usazený v historickém jádru města, původ domu sahá do 1.poloviny 19.století – a každý jeho kout dýchá atmosférou literárních večerů, koncertů i výtvarných výstav. Z exteriéru se otevírá krásný výhled na náměstí, který láká k posezení nebo ranní kávě.
Parkování je možné přímo před objektem, na prostorném veřejném parkovišti a dále ve vlastní garáži a před ní.
V roce 2012 získal projekt rekonstrukce restaurace La Boema Mimořádnou cenu veřejnosti v soutěži "Stavba roku Plzeňského kraje". Majitel při rekonstrukci nešetřil a použil nejkvalitnější materiály a zakomponoval nádherné prvky jako např. vitráž nad vstupem, kamenné schody do objektu, krásná kachlová kamna, repliky špaletových oken a další.
Vytápění přízemí zajišťuje plynový kondenzační kotel a dominantní kachlová kamna, v salonku je navíc podlahové vytápění. V patře je druhý plynový kotel.
Dům je napojen na elektřinu, plyn, vodovod a obecní kanalizaci.
Lokalita:
Radnice jsou klidné město v Plzeňském kraji s přibližně 1 800 obyvateli a výbornou dostupností do Rokycan, Plzně i Prahy (dálnice D5). Veškerá občanská vybavenost je v místě. V Plzni jste za pouhých 25 minut.
Proč právě tento krásný měšťanský dům?
Protože je to prostor s příběhem, duší a výjimečnou atmosférou. Investice, která nabízí silný investiční potenciál do budoucna.
Zavolejte si o bližší informace nebo rovnou domluvte prohlídku.
Těším se na vás právě tady, v Radnicích.
Další parametry
- vodovod
- radiátory
- plynový kondenzační kotel, krbová kamna
- plynový kondenzační kotel
- 1
- vlak, silnice, mhd, bus
- internet, kabelové rozvody
- 3 fáze
- asfaltová
- Ne
- 1
- 3
- plynovod
- veřejná kanalizace
- 1
- 2
- 292 kWh/m2
- č. 264/2020 Sb.
- 230V
- 80 m2
- 577 m2
- Velmi dobrý
- Cihla
- D - Méně úsporná
Na tomto webu zpracováváme cookies potřebné pro jeho fungování a analytiku.