Продажа семейного дома 180 m², участок 549 m²
Vážany

1 950 000 за недвижимость

Контакт:Tomáš Hlaváček E-mail:Telefon:739 308 075
Нажимая, вы соглашаетесь с нашими

Описание

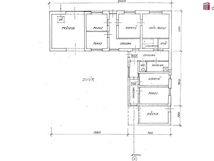
Nabízíme ve výhradním zastoupení majitele rodinný dům 3+1 s možností rozšíření o další dva pokoje v obci Vážany u Uherského Hradiště.
Jedná se o jednopodlažní rohový dům ve tvaru písmene L, situovaný v řadové zástavbě. Dům je napojen na kanalizaci, elektřinu a obecní vodovod. Na pozemku se navíc nachází vlastní studna.
Vjezd do dvoru je řešen přes průjezd, který lze využít také k parkování. Za domem se nacházejí hospodářské stavby včetně sklepa, které poskytují dostatek prostoru pro skladování nebo dílnu.
Celková plocha pozemku činí 549 m².
V případě zájmu Vás rád provedu touto nemovitostí a pomohu Vám také se zajištěním financování.
Doporučujeme osobní prohlídku. Ev. číslo: 652985.

Другие параметры

  • 2
  • 1
  • 200 m2
  • 549 m2
  • Перед реконструкцией
  • Кирпичное
  • G - Очень низкий
На этом веб-сайте мы обрабатываем файлы cookie, необходимые для его работы и анализа.

Upozornění

Používáte nepodporovaný (zastaralý) internetový prohlížeč!

Pro správný běh našeho portalu není možné použít vámi používaný prohlížeč.

Použijte prosím Microsoft Edge nebo některý z jiných prohlížečů, např. Google Chrome, Firefox.