Prodej bytu 3+KK 88 m²
Kunčice nad Labem


























Popis
Nabízíme k prodeji moderní a útulný byt 3 + kk 77,2m2 s lodžií 11,4m2 v novostavbě domu v obci Kunčice nad Labem, ideální pro rodiny s dětmi. Nachází se v klidné lokalitě, pouhých 5 minut autem od Vrchlabí, a nabízí jedinečné spojení pohodlí a přírody, s blízkostí lyžařských středisek Herlíkovice a Špindlerův Mlýn, či Černý Důl nebo Janské Lázně v dojezdové vzdálenosti.
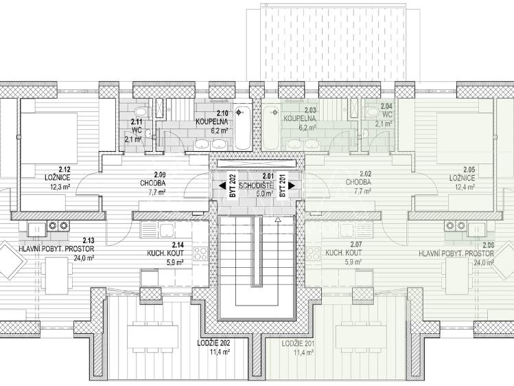
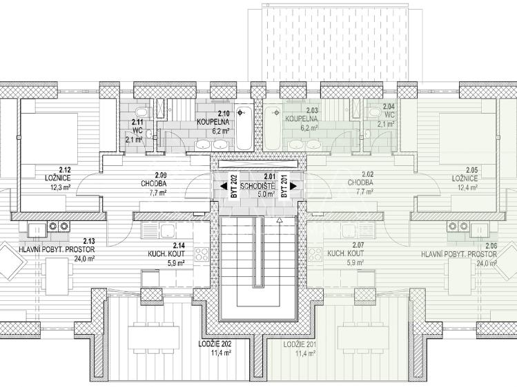
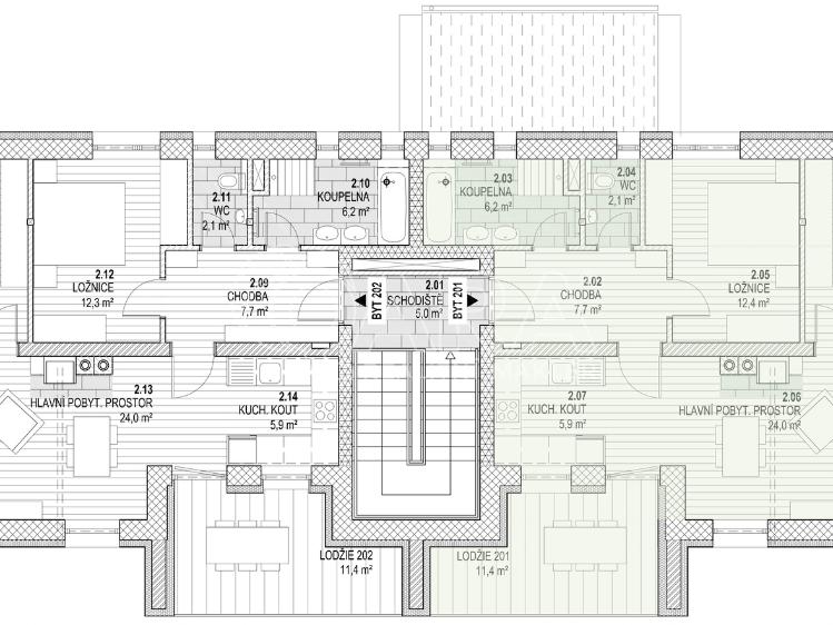
Byt o celkové ploše 88 m² se nachází ve druhém patře domu a poskytuje dostatek prostoru pro každodenní rodinný život. Pokoje přirozeně vytváří prostor pro hravost a fantazii vašich nejmenších, zatímco obývací místnost s moderní architekturou a příjemným prosvětlením vytváří ideální prostředí pro rodinné chvíle. V bytě je příprava na kuchyňskou linku.
S vybavením bytu vám rádi pomůžeme.
Pro uložení sportovního či jiného vybavení má byt k dispozici prostorný sklep a parkovací místo pro vůz máte na privátním parkovišti na pozemku před domem.
Jedním z největších benefitů této nemovitosti je rozsáhlá zahrada, kde děti mohou běhat, hrát si a objevovat přírodu, zatímco rodiče mohou trávit čas a užívat si klid a pohodu. Zahrada je dostatečně prostorná pro pořádání rodinných oslav a setkání s přáteli.
Dům je vytápěn moderním tepleným čerpadlem, které zajišťuje plný komfort během celého roku.
Lokalita nabízí možnosti koupání v Labi, které navazuje přímo na pozemek, což je dokonalá aktivita pro letní dny. A okolí nabízí širokou škálu příležitostí pro výlety a rekreaci v přírodě. Ideální místo pro rodiny hledající bezpečné a přátelské prostředí pro své děti, či vás - sportovně laděné cyklisty, turisty nebo lyžaře.
Součástí ceny bytu je parkovací stání a venkovní sklepní kóje umístěná u parkovacích stání.
Majitel každého bytu získává v ceně bytu podíl 1/8 na pozemku zahrady přiléhající k domu, velikost každého podílu je cca 400m².
V případě zájmu o prohlídku nás neváhejte kontaktovat.
Byt o celkové ploše 88 m² se nachází ve druhém patře domu a poskytuje dostatek prostoru pro každodenní rodinný život. Pokoje přirozeně vytváří prostor pro hravost a fantazii vašich nejmenších, zatímco obývací místnost s moderní architekturou a příjemným prosvětlením vytváří ideální prostředí pro rodinné chvíle. V bytě je příprava na kuchyňskou linku.
S vybavením bytu vám rádi pomůžeme.
Pro uložení sportovního či jiného vybavení má byt k dispozici prostorný sklep a parkovací místo pro vůz máte na privátním parkovišti na pozemku před domem.
Jedním z největších benefitů této nemovitosti je rozsáhlá zahrada, kde děti mohou běhat, hrát si a objevovat přírodu, zatímco rodiče mohou trávit čas a užívat si klid a pohodu. Zahrada je dostatečně prostorná pro pořádání rodinných oslav a setkání s přáteli.
Dům je vytápěn moderním tepleným čerpadlem, které zajišťuje plný komfort během celého roku.
Lokalita nabízí možnosti koupání v Labi, které navazuje přímo na pozemek, což je dokonalá aktivita pro letní dny. A okolí nabízí širokou škálu příležitostí pro výlety a rekreaci v přírodě. Ideální místo pro rodiny hledající bezpečné a přátelské prostředí pro své děti, či vás - sportovně laděné cyklisty, turisty nebo lyžaře.
Součástí ceny bytu je parkovací stání a venkovní sklepní kóje umístěná u parkovacích stání.
Majitel každého bytu získává v ceně bytu podíl 1/8 na pozemku zahrady přiléhající k domu, velikost každého podílu je cca 400m².
V případě zájmu o prohlídku nás neváhejte kontaktovat.
Další parametry
- tepelné čerpadlo
- 2
- 11 m2
- 400 m2
- 2
- č. 264/2020 Sb.
- 4 m2
- 88 m2
- 2
- Novostavba
- Cihla
- B - Velmi úsporná
- osobní
Na tomto webu zpracováváme cookies potřebné pro jeho fungování a analytiku.