Prodej vily 40 m², pozemek 40 m²
Torrevieja,Španělsko
plus DPH 10%, daně a poplatky, BEZ PROVIZE RK



































































Popis
Apartmány Lagoons Village se nachází v nádherném prostředí mezi přírodním parkem Lagunas de La Mata a růžovou lagunou Laguna Rosa v Torrevieji. U této nemovitosti NEPLATÍTE PROVIZI RK. Tento výjimečný rezidenční projekt nabízí více než 15 200 m² společných prostor navržených pro aktivní a pohodový životní styl.
Součástí areálu jsou dva bazény pro dospělé, dva bazény pro děti, dvě vyhřívané vířivky, dětské hřiště, hřiště na pétanque a rozsáhlé zelené zahrady s palmami, voňavými rostlinami, jezírky, fontánami a odpočinkovými zónami. Díky orientaci domů převážně na jihovýchod a jihozápad je zajištěno dostatek přirozeného světla po celý den.
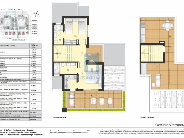
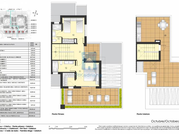
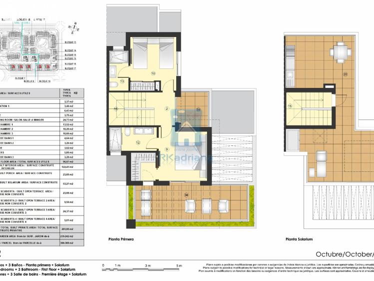
První fáze projektu, Laguna Rosa, zahrnuje 240 moderních domů různých typů – od bytů a bungalovů přes řadové domy až po samostatně stojící vily s 1, 2 nebo 3 ložnicemi a stejným počtem koupelen. Přízemní byty a bungalovy mají soukromou zahradu, zatímco jednotky v horních patrech disponují balkonem. Vily nabízejí zahrady s možností vlastního bazénu. Ke každé nemovitosti náleží venkovní parkovací místo nebo podzemní parkování a skladovací prostor, v závislosti na typu domu.
Lagoons Village se nachází v klidné lokalitě s přímým přístupem k přírodním rezervacím a cyklistickým i pěším trasám. V docházkové vzdálenosti se nachází Mezinárodní auditorium Torrevieja a nemocnice Quirón. Výborná dopravní dostupnost zahrnuje přímý přístup na silnici N-332, blízkost dálnice A-7 a 40 minut jízdy na letiště Alicante-Elche. V Alicante je také vysokorychlostní vlaková linka AVE.
V oblasti je kompletní občanská vybavenost, včetně obchodního centra Habaneras, sportovního centra, škol, restaurací, obchodů a největšího místního trhu, který se koná každý pátek.
Objevte Lagoons Village – místo, kde se příroda snoubí s moderním komfortem. Kontaktujte nás pro více informací.
Součástí areálu jsou dva bazény pro dospělé, dva bazény pro děti, dvě vyhřívané vířivky, dětské hřiště, hřiště na pétanque a rozsáhlé zelené zahrady s palmami, voňavými rostlinami, jezírky, fontánami a odpočinkovými zónami. Díky orientaci domů převážně na jihovýchod a jihozápad je zajištěno dostatek přirozeného světla po celý den.
První fáze projektu, Laguna Rosa, zahrnuje 240 moderních domů různých typů – od bytů a bungalovů přes řadové domy až po samostatně stojící vily s 1, 2 nebo 3 ložnicemi a stejným počtem koupelen. Přízemní byty a bungalovy mají soukromou zahradu, zatímco jednotky v horních patrech disponují balkonem. Vily nabízejí zahrady s možností vlastního bazénu. Ke každé nemovitosti náleží venkovní parkovací místo nebo podzemní parkování a skladovací prostor, v závislosti na typu domu.
Lagoons Village se nachází v klidné lokalitě s přímým přístupem k přírodním rezervacím a cyklistickým i pěším trasám. V docházkové vzdálenosti se nachází Mezinárodní auditorium Torrevieja a nemocnice Quirón. Výborná dopravní dostupnost zahrnuje přímý přístup na silnici N-332, blízkost dálnice A-7 a 40 minut jízdy na letiště Alicante-Elche. V Alicante je také vysokorychlostní vlaková linka AVE.
V oblasti je kompletní občanská vybavenost, včetně obchodního centra Habaneras, sportovního centra, škol, restaurací, obchodů a největšího místního trhu, který se koná každý pátek.
Objevte Lagoons Village – místo, kde se příroda snoubí s moderním komfortem. Kontaktujte nás pro více informací.
Další parametry
- Ne
- 1
- 1
- č. 264/2020 Sb.
- 40 m2
- 40 m2
- Novostavba
- Smíšená
- G - Mimořádně nehospodárná
Na tomto webu zpracováváme cookies potřebné pro jeho fungování a analytiku.