Prodej rodinného domu 325 m², pozemek 713 m²
Žebrák, Na Pěšině 496
včetně provize a právních služeb


















































Popis
Nabízíme k prodeji nedávno zkolaudovaný dům o dvou samostatných bytových jednotkách v klidné části města Žebrák.
Ideální volba pro dvougenerační bydlení, kombinaci vlastního bydlení s investicí nebo pronájem obou bytů.
Celková užitná plocha domu je 325 m2.
Tato nemovitost má za sebou dlouhý příběh – původní hrubá stavba byla rozestavěna už v roce 1979, ale svého dokončení se dočkala až v roce 2024. Díky pečlivé a důkladné rekonstrukci vznikl moderní dvougenerační dům, který splňuje všechny nároky dnešního bydlení. Nové rozvody, fasáda, střechy i technická zařízení – vše je zcela nové, s oficiální kolaudací a připravené k okamžitému užívání.¨
Dispozice:
1.NP: byt 4+kk/B + koupelna + samostatné WC + komora (užitná plocha 120,72 m²)
2.NP: byt 4+kk + koupelna + samostatné WC + komora (užitná plocha 105,2 m²)
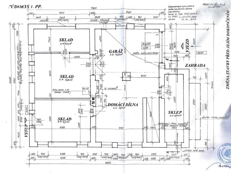
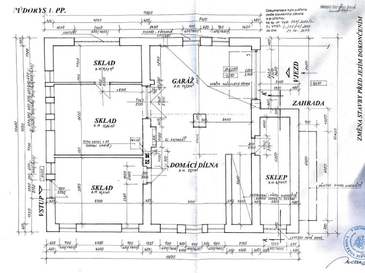
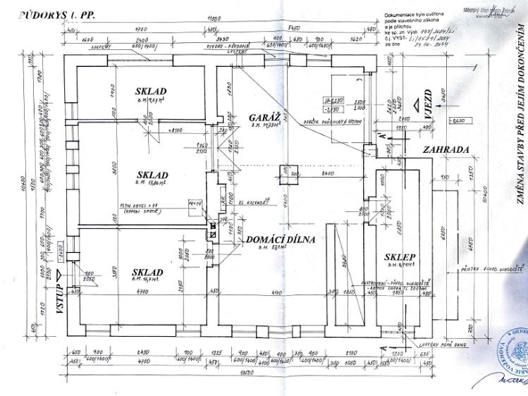
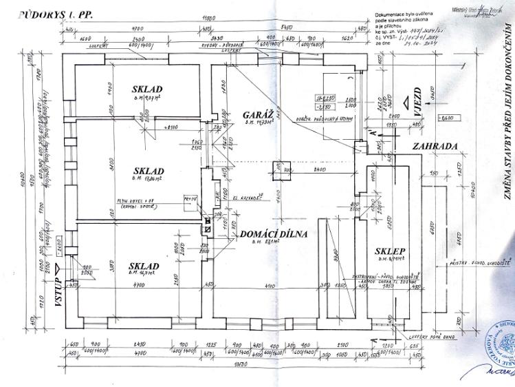
PP: technické zázemí, skladové prostory, garáž, dílna, WC (99,45 m²)
Technický stav:
- Kolaudace říjen 2024
- Kompletní nové rozvody: elektro, voda, odpady, plyn, topení
- Příprava na kuchyňské linky, moderní podlahy – vinyl a dlažba
- Nová elektro skříň, jističe 3x25A, revize elektřiny a plynu
- Nová kanalizační a vodovodní přípojka
- Vytápění: plynový kondenzační kotel + akumulační nádrž
- Zateplení fasády, stropů i podlah, plastová okna s trojskly včetně střešních, foukaná izolace střechy
- Nová střešní krytina Bramac, původní zdravý krov
- Napínané stropy v 1.NP
Pozemek a okolí:
- Celková plocha parcely 713 m²
- Kopaná studna s čerpadlem – ideální pro zalévání
- Parkování v garáži, na pozemku i před domem
- Orientace: JV do ulice, SZ do zahrady
Další výhody:
- PENB třída D (110 kWh), vytápění třída C
- Možnost měsíčního výnosu z pronájmu jednoho bytu min. 20.000 Kč + poplatky
Lokalita:
Rodinný dům se nachází v klidné rezidenční části města Žebrák, odkud máte na dosah přírodu i městské pohodlí.
Samotný Žebrák nabízí kompletní občanskou vybavenost – školu, školku, obchody, restaurace, zdravotní středisko i sportovní zázemí.
Jen pár minut jízdy vás dělí od nájezdu na dálnici D5 – do Prahy to zvládnete za 35 minut, do Plzně za půl hodiny. Další služby, včetně nemocnice nebo velkých supermarketů, najdete v nedalekých Hořovicích.
Okolí potěší všechny milovníky přírody a aktivního života. Město leží v podhůří Křivoklátských lesů, které jsou chráněnou krajinnou oblastí – ideální pro pěší výlety, cyklistiku i houbaření.
Dominantou regionu jsou dva gotické hrady – Točník a Žebrák, které nejen dotvářejí malebnou krajinu, ale jsou i oblíbeným výletním cílem.
Možná je právě tohle místo začátkem vašeho nového příběhu.
Těšíme se na setkání v Žebráku.
Ideální volba pro dvougenerační bydlení, kombinaci vlastního bydlení s investicí nebo pronájem obou bytů.
Celková užitná plocha domu je 325 m2.
Tato nemovitost má za sebou dlouhý příběh – původní hrubá stavba byla rozestavěna už v roce 1979, ale svého dokončení se dočkala až v roce 2024. Díky pečlivé a důkladné rekonstrukci vznikl moderní dvougenerační dům, který splňuje všechny nároky dnešního bydlení. Nové rozvody, fasáda, střechy i technická zařízení – vše je zcela nové, s oficiální kolaudací a připravené k okamžitému užívání.¨
Dispozice:
1.NP: byt 4+kk/B + koupelna + samostatné WC + komora (užitná plocha 120,72 m²)
2.NP: byt 4+kk + koupelna + samostatné WC + komora (užitná plocha 105,2 m²)
PP: technické zázemí, skladové prostory, garáž, dílna, WC (99,45 m²)
Technický stav:
- Kolaudace říjen 2024
- Kompletní nové rozvody: elektro, voda, odpady, plyn, topení
- Příprava na kuchyňské linky, moderní podlahy – vinyl a dlažba
- Nová elektro skříň, jističe 3x25A, revize elektřiny a plynu
- Nová kanalizační a vodovodní přípojka
- Vytápění: plynový kondenzační kotel + akumulační nádrž
- Zateplení fasády, stropů i podlah, plastová okna s trojskly včetně střešních, foukaná izolace střechy
- Nová střešní krytina Bramac, původní zdravý krov
- Napínané stropy v 1.NP
Pozemek a okolí:
- Celková plocha parcely 713 m²
- Kopaná studna s čerpadlem – ideální pro zalévání
- Parkování v garáži, na pozemku i před domem
- Orientace: JV do ulice, SZ do zahrady
Další výhody:
- PENB třída D (110 kWh), vytápění třída C
- Možnost měsíčního výnosu z pronájmu jednoho bytu min. 20.000 Kč + poplatky
Lokalita:
Rodinný dům se nachází v klidné rezidenční části města Žebrák, odkud máte na dosah přírodu i městské pohodlí.
Samotný Žebrák nabízí kompletní občanskou vybavenost – školu, školku, obchody, restaurace, zdravotní středisko i sportovní zázemí.
Jen pár minut jízdy vás dělí od nájezdu na dálnici D5 – do Prahy to zvládnete za 35 minut, do Plzně za půl hodiny. Další služby, včetně nemocnice nebo velkých supermarketů, najdete v nedalekých Hořovicích.
Okolí potěší všechny milovníky přírody a aktivního života. Město leží v podhůří Křivoklátských lesů, které jsou chráněnou krajinnou oblastí – ideální pro pěší výlety, cyklistiku i houbaření.
Dominantou regionu jsou dva gotické hrady – Točník a Žebrák, které nejen dotvářejí malebnou krajinu, ale jsou i oblíbeným výletním cílem.
Možná je právě tohle místo začátkem vašeho nového příběhu.
Těšíme se na setkání v Žebráku.
Další parametry
- vodovod
- radiátory
- plynový kondenzační kotel
- plynový kondenzační kotel
- Kopaná studna
- dálnice, silnice, bus
- kabelové rozvody
- 3 fáze
- asfaltová
- Ne
- 2
- 4
- plynovod
- veřejná kanalizace
- 1
- 3
- 110 kWh/m2
- č. 264/2020 Sb.
- 230V
- 99 m2
- 138 m2
- 713 m2
- Velmi dobrý
- Cihla
- D - Méně úsporná
- Zobrazit průkaz energetické náročnosti budovy
Na tomto webu zpracováváme cookies potřebné pro jeho fungování a analytiku.