Prodej bytu 2+KK 61 m²
Praha, Na výběžku
vč. kompletních služeb RK













Popis
Vybrat byt u developera v dnešní době znamená čekat mnoho měsíců i let na to, jestli sliby na papíře budou odpovídat realitě. Pro většinu zájemců tento postup není příjemný a nese sebou spoustu nejistoty a rizik. Ovšem, co když Vám nabídneme možnost Váš byt vidět těsně před jeho kolaudací a stěhovat se budete moci ihned po přepisu na katastrálním úřadě? Je to pro Vás zajímavé vidět na vlastní oči to, co developer nabízí, s jakou kvalitou staví a co přesně tedy kupujete?
Bytový dům THETRIANGLE v klidné ulici Prahy 9 - Vysočan se právě blíží ke kolaudaci a my Vám přinášíme ojedinělou možnost na trhu. Koupit si můžete byt v novostavbě a můžete si ho před rozhodnutím prohlédnout, přitom stěhovat se budete moci téměř obratem. Kolaudace je v procesu, předpokládáme dokončení do 30.11.2025
U tohoto projektu také můžete právem očekávat velmi nadstandardní zpracování a na development dnešní doby opravdu vysoký standard s použitím prémiových materiálů. Citlivě volené barevné provedení se smyslem pro detail, prémiové dřevěné podlahy, dřevěná okna i interiérové dveře, italský design. To vše na Vás čeká. My nestavíme pouze „byty“, stavíme Vaše nové domovy.
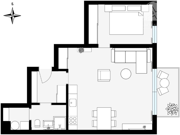
V rámci dispozice 2+KK jsou v tomto domě dostupné tyto varianty (jejich dostupnost pravidelně aktualizujeme – věnujte proto prosím pozornost poznámkám níže):
BYT 303, 3NP, 2+KK 56,5m2 + terasa 14,1m2 + zděný sklep 2,4m2 (č.105) - cena 10.300.000CZK (prodáno)
BYT 403, 4NP, 2+KK 56,5 m2 + lodžie 4,7m2 + zděný sklep 2,9m2 (č.107) - cena 9.900.000CZK
BYT 503, 5NP, 2+KK 56,5 m2 + lodžie 4,7m2 + zděný sklep 2,8m2 (č.110) - cena 10.100.000CZK
BYT 603, 6NP, 2+KK 56,5 m2 + lodžie 4,7m2 + zděný sklep 2,4m2 (č.205) - cena 10.300.000CZK (prodáno)
BYT 703, 7NP, 2+KK 56,5 m2 + zděný sklep 2,9m2 (č.208) - cena 10.100.000CZK (prodáno)
BYT 803, 8NP, 2+KK 51,7 m2 + zděný sklep 2,4m2 (č.211) - cena 10.400.000CZK
Klidná ulice, kde se tento bytový dům nachází, kolmo navazuje na ulici „Poděbradská“ odkud se pohodlně dostanete za 3-4 min tramvají na metro „Českomoravská“ Dostupné služby i MHD, občanská vybavenost, vzdušnost, množství zeleně a parků a také ostatní vyžití je důvodem, proč se Vysočany stávají stále vyhledávanější lokalitou a jejich popularita dynamicky roste.
Nemusíte se ani obávat vysokých nákladů na provoz takového bytu. Kombinace energetické třídy "B", společné plynové kotelny v domě, velmi kvalitních oken a dveří či použití LED osvětlení Vám zajistí nízké náklady.
V případě financování hypotéčním úvěrem máme pro naše klienty schváleny speciální podmínky pro projekt hned u dvou bank, u ČS a ČSOB. Můžete tedy využít i této nabídky a získat velmi nadstandardní podmínky hypotéčního úvěru. Slevu Vám můžeme zajistit i na kuchyňské linky dle Vaší preference hned u několika renomovaných výrobců.
Vybavení nábytkem není součástí ceny. Jedná se inspiraci budoucího vybavení.
Pro sjednání osobní prohlídky nás neváhejte kontaktovat. Budeme se těšit na viděnou.
Další parametry
- vodovod
- radiátory
- centrální dálkové
- optika
- 2
- vlak, dálnice, mhd, bus
- telefon, internet, satellite, kabelová televize, kabelové rozvody
- asfaltová
- 2
- plynovod
- veřejná kanalizace
- 9
- č. 264/2020 Sb.
- 2 m2
- 161 m2
- 4 m2
- 4
- Novostavba
- Cihla
- B - Velmi úsporná
- osobní
- Zobrazit průkaz energetické náročnosti budovy