Prodej bytu 2+KK 71 m²
Praha, Na výběžku
vč. kompletních služeb RK













Popis
Vybrat byt u developera v dnešní době znamená čekat mnoho měsíců i let na to, jestli sliby na papíře budou odpovídat realitě. Pro většinu zájemců tento postup není příjemný a nese sebou spoustu nejistoty a rizik. Ovšem, co když Vám nabídneme možnost Váš byt vidět těsně před jeho kolaudací a stěhovat se budete moci ihned po přepisu na katastrálním úřadě? Je to pro Vás zajímavé vidět na vlastní oči to, co developer nabízí, s jakou kvalitou staví a co přesně tedy kupujete?
Bytový dům THETRIANGLE v klidné ulici Prahy 9 - Vysočan se právě blíží ke kolaudaci a my Vám přinášíme ojedinělou možnost na trhu. Koupit si můžete byt v novostavbě a můžete si ho před rozhodnutím prohlédnout, přitom stěhovat se budete moci téměř obratem. Kolaudace je v procesu, předpokládáme dokončení do 30.11.2025
U tohoto projektu také můžete právem očekávat velmi nadstandardní zpracování a na development dnešní doby opravdu vysoký standard s použitím prémiových materiálů. Citlivě volené barevné provedení se smyslem pro detail, prémiové dřevěné podlahy, dřevěná okna i interiérové dveře, italský design. To vše na Vás čeká. My nestavíme pouze „byty“, stavíme Vaše nové domovy.
V rámci dispozice 2+KK jsou v tomto domě dostupné tyto varianty (jejich dostupnost pravidelně aktualizujeme – věnujte proto prosím pozornost poznámkám níže):
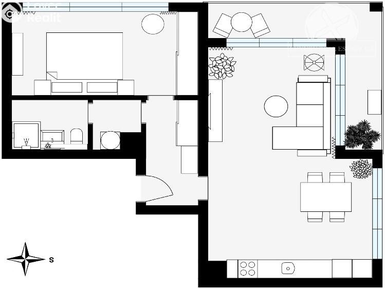
BYT 501, 5NP, 2+KK 61,5 m2 + lodžie 10,3m2 + garážové stání č. 113 + zděný sklep 2,9m2 (č.108) - cena 12.150.000CZK
BYT 601, 6NP, 2+KK 61,5 m2 + lodžie 10,3m2 + garážové stání č. 115 + zděný sklep 2,8m2 (č.203) - cena 12.350.000CZK (prodáno)
BYT 701, 7NP, 2+KK 56,8 m2 + lodžie 15,9m2 + garážové stání č. 213 + zděný sklep 2,4m2 (č.206) - cena 12.100.000CZK
BYT 801, 8NP, 2+KK 56,8 m2 + lodžie 15,9m2 + garážové stání č. 215 + zděný sklep 2,6m2 (č.209) - cena 12.300.000CZK (prodáno)
Klidná ulice, kde se tento bytový dům nachází, kolmo navazuje na ulici „Poděbradská“ odkud se pohodlně dostanete za 3-4 min tramvají na metro „Českomoravská“ Dostupné služby i MHD, občanská vybavenost, vzdušnost, množství zeleně a parků a také ostatní vyžití je důvodem, proč se Vysočany stávají stále vyhledávanější lokalitou a jejich popularita dynamicky roste.
Nemusíte se ani obávat vysokých nákladů na provoz takového bytu. Kombinace energetické třídy "B", společné plynové kotelny v domě, velmi kvalitních oken a dveří či použití LED osvětlení Vám zajistí nízké náklady.
V případě financování hypotéčním úvěrem máme pro naše klienty schváleny speciální podmínky pro projekt hned u dvou bank, u ČS a ČSOB. Můžete tedy využít i této nabídky a získat velmi nadstandardní podmínky hypotéčního úvěru. Slevu Vám můžeme zajistit i na kuchyňské linky dle Vaší preference hned u několika renomovaných výrobců.
Vybavení nábytkem není součástí ceny. Jedná se inspiraci budoucího vybavení.
Pro sjednání osobní prohlídky nás neváhejte kontaktovat. Budeme se těšit na viděnou.
Bytový dům THETRIANGLE v klidné ulici Prahy 9 - Vysočan se právě blíží ke kolaudaci a my Vám přinášíme ojedinělou možnost na trhu. Koupit si můžete byt v novostavbě a můžete si ho před rozhodnutím prohlédnout, přitom stěhovat se budete moci téměř obratem. Kolaudace je v procesu, předpokládáme dokončení do 30.11.2025
U tohoto projektu také můžete právem očekávat velmi nadstandardní zpracování a na development dnešní doby opravdu vysoký standard s použitím prémiových materiálů. Citlivě volené barevné provedení se smyslem pro detail, prémiové dřevěné podlahy, dřevěná okna i interiérové dveře, italský design. To vše na Vás čeká. My nestavíme pouze „byty“, stavíme Vaše nové domovy.
V rámci dispozice 2+KK jsou v tomto domě dostupné tyto varianty (jejich dostupnost pravidelně aktualizujeme – věnujte proto prosím pozornost poznámkám níže):
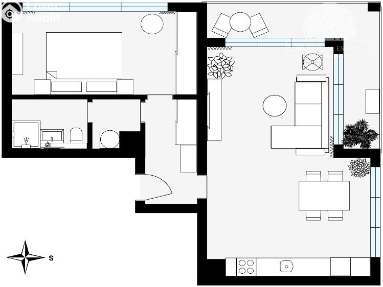
BYT 501, 5NP, 2+KK 61,5 m2 + lodžie 10,3m2 + garážové stání č. 113 + zděný sklep 2,9m2 (č.108) - cena 12.150.000CZK
BYT 601, 6NP, 2+KK 61,5 m2 + lodžie 10,3m2 + garážové stání č. 115 + zděný sklep 2,8m2 (č.203) - cena 12.350.000CZK (prodáno)
BYT 701, 7NP, 2+KK 56,8 m2 + lodžie 15,9m2 + garážové stání č. 213 + zděný sklep 2,4m2 (č.206) - cena 12.100.000CZK
BYT 801, 8NP, 2+KK 56,8 m2 + lodžie 15,9m2 + garážové stání č. 215 + zděný sklep 2,6m2 (č.209) - cena 12.300.000CZK (prodáno)
Klidná ulice, kde se tento bytový dům nachází, kolmo navazuje na ulici „Poděbradská“ odkud se pohodlně dostanete za 3-4 min tramvají na metro „Českomoravská“ Dostupné služby i MHD, občanská vybavenost, vzdušnost, množství zeleně a parků a také ostatní vyžití je důvodem, proč se Vysočany stávají stále vyhledávanější lokalitou a jejich popularita dynamicky roste.
Nemusíte se ani obávat vysokých nákladů na provoz takového bytu. Kombinace energetické třídy "B", společné plynové kotelny v domě, velmi kvalitních oken a dveří či použití LED osvětlení Vám zajistí nízké náklady.
V případě financování hypotéčním úvěrem máme pro naše klienty schváleny speciální podmínky pro projekt hned u dvou bank, u ČS a ČSOB. Můžete tedy využít i této nabídky a získat velmi nadstandardní podmínky hypotéčního úvěru. Slevu Vám můžeme zajistit i na kuchyňské linky dle Vaší preference hned u několika renomovaných výrobců.
Vybavení nábytkem není součástí ceny. Jedná se inspiraci budoucího vybavení.
Pro sjednání osobní prohlídky nás neváhejte kontaktovat. Budeme se těšit na viděnou.
Další parametry
- vodovod
- radiátory
- centrální dálkové
- optika
- 2
- vlak, dálnice, mhd, bus
- telefon, internet, satellite, kabelová televize, kabelové rozvody
- asfaltová
- 2
- 10 m2
- plynovod
- veřejná kanalizace
- 1
- 9
- č. 264/2020 Sb.
- 2 m2
- 161 m2
- 5
- Novostavba
- Cihla
- B - Velmi úsporná
- osobní
- Zobrazit průkaz energetické náročnosti budovy
Na tomto webu zpracováváme cookies potřebné pro jeho fungování a analytiku.