Prodej bytu 3+KK 68 m²
Praha, Kmochova
vč. kompletních služeb RK



















Popis
Hledáte-li opravdu krásný byt s vysokými stropy a preferujete také lukrativní adresu, pak Vás tato nabídka jistě bude zajímat. K prodeji máme bytovou jednotku 3+KK s výměrou 68,6m2, umístěnou v 3.NP cihlového domu s výtahem v klidné části Smíchova, v ulici "Kmochova"
Nejen tento byt, ale i celý bytový dům prošel kompletní zdařilou rekonstrukcí, během které se podařilo developerovi propojit historii s moderními prvky bydlení. Zachovány byly vysoké stropy, které bytu dodávají vzdušnost nebo také nabízí možnost zbudování např. spacího patra a tedy rozšíření životního prostoru. Nově instalovaná dřevěná okna dodávají bytu dostatek denního světla a citlivě volené odstíny dřevěné podlahy v kombinaci s italskými obklady a dlažbou dotváří celkově perfektní dojem. Liniová kuchyňská linka vč. značkových spotřebičů v bytě také zůstává, tedy můžete se obratem stěhovat.
Činžovní dům dýchající historií, kompletní zdařilá rekonstrukce do nejmenšího detailu, reprezentativní adresa, luxusní vysoké stropy, vysoký standard.
K dispozici budete mít také vysokou sklepní kóji v suterénu domu, kam lze umístit sezónní věci.
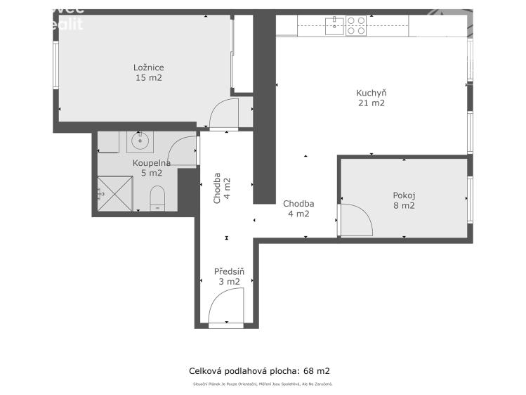
Díky dispozičnímu řešení je tento byt vhodnější především pro mladé páry, popřípadě rodinu s jedním potomkem. Jeden z pokojů je totiž relativně menší, tedy spíše se může stát dětským pokojem či pracovnou. Detaily naleznete v přiloženém půdorysu.
Občanskou vybavenost, množství zajímavých míst a dostupnost všech služeb Prahy 5 – Smíchov není jistě třeba zmiňovat, zde budete bydlet v dosahu všeho.
Přijďte se podívat sami na svůj nový domov. Budu se těšit na viděnou.
Další parametry
- vodovod
- centrální dálkové
- 1
- internet, kabelové rozvody
- 1
- plynovod
- veřejná kanalizace
- 6
- č. 264/2020 Sb.
- 1 m2
- 365 m2
- 3
- Po rekonstrukci
- Cihla
- D - Méně úsporná
- osobní
- Zobrazit průkaz energetické náročnosti budovy