Prodej bytu 1+1 33 m²
Abertamy, Blatenská
včetně právního servisu a odměny zprostředkovatele















Popis
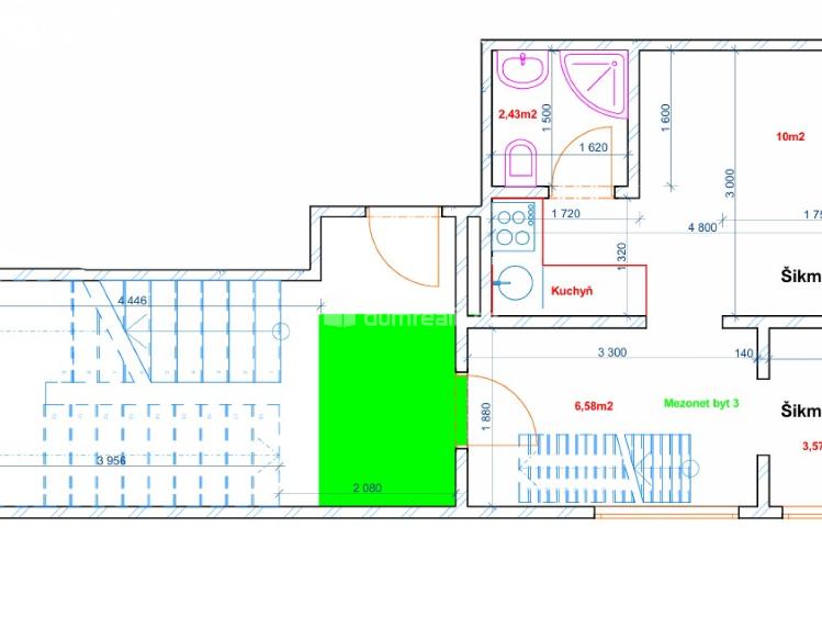
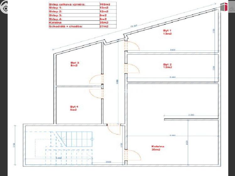
Dumrealit.cz Vám zprostředkuje exkluzivně prodej zajímavého horského apartmánu (mezonetu) 1+1 o velikosti 33 m² v obci Abertamy, okr. Karlovy Vary. Jedná se o byt ve 3. a 4.patře cihlového domu. Byt je zařízen vkusným nábytkem a vybavením. K bytu náleží prostorný zděný sklep o velikosti 8 m² a jedno vyhrazené parkovací stání. Budova z třicátých let 20. století byla kompletně zrekonstruována v letech 2021 – 2022 a je zateplena a opatřena plastovými okny. V přízemí se nachází nebytové prostory v současné době půjčovna kol a prádelna. Pro obytnou část je samostatný vchod. Ve třech nadzemních podlaží se nachází celkem 5 jednotek a společná chodba se schodištěm. V domě je veřejný vodovod, kanalizace a každá jednotka má vlastní elektro rozvaděč s elektroměrem. Z apartmánu je vzhledem k jeho poloze krásný výhled zejména na vrchol Plešivec. Vzhledem k tomu, že před zadáním do inzerce nebyl předložen PENB, je tento byt v souladu s platným zákonem zařazen do energetické třídy G. Ev. číslo: 650310.
Další parametry
- 5
- 4
- Po rekonstrukci
- Cihla
- G - Mimořádně nehospodárná
- osobní