Prodej kanceláře  85 m²
Netřebice 
























Popis
- Tento popis je v:
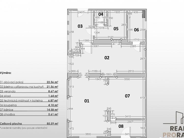
Hledáte sídlo pro svoji logistickou firmu se zahradou vhodnou na parkoviště nebo vystavení další budovy a prázdnou půdou vhodnou k vestavbě na tahu Č. Budějovice - Dolní Dvořiště? Pak doražte do Netřebic - menší vesničky vzdálené 20 minut autem od krajského města. Na pozemku o celkové ploše 701 m2 se nachází dům s obytným přízemím a prázdnou půdou. Ateliérové uspořádání přízemí Vás na první pohled zaujme a velký prostor v zadní části to jen podtrhne. Hned za ní je prostorná koupelna s vanou a WC a úplně vzadu pak najdete kotelnu s el. kotlem a bojlerem, velkou verandu vhodnou např. jako zimní zahradu a vstup na zmiňovanou půdu. Zde si můžete vybudovat krásný prostor v podobě open-space kanceláří či archivů. Obývací pokoj je propojen s ložnicí a vytváří tak jeden velký otevřený prostor s výhledem na zahradu, která je přímo přes cestu s celkovou plochou 524 m2. Na zahradě můžete zbudovat velké parkoviště, garáž nebo i další nemovitost. Dům prošel rozsáhlou rekonstrukcí - plastová okna, ústřední topení, omítky, podlahy, rozvody, fasáda, střecha. Je napojen na obecní vodovod i kanalizaci a samozřejmě elektřinu. Plyn v obci je. Auta můžete pohodlně parkovat na svém pozemku přímo před domem nebo na zmíněné zahradě. Veškerou občanskou vybavenost najdete v nedaleké Kaplici a na Lipno to budete mít skoro stejně daleko jako do Budějovic. Strategická poloha k dálnici D3 a do Rakouska může být pro podnikání do budoucna velmi zajímavá. Tak se příjeďte přesvědčit na vlastní oči.
Další parametry
- vodovod
- radiátory
- elektrokotel
- elektrokotel
- silnice, bus
- internet
- asfaltová
- Ne
- 85 m2
- 2
- veřejná kanalizace
- 550 m2
- 2
- č. 264/2020 Sb.
- 230V
- 130 m2
- 1
- Velmi dobrý
- Smíšená
- D - Méně úsporná