Prodej rodinného domu 132 m², pozemek 512 m²
Chrustenice
Včetně provize a právního servisu























Popis
- Tento popis je v:
Váš nový domov uprostřed klidu a zeleně 5+kk, 132 m, zahrada 512 m, Chrustenice
Představte si dům, kde se ráno probouzíte za zpěvu ptáků, snídáte venku a v soukromí a za 15 minut jste v Praze. Místo, kde si vaše děti hrají bezpečně na zahradě, zatímco vy si vychutnáváte s přáteli delikatesy z grilu na terase. Vítejte v Chrustenicích.
Tento moderní dvoupodlažní rodinný dům s dispozicí 5+kk a podlahovou plochou 132 m vzniká v jedné z nejžádanějších lokalit na západním okraji Prahy v malebných Chrustenicích, v sousedství přírodního parku a zároveň jen pár minut od dálnice D5 vedoucí do Prahy či do Berouna.
DŮM, KDE SE BUDE DOBŘE ŽÍT:
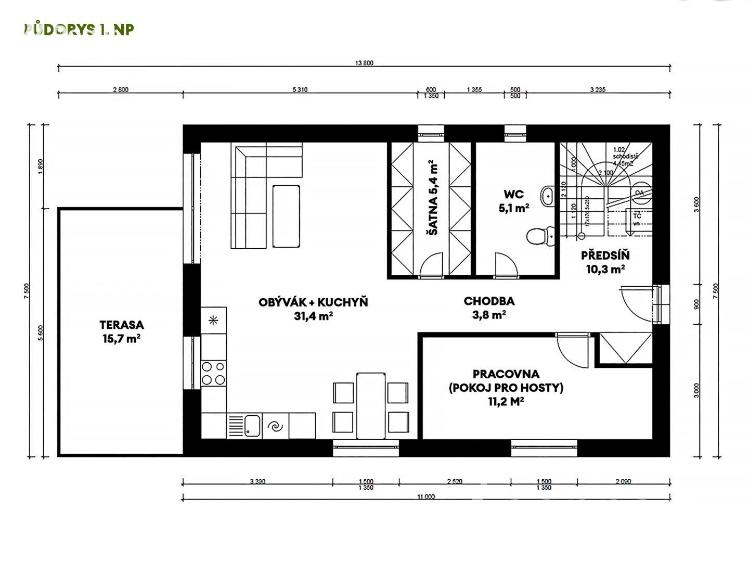
- Dispozice 5+kk, ideální pro rodinu se 2-3 dětmi
- Obývací pokoj s kuchyňským koutem a vstupem na terasu místo, kde bude žít vaše rodina i víkendová setkání s přáteli
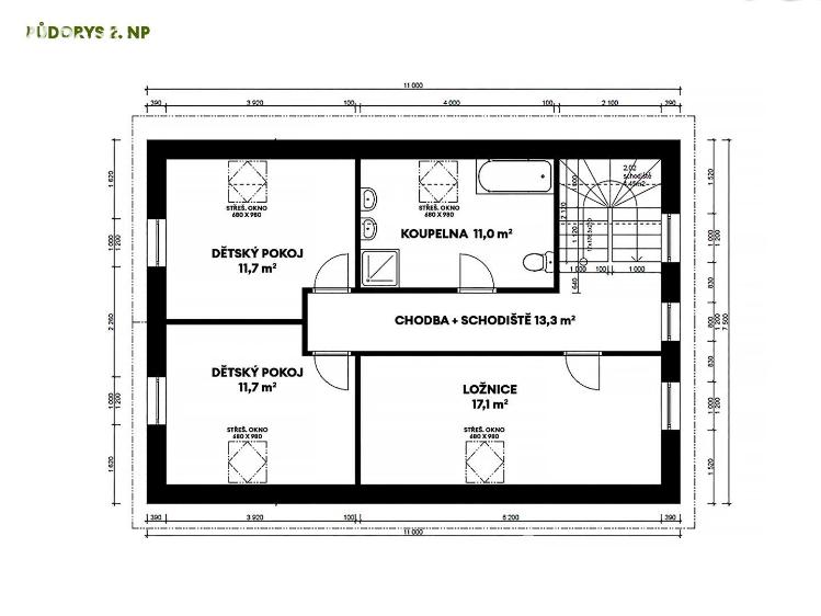
- 3 pokoje v patře, z toho hlavní ložnice s místem na šatnu
- Pracovna nebo pokoj pro hosty v přízemí
- Moderní koupelna + samostatné WC
- Praktická šatna a technické zázemí
- Dům bude předán v nadstandardním provedení s hotovými podlahami, obklady, koupelnou a WC v nadčasovém designu
- 3x parkovací stání pro všechny členy rodiny
TECHNICKÉ INFORMACE:
- Pozemek: 512 m - čeká vás tedy nenáročná údržba zahrady
- Tepelné čerpadlo s podlahovým vytápěním v celém domě úsporné, komfortní, tiché
- Energetická třída B (nízkoenergetický dům)
- Vrtaná studna, retenční nádrž, napojení na kanalizaci
- Kolaudace plánovaná na listopad 2025
SKVĚLÁ LOKALITA, KTERÁ MÁ VŠECHNO:
- Chrustenice jsou malá obec obklopená přírodou a přitom jen 15 minut od Prahy a 10 minut od Berouna Je to místo, které si zamilujete.
- Přírodní park Povodí Kačáku, lom Velká Amerika, Karlštejn, Svatý Jan pod Skalou jen pár minut od domu
- Dětské hřiště, sportovní areál, fotbalové i víceúčelové hřiště přímo v obci
- Mateřská škola v obci, základní škola a lékař hned v sousední Loděnici (2 min autem)
- Supermarkety, kavárny a nemocnice v Berouně (10 min)
- Výborné dopravní spojení dálnice D5 v blízkosti (ale není slyšet), autobusy PID, vlakové spojení z Loděnice nebo Vráže
- Je to ideální volba pro ty, kdo hledají klidné zázemí pro rodinu s přírodu hned za domem, ale zároveň chtějí být rychle v práci, škole nebo na schůzce v Praze či v Berouně.
PROHLÍDKY:
- přijďte se podívat na vlastní oči, že tato lokalita je naprosto skvělá, a že se Vám zde bude krásně žít.
- Zavolejte a domluvte si prohlídku ještě dnes.
Představte si dům, kde se ráno probouzíte za zpěvu ptáků, snídáte venku a v soukromí a za 15 minut jste v Praze. Místo, kde si vaše děti hrají bezpečně na zahradě, zatímco vy si vychutnáváte s přáteli delikatesy z grilu na terase. Vítejte v Chrustenicích.
Tento moderní dvoupodlažní rodinný dům s dispozicí 5+kk a podlahovou plochou 132 m vzniká v jedné z nejžádanějších lokalit na západním okraji Prahy v malebných Chrustenicích, v sousedství přírodního parku a zároveň jen pár minut od dálnice D5 vedoucí do Prahy či do Berouna.
DŮM, KDE SE BUDE DOBŘE ŽÍT:
- Dispozice 5+kk, ideální pro rodinu se 2-3 dětmi
- Obývací pokoj s kuchyňským koutem a vstupem na terasu místo, kde bude žít vaše rodina i víkendová setkání s přáteli
- 3 pokoje v patře, z toho hlavní ložnice s místem na šatnu
- Pracovna nebo pokoj pro hosty v přízemí
- Moderní koupelna + samostatné WC
- Praktická šatna a technické zázemí
- Dům bude předán v nadstandardním provedení s hotovými podlahami, obklady, koupelnou a WC v nadčasovém designu
- 3x parkovací stání pro všechny členy rodiny
TECHNICKÉ INFORMACE:
- Pozemek: 512 m - čeká vás tedy nenáročná údržba zahrady
- Tepelné čerpadlo s podlahovým vytápěním v celém domě úsporné, komfortní, tiché
- Energetická třída B (nízkoenergetický dům)
- Vrtaná studna, retenční nádrž, napojení na kanalizaci
- Kolaudace plánovaná na listopad 2025
SKVĚLÁ LOKALITA, KTERÁ MÁ VŠECHNO:
- Chrustenice jsou malá obec obklopená přírodou a přitom jen 15 minut od Prahy a 10 minut od Berouna Je to místo, které si zamilujete.
- Přírodní park Povodí Kačáku, lom Velká Amerika, Karlštejn, Svatý Jan pod Skalou jen pár minut od domu
- Dětské hřiště, sportovní areál, fotbalové i víceúčelové hřiště přímo v obci
- Mateřská škola v obci, základní škola a lékař hned v sousední Loděnici (2 min autem)
- Supermarkety, kavárny a nemocnice v Berouně (10 min)
- Výborné dopravní spojení dálnice D5 v blízkosti (ale není slyšet), autobusy PID, vlakové spojení z Loděnice nebo Vráže
- Je to ideální volba pro ty, kdo hledají klidné zázemí pro rodinu s přírodu hned za domem, ale zároveň chtějí být rychle v práci, škole nebo na schůzce v Praze či v Berouně.
PROHLÍDKY:
- přijďte se podívat na vlastní oči, že tato lokalita je naprosto skvělá, a že se Vám zde bude krásně žít.
- Zavolejte a domluvte si prohlídku ještě dnes.
Další parametry
- místní zdroj vody
- tepelné čerpadlo
- Vrtaná studna
- 4
- veřejná kanalizace
- 429 m2
- 2
- č. 264/2020 Sb.
- 230V
- 83 m2
- 512 m2
- Novostavba
- Smíšená
- B - Velmi úsporná
- Zobrazit průkaz energetické náročnosti budovy
Na tomto webu zpracováváme cookies potřebné pro jeho fungování a analytiku.