Prodej bytu 3+1 122 m²
Praha 7, Vinařská
Informace o ceně v RK
















































Popis
Dovolujeme si nabídnout ke koupi vzdušný a světlý byt s komorou, lodžií a sklepem v prestižní lokalitě Prahy 7 – na Letné. Byt se nachází ve výborně udržované budově z konce 30. let 20. století s výtahem, a to v 5. nadzemním podlaží ze šesti. K bytu je možné přikoupit garážové stání přímo v domě.
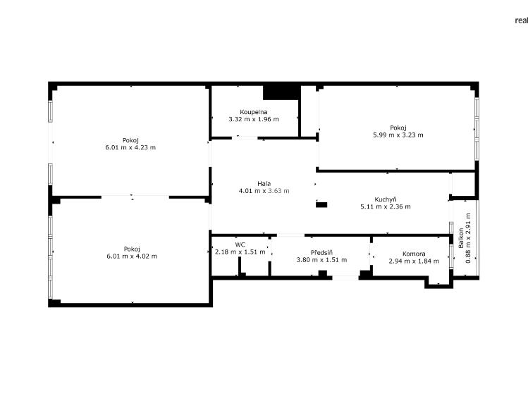
Dispozice bytu je 3+1 se samostatnými pokoji, prostornou koupelnou s vanou i sprchovým koutem a odděleným WC. Celková plocha činí 122 m². Kuchyně vybavená kvalitními spotřebiči navazuje na centrální halu, kterou obyvatelé obvykle využívají jako jídelnu. Podlahy v pokojích tvoří klasické parkety ve velmi dobrém stavu, v kuchyni, koupelně a chodbě je praktická vinylová krytina.
K bytu náleží také sklepní kóje a možnost využívat společnou kolárnu v suterénu domu. Vytápění je zajištěno dálkově přes výměníkovou stanici v domě, provozní náklady odpovídají běžnému průměru v této lokalitě.
Letná nabízí kompletní občanskou vybavenost a vynikající dopravní dostupnost – jak městskou hromadnou dopravou, tak automobilem, s dobrým napojením na dálniční síť i rychlým dosahem na letiště. Velkým bonusem je bezprostřední blízkost dvou rozsáhlých parků – Stromovky a Letenských sadů.
Jedná se o exkluzivní nabídku v osobním vlastnictví s možností vlastního parkování. Jde o jedinečnou příležitost k uspokojení kompletních potřeb spojených s bydlením v hlavním městě. Ev. číslo: 27846.
Další parametry
- 6
- 5
- Velmi dobrý
- Skeletová
- G - Mimořádně nehospodárná
- osobní